




100% ilmainen ja ilman sitoumuksia
100% ilmainen ja ilman sitoumuksia
Valokaari 10, Helsinki
Varasto-/toimisto-/näyttelytilaa Helsingin Suutarilassa.
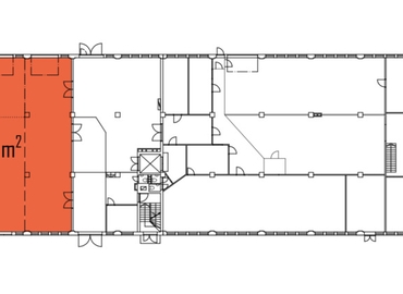
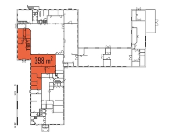
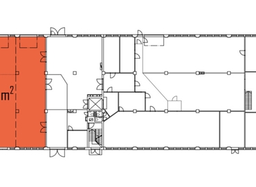
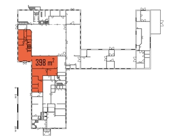
Tämä 398 m² monitoimitila sijaitsee kiinteistön katutasossa. Toimistotilassa on erillisiä huoneita sekä avointa tilaa, keittiö ja wc-tilat. Osassa huoneista on säilynyt upeita vanhoja ovia ja sormipaneeleja. Varastotilaan on kulkuyhteys myös nosto-oven (3 x 2,5 m) kautta pihalta. Toimitila sijoittuu rakennuksen kadun puoleiseen osaan, jonka julkisivu näkyy hienosti kadulle. Vieressä ovat pihan vinoparkkipaikat. Tila voidaan vuokrata myös kahdessa osassa (270 m² ja 128 m²) ks. pohjakuva.
Valokaari 10 on varasto-, tuotanto- ja toimistokiinteistö, joka sijaitsee lähellä Kehä III:sta Suutarilassa. Alueella on monipuolisesti palveluja ja hyvät kulkuyhteydet. Kiinteistön pihalla on hyvin pysäköintitilaa.
Kysy lisää numerosta 044 723 4700 tai info@bref.fi. Palvelumme on tilanhakijoille ilmainen.
Tähän varastoon pääsee erittäin kätevästi, bussit kulkevat vain 110 m päästä. Autopesulapalvelut sijaitsevat 388 m päässä varastosta, ja ne ovat käytettävissäsi aina kun tarvitset niitä. Supermarketti joka sijaitsee 475 m päässä varastosta, on suosittu ostospaikka.
Koska Helsinki on helposti saavutettavissa mistä tahansa kaupunginosasta, se edistää logistisia mahdollisuuksiasi huomattavasti. Mahdollisena vuokralaisena voit saada kaikki tarvittavat tiedot tästä varastosta osoitteessa Valokaari 10, Helsinki, 00750 täyttämällä lomakkeen. Kiinnostuitko tämän varaston vuokraamisesta, mutta sinulla on vielä kysyttävää? Täytä lomake saadaksesi yhteyden suoraan vuokranantajaan.
Järvi sijaitsee 313 m päässä varastosta, ja auttaa paikallisia rauhoittamaan kaupunginosan hektisyydestä. Vaikka varasto puiston vieressä voi vaikuttaa jonkinlaiselta teolliselta sadulta, tässä se toteutuu sillä puisto on lähellä. Joki, joka virtaa 382 m päässä varastosta, ottaa teollisuusimagon taakan pois kaupunginosan harteilta.

Etkö ole vielä löytänyt sopivaa tilaa?
Luo hakuvahti ja saat tietoja uusista vapaista vuokrakohteista.
Näyttää siltä, että suosikit-listasi Kohteeton täynnä. Poista vanhoja kohteita lisätäksesi uusia.
Näyttää siltä, että suosikit-listasi Kohteeton täynnä. Poista vanhoja kohteita lisätäksesi uusia.
Näyttää siltä, että suosikit-listasi Kohteeton täynnä. Poista vanhoja kohteita lisätäksesi uusia.
Näyttää siltä, että suosikit-listasi Kohteeton täynnä. Poista vanhoja kohteita lisätäksesi uusia.
Näyttää siltä, että suosikit-listasi Kohteeton täynnä. Poista vanhoja kohteita lisätäksesi uusia.
Näyttää siltä, että suosikit-listasi Kohteeton täynnä. Poista vanhoja kohteita lisätäksesi uusia.
Näyttää siltä, että suosikit-listasi Kohteeton täynnä. Poista vanhoja kohteita lisätäksesi uusia.
Näyttää siltä, että suosikit-listasi Kohteeton täynnä. Poista vanhoja kohteita lisätäksesi uusia.
Näyttää siltä, että suosikit-listasi Kohteeton täynnä. Poista vanhoja kohteita lisätäksesi uusia.
Näyttää siltä, että suosikit-listasi Kohteeton täynnä. Poista vanhoja kohteita lisätäksesi uusia.
Näyttää siltä, että suosikit-listasi Kohteeton täynnä. Poista vanhoja kohteita lisätäksesi uusia.
Näyttää siltä, että suosikit-listasi Kohteeton täynnä. Poista vanhoja kohteita lisätäksesi uusia.
Näyttää siltä, että suosikit-listasi Kohteeton täynnä. Poista vanhoja kohteita lisätäksesi uusia.
Näyttää siltä, että suosikit-listasi Kohteeton täynnä. Poista vanhoja kohteita lisätäksesi uusia.
Näyttää siltä, että suosikit-listasi Kohteeton täynnä. Poista vanhoja kohteita lisätäksesi uusia.