




100% ilmainen ja ilman sitoumuksia
100% ilmainen ja ilman sitoumuksia
Malminkaari 5, Helsinki
Vuokrattavana toimisto-/liiketilaa Helsingin Malmilta.
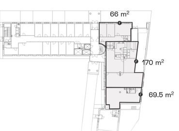
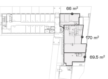
Tämä toimistotila on kooltaan 305,5 m², ja se sijaitsee kiinteistön katutasossa. Toimistossa on huoneita, avotilaa sekä omat keittiö- ja wc-tilat. Tila soveltuu myös liiketilakäyttöön. Kokonaisuus on mahdollista jakaa 66 m², 69,5 m² ja 170 m² kokoisiin osiin.
Malminkaari 5 on viisikerroksinen toimitilakiinteistö, jonka tilat soveltuvat monenlaisiin eri toimintatarkoituksiin. Se sijaitsee kävelyetäisyydellä Malmin juna-asemalta ja bussipysäkit löytyvät heti kiinteistön vierestä.
Kysy lisää numerosta 044 723 4700 tai info@bref.fi. Palvelumme on tilanhakijoille ilmainen.
Toimistolle on 1 minuutin kävelymatka lähimmältä bussiasemalta. Keskimäärin yhtä suuri kuin normaali kahvilaa sijaitsee 500 metrin säteellä toimistosta. Viereinen ruokakauppa on varsin hyödyllinen etu kotimatkallasi. Ammattitaitoisen apteekkihenkilökunnan vastaanotto on vain 331 m päässä toimistosta. 24/7 pankkiautomaatti sijaitsee vain 341 m päässä toimistosta.
Yrityksesi tuleva koti hyötyy sijainnistaan alueella Helsinki, joka on tunnetusti suotuisa kaupallinen alue. Tämän toimiston pinta-ala on 305.5m². Se luokitellaan keskikokoiseksi liiketilaksi tässä kaupungissa. Saat lisätietoja tästä toimistosta joka sijaitsee osoitteessa Malminkaari 5, 00700 Helsinki suoraan vuokranantajalta täyttämällä lomakkeen verkkosivuillamme. Vuokranantaja vastaa mielellään kaikkiin kysymyksiisi. Täytä vain lomake verkkosivuillamme ja saat pyydetyt tiedot.
Toimisto sijaitsee lähellä puistoa todella rauhallisessa ja inspiroivassa sijainnissa. Tori on osa kaupungin keskeistä liiketoimintakeskusta, ja sijaitsee lähellä toimistoa. Joki virtaa 378 m etäisyydellä rakennuksesta, mikä lisää paikkakunnan yleistä vetovoimaa. Toinen mielenkiintoinen seikka tässä paikassa on se, että toimisto sijaitsee 321 m päässä yökerhosta.

Etkö ole vielä löytänyt sopivaa tilaa?
Luo hakuvahti ja saat tietoja uusista vapaista vuokrakohteista.
Näyttää siltä, että suosikit-listasi Kohteeton täynnä. Poista vanhoja kohteita lisätäksesi uusia.
Näyttää siltä, että suosikit-listasi Kohteeton täynnä. Poista vanhoja kohteita lisätäksesi uusia.
Näyttää siltä, että suosikit-listasi Kohteeton täynnä. Poista vanhoja kohteita lisätäksesi uusia.
Näyttää siltä, että suosikit-listasi Kohteeton täynnä. Poista vanhoja kohteita lisätäksesi uusia.
Näyttää siltä, että suosikit-listasi Kohteeton täynnä. Poista vanhoja kohteita lisätäksesi uusia.
Näyttää siltä, että suosikit-listasi Kohteeton täynnä. Poista vanhoja kohteita lisätäksesi uusia.
Näyttää siltä, että suosikit-listasi Kohteeton täynnä. Poista vanhoja kohteita lisätäksesi uusia.
Näyttää siltä, että suosikit-listasi Kohteeton täynnä. Poista vanhoja kohteita lisätäksesi uusia.
Näyttää siltä, että suosikit-listasi Kohteeton täynnä. Poista vanhoja kohteita lisätäksesi uusia.
Näyttää siltä, että suosikit-listasi Kohteeton täynnä. Poista vanhoja kohteita lisätäksesi uusia.
Näyttää siltä, että suosikit-listasi Kohteeton täynnä. Poista vanhoja kohteita lisätäksesi uusia.