




100% ilmainen ja ilman sitoumuksia
100% ilmainen ja ilman sitoumuksia
Malminkaari 5, Helsinki
Vuokrattavana toimisto-/liiketilaa Helsingin Malmilta.
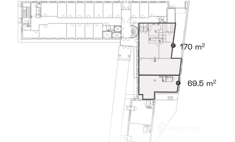
Tämä 239,5 m² tila sijaitsee kiinteistön katutasossa. Toimistossa on huoneita, avotilaa sekä omat keittiö- ja wc-tilat. Tila soveltuu myös liiketilakäyttöön. Kokonaisuus on mahdollista jakaa 69,5 m² ja 170 m² kokoisiin osiin.
Malminkaari 5 on viisikerroksinen toimitilakiinteistö, jonka tilat soveltuvat monenlaisiin eri toimintatarkoituksiin. Se sijaitsee kävelyetäisyydellä Malmin juna-asemalta ja bussipysäkit löytyvät heti kiinteistön vierestä.
Kysy lisää numerosta 044 723 4700 tai info@bref.fi. Palvelumme on tilanhakijoille ilmainen.
Liiketiloille varattu pinta-ala on tällä alueella 170.0 - 170.0 neliömetriä, ja se on melko keskitasoa. Tämä keskikokoinen liiketila soveltuu parhaiten kasvaville yrityksille. Sen pinta-ala on 170.0 m². Helsinki tunnetaan yhtenä kaupungin pirteimmistä ja vilkkaimmista alueista, ja se on aina täynnä ostoksilla ja näyteikkunaostoksilla käyviä ihmisiä. Täytä lomake ja esitä kysymyksiä liiketilan vuokraamisesta osoitteessa Malminkaari 5, Helsinki, 00700 suoraan vuokranantajalle. Saat lisätietoja tästä liiketilasta täyttämällä lomakkeen verkkosivuillamme. Vuokranantaja vastaa kysymyksiisi suoraan.
Myymälän sijainnin muuttaminen kilpailueduksi ei ole vaikeaa, kun vilkas puisto on aivan vieressäsi. Myymälä on lähellä toria, joka on yksi kaupungin suurimmista kuluttajakeskittymistä. Sadat ja tuhannet ihmiset kävelevät päivittäin joen varrella, joka sijaitsee 378 m päässä kaupasta. Tämä on yksi kaupungin monipuolisimmista vapaa-ajanviettopaikoista, klubi sijaitsee 321 m päässä myymälästä.

Etkö ole vielä löytänyt sopivaa tilaa?
Luo hakuvahti ja saat tietoja uusista vapaista vuokrakohteista.
Näyttää siltä, että suosikit-listasi Kohteeton täynnä. Poista vanhoja kohteita lisätäksesi uusia.
Näyttää siltä, että suosikit-listasi Kohteeton täynnä. Poista vanhoja kohteita lisätäksesi uusia.
Näyttää siltä, että suosikit-listasi Kohteeton täynnä. Poista vanhoja kohteita lisätäksesi uusia.
Näyttää siltä, että suosikit-listasi Kohteeton täynnä. Poista vanhoja kohteita lisätäksesi uusia.
Näyttää siltä, että suosikit-listasi Kohteeton täynnä. Poista vanhoja kohteita lisätäksesi uusia.
Näyttää siltä, että suosikit-listasi Kohteeton täynnä. Poista vanhoja kohteita lisätäksesi uusia.
Näyttää siltä, että suosikit-listasi Kohteeton täynnä. Poista vanhoja kohteita lisätäksesi uusia.
Näyttää siltä, että suosikit-listasi Kohteeton täynnä. Poista vanhoja kohteita lisätäksesi uusia.
Näyttää siltä, että suosikit-listasi Kohteeton täynnä. Poista vanhoja kohteita lisätäksesi uusia.