




100% ilmainen ja ilman sitoumuksia
100% ilmainen ja ilman sitoumuksia
Malminkaari 5, Helsinki
Vuokrattavana toimisto-/liiketilaa Helsingin Malmilta.
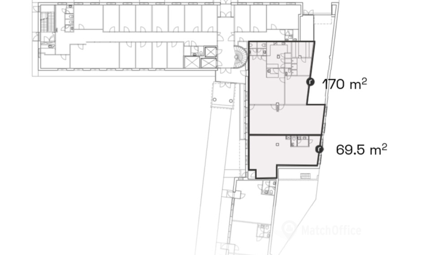
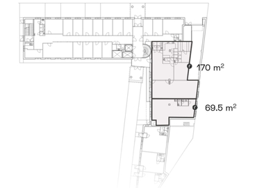
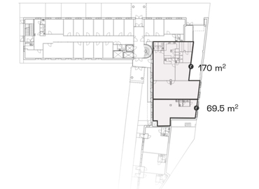
Tämä 239,5 m² tila sijaitsee kiinteistön katutasossa. Toimistossa on huoneita, avotilaa sekä omat keittiö- ja wc-tilat. Tila soveltuu myös liiketilakäyttöön. Kokonaisuus on mahdollista jakaa 69,5 m² ja 170 m² kokoisiin osiin.
Malminkaari 5 on viisikerroksinen toimitilakiinteistö, jonka tilat soveltuvat monenlaisiin eri toimintatarkoituksiin. Se sijaitsee kävelyetäisyydellä Malmin juna-asemalta ja bussipysäkit löytyvät heti kiinteistön vierestä.
Kysy lisää numerosta 044 723 4700 tai info@bref.fi. Palvelumme on tilanhakijoille ilmainen.
Työmatkat toimistolle junalla eivät ole ongelma, sillä lähin pysäkki on 4 minuutin päässä. Lähistöllä sijaitseva ravintola on yksi paikallisen vieraanvaraisuuden keskeisistä vetonauloista.. Viereinen ruokakauppa on varsin hyödyllinen etu kotimatkallasi. Kuntosali joka sijaitsee vain 7 minuutin päässä toimistosta, on asianmukaisesti varustettu urheilukeskus. Polkupyöräparkki on osa lähialueen infrastruktuuria.
Tämä toimisto kattaa 69.5 neliömetriä, joten se on pienempi kuin keskimääräiset työtilat Helsinki:ssä. Tämä on hyvä vaihtoehto start-upeille. Vuokrattavat tilat vaihtelevat 69.5 ja 69.5 neliömetrin välillä. Voit vuokrata pienemmän työtilan ja laajentaa sitä yrityksesi kasvaessa. Toimisto sijaitsee alueella Helsinki, joka on tunnettu yritysmyönteisestä infrastruktuuristaan. Siitä huolimatta, että tämä 69.5m² vuokratila on pienempi kuin useimmat kaupungin toimistot, se on erinomainen vaihtoehto nuorille yrityksille. Vuokranantaja vastaa mielellään kaikkiin kysymyksiisi. Täytä vain lomake verkkosivuillamme ja saat pyydetyt tiedot.
Puisto sijaitsee lähellä toimistoa. Se on täydellinen paikka keskustella ideoista ja projekteista. Tori sijaitsee lähellä toimistoa ja tuo elinvoimaa yrityksesi elämään. Joki virtaa 378 m etäisyydellä rakennuksesta, mikä lisää paikkakunnan yleistä vetovoimaa. Toinen mielenkiintoinen seikka tässä paikassa on se, että toimisto sijaitsee 321 m päässä yökerhosta.

Etkö ole vielä löytänyt sopivaa tilaa?
Luo hakuvahti ja saat tietoja uusista vapaista vuokrakohteista.
Näyttää siltä, että suosikit-listasi Kohteeton täynnä. Poista vanhoja kohteita lisätäksesi uusia.
Näyttää siltä, että suosikit-listasi Kohteeton täynnä. Poista vanhoja kohteita lisätäksesi uusia.
Näyttää siltä, että suosikit-listasi Kohteeton täynnä. Poista vanhoja kohteita lisätäksesi uusia.
Näyttää siltä, että suosikit-listasi Kohteeton täynnä. Poista vanhoja kohteita lisätäksesi uusia.
Näyttää siltä, että suosikit-listasi Kohteeton täynnä. Poista vanhoja kohteita lisätäksesi uusia.
Näyttää siltä, että suosikit-listasi Kohteeton täynnä. Poista vanhoja kohteita lisätäksesi uusia.
Näyttää siltä, että suosikit-listasi Kohteeton täynnä. Poista vanhoja kohteita lisätäksesi uusia.
Näyttää siltä, että suosikit-listasi Kohteeton täynnä. Poista vanhoja kohteita lisätäksesi uusia.
Näyttää siltä, että suosikit-listasi Kohteeton täynnä. Poista vanhoja kohteita lisätäksesi uusia.
Näyttää siltä, että suosikit-listasi Kohteeton täynnä. Poista vanhoja kohteita lisätäksesi uusia.
Näyttää siltä, että suosikit-listasi Kohteeton täynnä. Poista vanhoja kohteita lisätäksesi uusia.
Näyttää siltä, että suosikit-listasi Kohteeton täynnä. Poista vanhoja kohteita lisätäksesi uusia.
Näyttää siltä, että suosikit-listasi Kohteeton täynnä. Poista vanhoja kohteita lisätäksesi uusia.
Näyttää siltä, että suosikit-listasi Kohteeton täynnä. Poista vanhoja kohteita lisätäksesi uusia.
Näyttää siltä, että suosikit-listasi Kohteeton täynnä. Poista vanhoja kohteita lisätäksesi uusia.