




100% ilmainen ja ilman sitoumuksia
100% ilmainen ja ilman sitoumuksia
Malminkaari 5, Helsinki
Vuokrattavana toimisto-/liiketilaa Helsingin Malmilta.
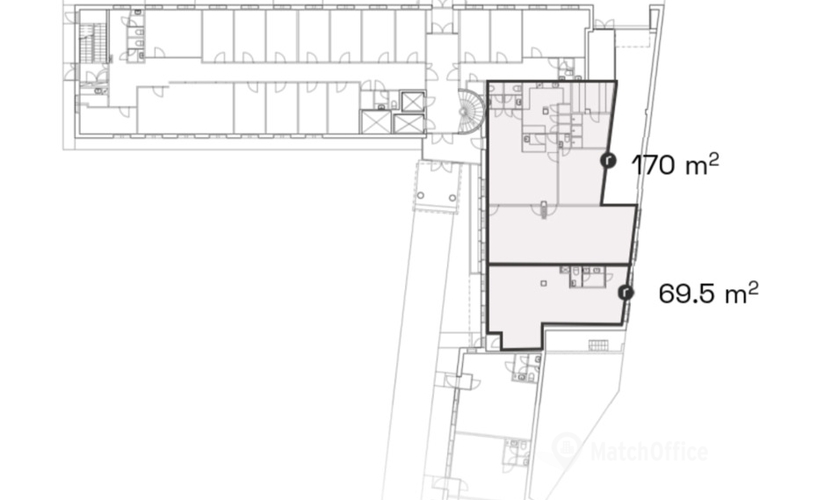
Tämä 239,5 m² tila sijaitsee kiinteistön katutasossa. Toimistossa on huoneita, avotilaa sekä omat keittiö- ja wc-tilat. Tila soveltuu myös liiketilakäyttöön. Kokonaisuus on mahdollista jakaa 69,5 m² ja 170 m² kokoisiin osiin.
Malminkaari 5 on viisikerroksinen toimitilakiinteistö, jonka tilat soveltuvat monenlaisiin eri toimintatarkoituksiin. Se sijaitsee kävelyetäisyydellä Malmin juna-asemalta ja bussipysäkit löytyvät heti kiinteistön vierestä.
Kysy lisää numerosta 044 723 4700 tai info@bref.fi. Palvelumme on tilanhakijoille ilmainen.
Työmatkat toimistolle junalla eivät ole ongelma, sillä lähin pysäkki on 4 minuutin päässä. Viereinen ruokakauppa on varsin hyödyllinen etu kotimatkallasi. Lähin kuntosali löytyy 417 m päästä toimistosta.
Helsinki on alue, jonne yritykset tulevat kokeakseen sen kehittyneen infrastruktuurin edut. Tämän toimiston pinta-ala on 170.0m². Se luokitellaan keskikokoiseksi liiketilaksi tässä kaupungissa. Saat lisätietoja tästä toimistosta joka sijaitsee osoitteessa Malminkaari 5, 00700 Helsinki suoraan vuokranantajalta täyttämällä lomakkeen verkkosivuillamme. Onko sinulla vielä kysyttävää tästä toimistotilan vuokratarjouksesta? Täytä lomake ja kysy suoraan vuokranantajalta.
Toimiston lähellä sijaitseva puisto tuo mukanaan luonnollista rauhallisuutta kaupungin betoniviidakon keskelle. Tori sijaitsee lähellä toimistoa ja tuo elinvoimaa yrityksesi elämään. Joki virtaa vain 378 m päässä toimistosta ja se tekee kohteesta epäilemättä poikkeuksellisen liikekiinteistön. Pidä hauskaa viereisellä klubilla, joka sijaitsee 321 m päässä toimistosta. Se on loistava henkilöstön virkistäytymispaikka.

Etkö ole vielä löytänyt sopivaa tilaa?
Luo hakuvahti ja saat tietoja uusista vapaista vuokrakohteista.
Näyttää siltä, että suosikit-listasi Kohteeton täynnä. Poista vanhoja kohteita lisätäksesi uusia.
Näyttää siltä, että suosikit-listasi Kohteeton täynnä. Poista vanhoja kohteita lisätäksesi uusia.
Näyttää siltä, että suosikit-listasi Kohteeton täynnä. Poista vanhoja kohteita lisätäksesi uusia.
Näyttää siltä, että suosikit-listasi Kohteeton täynnä. Poista vanhoja kohteita lisätäksesi uusia.
Näyttää siltä, että suosikit-listasi Kohteeton täynnä. Poista vanhoja kohteita lisätäksesi uusia.
Näyttää siltä, että suosikit-listasi Kohteeton täynnä. Poista vanhoja kohteita lisätäksesi uusia.
Näyttää siltä, että suosikit-listasi Kohteeton täynnä. Poista vanhoja kohteita lisätäksesi uusia.
Näyttää siltä, että suosikit-listasi Kohteeton täynnä. Poista vanhoja kohteita lisätäksesi uusia.
Näyttää siltä, että suosikit-listasi Kohteeton täynnä. Poista vanhoja kohteita lisätäksesi uusia.
Näyttää siltä, että suosikit-listasi Kohteeton täynnä. Poista vanhoja kohteita lisätäksesi uusia.
Näyttää siltä, että suosikit-listasi Kohteeton täynnä. Poista vanhoja kohteita lisätäksesi uusia.
Näyttää siltä, että suosikit-listasi Kohteeton täynnä. Poista vanhoja kohteita lisätäksesi uusia.
Näyttää siltä, että suosikit-listasi Kohteeton täynnä. Poista vanhoja kohteita lisätäksesi uusia.
Näyttää siltä, että suosikit-listasi Kohteeton täynnä. Poista vanhoja kohteita lisätäksesi uusia.
Näyttää siltä, että suosikit-listasi Kohteeton täynnä. Poista vanhoja kohteita lisätäksesi uusia.
Näyttää siltä, että suosikit-listasi Kohteeton täynnä. Poista vanhoja kohteita lisätäksesi uusia.