
Valokaari 8, Helsinki
Varastotilaa Helsingin Suutarilassa.
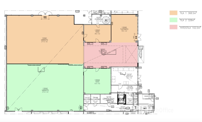
Vuokrattavana siisti 451 m² tuotanto-/varastotila jossa jaettu sisäänkäynti nosto-ovella. Sisäänajossa korkeus 3,35m, varasto-osa n. 7m korkeaa tilaa. Pohjakuvassa tila 1. Kiinteistössä toimii laadukas lounasravintola ja neuvottelutilojen käyttö sisältyy vuokraan.
Valokaari 8 on varasto- ja tuotantokiinteistö, joka sijaitsee lähellä Kehä III:sta Suutarilan teollisuusalueella. Kiinteistö on peruskorjattu ja kiinteistössä on lastauslaituri sekä jäteasema. Alueella on monipuolisesti erilaisia palveluja ja hyvät kulkuyhteydet. Kiinteistön pihalla on hyvin pysäköintitilaa.
Kysy lisää numerosta 044 723 4700 tai info@bref.fi. Palvelumme on tilanhakijoille ilmainen.
Tähän varastoon pääsee erittäin kätevästi, bussit kulkevat vain 178 m päästä. Tämän varaston vuokralaiset hyötyvät latausaseman käyttömahdollisuudesta, se sijaitsee vain 442 m päässä.
Vaikka varasto puiston vieressä voi vaikuttaa jonkinlaiselta teolliselta sadulta, tässä se toteutuu sillä puisto on lähellä. Joki, joka virtaa 276 m päässä varastosta, ottaa teollisuusimagon taakan pois kaupunginosan harteilta. Vuokraamalla tämän varaston saat mahdollisuuden nauttia järven kauneudesta, joka sijaitsee vain 413 m päässä.

Etkö ole vielä löytänyt sopivaa tilaa?
Luo hakuvahti ja saat tietoja uusista vapaista vuokrakohteista.
Näyttää siltä, että suosikit-listasi Kohteeton täynnä. Poista vanhoja kohteita lisätäksesi uusia.
Näyttää siltä, että suosikit-listasi Kohteeton täynnä. Poista vanhoja kohteita lisätäksesi uusia.
Näyttää siltä, että suosikit-listasi Kohteeton täynnä. Poista vanhoja kohteita lisätäksesi uusia.
Näyttää siltä, että suosikit-listasi Kohteeton täynnä. Poista vanhoja kohteita lisätäksesi uusia.
Näyttää siltä, että suosikit-listasi Kohteeton täynnä. Poista vanhoja kohteita lisätäksesi uusia.
Näyttää siltä, että suosikit-listasi Kohteeton täynnä. Poista vanhoja kohteita lisätäksesi uusia.