

Liisankatu 14, Helsinki
Toimistotilaa viihtyisällä alueella Helsingin Kruununhaassa.
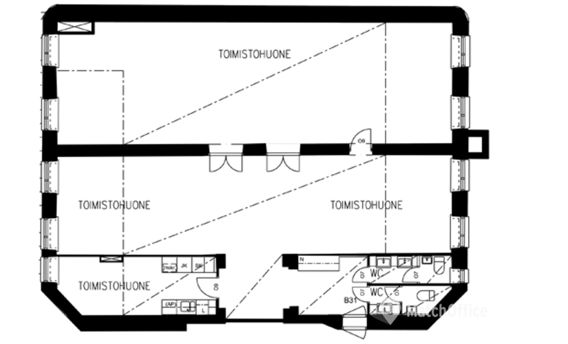
Kyseinen 175m2 toimistotila sijaitsee kiinteistön 2. kerroksessa ja siihen kuuluu oma keittokomero sekä wc-tilat. Toimistossa on koneellinen ilmanvaihto.
Liisankatu 14 on valmistunut asuin- ja liikekiinteistöksi 1920-luvulla ja sen julkisivu ja porrashuoneet peruskorjattiin vuonna 2002. Sen on suunnittelut K. Borg. Kiinteistössä on piirteitä uusklassismista sekä funktionalimista. Rakennuksessa on toiminut aikanaan Suomen Filmiteollisuus.
Kysy lisää numerosta 044 723 4700 tai info@bref.fi. Palvelumme on tilanhakijoille ilmainen.
Etkö ole vielä löytänyt sopivaa tilaa?
Luo hakuvahti ja saat tietoja uusista vapaista vuokrakohteista.
Näyttää siltä, että suosikit-listasi Kohteeton täynnä. Poista vanhoja kohteita lisätäksesi uusia.
Näyttää siltä, että suosikit-listasi Kohteeton täynnä. Poista vanhoja kohteita lisätäksesi uusia.
Näyttää siltä, että suosikit-listasi Kohteeton täynnä. Poista vanhoja kohteita lisätäksesi uusia.
Näyttää siltä, että suosikit-listasi Kohteeton täynnä. Poista vanhoja kohteita lisätäksesi uusia.
Näyttää siltä, että suosikit-listasi Kohteeton täynnä. Poista vanhoja kohteita lisätäksesi uusia.
Näyttää siltä, että suosikit-listasi Kohteeton täynnä. Poista vanhoja kohteita lisätäksesi uusia.
Näyttää siltä, että suosikit-listasi Kohteeton täynnä. Poista vanhoja kohteita lisätäksesi uusia.
Näyttää siltä, että suosikit-listasi Kohteeton täynnä. Poista vanhoja kohteita lisätäksesi uusia.
Näyttää siltä, että suosikit-listasi Kohteeton täynnä. Poista vanhoja kohteita lisätäksesi uusia.
Näyttää siltä, että suosikit-listasi Kohteeton täynnä. Poista vanhoja kohteita lisätäksesi uusia.