

100% ilmainen ja ilman sitoumuksia
100% ilmainen ja ilman sitoumuksia
Kutojantie 7, Espoo
Siistiä ja valoisaa toimistotilaa Kilon Timantissa.
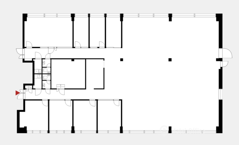
Tämä 481 m² toimisto sijaitsee kiinteistön 3. kerroksessa. Toimistossa on huoneita, avotilaa ja omat wc:t.
Kilon Timantti sijaitsee Kilossa, Kehä II:n ja Turunväylän vieressä. Kiinteistön tilat ovat muokattavissa käyttäjiensä tarpeiden mukaan ja sieltä löytyy mm. kokous- ja saunatilat sekä pysäköintipaikkoja.
Kysy lisää numerosta 044 723 4700 tai info@bref.fi. Palvelumme on tilanhakijoille ilmainen.
Tämä toimisto sijaitsee vain 5 minuutin kävelymatkan päässä linja-autoasemalta. Ekologista vastuullisuutta tavoitteleva sähköautojen latausasema on vain 508 m päässä toimistosta. Kuntosali joka sijaitsee vain 3 minuutin päässä toimistosta, on asianmukaisesti varustettu urheilukeskus. Polkupyöräparkki on osa lähialueen infrastruktuuria.
Tämän toimiston käyttöalue on 481.0 - 481.0 neliömetriä, joten se on tilavampi kuin suurin osa vaihtoehdoista Espoo:ssä. Toimistotilan pinta-ala on 481.0 neliömetriä, mikä on suurempi kuin suurin osa Espoo työtiloista.. Yrityksesi tuleva koti hyötyy sijainnistaan alueella Espoo, joka on tunnetusti suotuisa kaupallinen alue. Tämä toimisto on pinta-alaltaan 481.0 m², mikä on suurempi kuin suurin osa kaupungin vastaavista tiloista. Onko sinulla vielä kysyttävää tästä toimistotilan vuokratarjouksesta? Täytä lomake ja kysy suoraan vuokranantajalta.
Toimiston lähellä sijaitseva puisto tuo mukanaan luonnollista rauhallisuutta kaupungin betoniviidakon keskelle. Joki virtaa 405 m etäisyydellä rakennuksesta, mikä lisää paikkakunnan yleistä vetovoimaa. Moottoritie kulkee lähellä toimistoa, mikä on melkoinen etu. Nykypäivän liiketoiminta on voimakkaasti sidoksissa ihmisten liikkumismahdollisuuksiin.

Etkö ole vielä löytänyt sopivaa tilaa?
Luo hakuvahti ja saat tietoja uusista vapaista vuokrakohteista.
Näyttää siltä, että suosikit-listasi Kohteeton täynnä. Poista vanhoja kohteita lisätäksesi uusia.
Näyttää siltä, että suosikit-listasi Kohteeton täynnä. Poista vanhoja kohteita lisätäksesi uusia.
Näyttää siltä, että suosikit-listasi Kohteeton täynnä. Poista vanhoja kohteita lisätäksesi uusia.
Näyttää siltä, että suosikit-listasi Kohteeton täynnä. Poista vanhoja kohteita lisätäksesi uusia.
Näyttää siltä, että suosikit-listasi Kohteeton täynnä. Poista vanhoja kohteita lisätäksesi uusia.
Näyttää siltä, että suosikit-listasi Kohteeton täynnä. Poista vanhoja kohteita lisätäksesi uusia.
Näyttää siltä, että suosikit-listasi Kohteeton täynnä. Poista vanhoja kohteita lisätäksesi uusia.
Näyttää siltä, että suosikit-listasi Kohteeton täynnä. Poista vanhoja kohteita lisätäksesi uusia.
Näyttää siltä, että suosikit-listasi Kohteeton täynnä. Poista vanhoja kohteita lisätäksesi uusia.
Näyttää siltä, että suosikit-listasi Kohteeton täynnä. Poista vanhoja kohteita lisätäksesi uusia.
Näyttää siltä, että suosikit-listasi Kohteeton täynnä. Poista vanhoja kohteita lisätäksesi uusia.
Näyttää siltä, että suosikit-listasi Kohteeton täynnä. Poista vanhoja kohteita lisätäksesi uusia.
Näyttää siltä, että suosikit-listasi Kohteeton täynnä. Poista vanhoja kohteita lisätäksesi uusia.
Näyttää siltä, että suosikit-listasi Kohteeton täynnä. Poista vanhoja kohteita lisätäksesi uusia.
Näyttää siltä, että suosikit-listasi Kohteeton täynnä. Poista vanhoja kohteita lisätäksesi uusia.
Näyttää siltä, että suosikit-listasi Kohteeton täynnä. Poista vanhoja kohteita lisätäksesi uusia.
Näyttää siltä, että suosikit-listasi Kohteeton täynnä. Poista vanhoja kohteita lisätäksesi uusia.
Näyttää siltä, että suosikit-listasi Kohteeton täynnä. Poista vanhoja kohteita lisätäksesi uusia.