

100% ilmainen ja ilman sitoumuksia
100% ilmainen ja ilman sitoumuksia
Kutojantie 7, Espoo
Siistiä ja valoisaa toimistotilaa Kilon Timantissa.
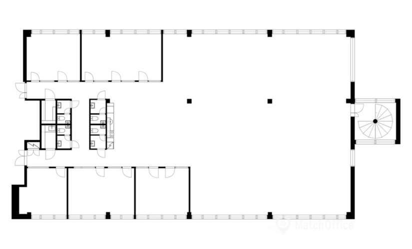
Kyseinen 462m2 toimisto sijaitsee kiinteistön ensimmäisessä kerroksessa. Tila on pääosin avonaista ja siihen kuuluvat omat wc-tilat ja keittiö.
Kilon Timantti sijaitsee Kilossa, Kehä II:n ja Turunväylän vieressä. Kiinteistön tilat ovat muokattavissa käyttäjiensä tarpeiden mukaan ja sieltä löytyy mm. kokous- ja saunatilat sekä pysäköintipaikkoja.
Kysy lisää numerosta 044 723 4700 tai info@bref.fi. Palvelumme on tilanhakijoille ilmainen.
Tämän toimiston käyttöalue on 462.0 - 462.0 neliömetriä, joten se on tilavampi kuin suurin osa vaihtoehdoista Espoo:ssä. Toimistotilan pinta-ala on 462.0 neliömetriä, mikä on suurempi kuin suurin osa Espoo työtiloista.. Kun perustat yrityksen alueelle Espoo, tulet ymmärtämään mitä yritysystävällinen infrastruktuuri tarkoittaa. Tämä toimisto on pinta-alaltaan 462.0 m², mikä on suurempi kuin suurin osa kaupungin vastaavista tiloista. Täytä lomake ja kysy toimistoa koskevat kysymykset suoraan kiinteistön omistajalta.
Koska moottoritie sijaitsee toimiston välittömässä läheisyydessä, työntekijäsi eivät koskaan kohtaa esteitä työmatkallaan. Puisto sijaitsee lähellä toimistoa. Se on täydellinen paikka keskustella ideoista ja projekteista. Joki virtaa vain 405 m päässä toimistosta ja se tekee kohteesta epäilemättä poikkeuksellisen liikekiinteistön.

Etkö ole vielä löytänyt sopivaa tilaa?
Luo hakuvahti ja saat tietoja uusista vapaista vuokrakohteista.
Näyttää siltä, että suosikit-listasi Kohteeton täynnä. Poista vanhoja kohteita lisätäksesi uusia.
Näyttää siltä, että suosikit-listasi Kohteeton täynnä. Poista vanhoja kohteita lisätäksesi uusia.
Näyttää siltä, että suosikit-listasi Kohteeton täynnä. Poista vanhoja kohteita lisätäksesi uusia.
Näyttää siltä, että suosikit-listasi Kohteeton täynnä. Poista vanhoja kohteita lisätäksesi uusia.
Näyttää siltä, että suosikit-listasi Kohteeton täynnä. Poista vanhoja kohteita lisätäksesi uusia.
Näyttää siltä, että suosikit-listasi Kohteeton täynnä. Poista vanhoja kohteita lisätäksesi uusia.
Näyttää siltä, että suosikit-listasi Kohteeton täynnä. Poista vanhoja kohteita lisätäksesi uusia.
Näyttää siltä, että suosikit-listasi Kohteeton täynnä. Poista vanhoja kohteita lisätäksesi uusia.
Näyttää siltä, että suosikit-listasi Kohteeton täynnä. Poista vanhoja kohteita lisätäksesi uusia.
Näyttää siltä, että suosikit-listasi Kohteeton täynnä. Poista vanhoja kohteita lisätäksesi uusia.
Näyttää siltä, että suosikit-listasi Kohteeton täynnä. Poista vanhoja kohteita lisätäksesi uusia.
Näyttää siltä, että suosikit-listasi Kohteeton täynnä. Poista vanhoja kohteita lisätäksesi uusia.
Näyttää siltä, että suosikit-listasi Kohteeton täynnä. Poista vanhoja kohteita lisätäksesi uusia.
Näyttää siltä, että suosikit-listasi Kohteeton täynnä. Poista vanhoja kohteita lisätäksesi uusia.
Näyttää siltä, että suosikit-listasi Kohteeton täynnä. Poista vanhoja kohteita lisätäksesi uusia.
Näyttää siltä, että suosikit-listasi Kohteeton täynnä. Poista vanhoja kohteita lisätäksesi uusia.
Näyttää siltä, että suosikit-listasi Kohteeton täynnä. Poista vanhoja kohteita lisätäksesi uusia.
Näyttää siltä, että suosikit-listasi Kohteeton täynnä. Poista vanhoja kohteita lisätäksesi uusia.