




100% ilmainen ja ilman sitoumuksia
100% ilmainen ja ilman sitoumuksia
Vanha Porvoontie 231, Vantaa
Varastotilaa Vantaan Akseli-logistiikka-alueella.
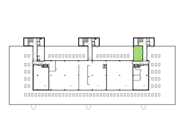
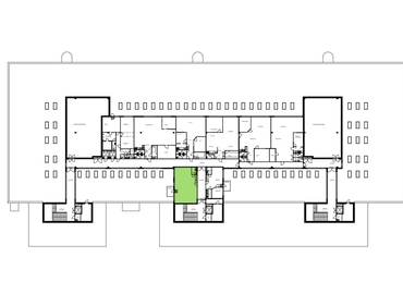
Vuokrattavana 368 m² varastotila kiinteistön B-rakennuksen 4. kerroksesta.
Vanha Porvoontie 231 on toimisto-, tuotanto- ja varastokiinteistö Vantaan Hakkilassa logistiikkapainotteisella Akseli- alueella.
Kiinteistössä on laaja rekkapiha ja lastauslaiturit, joilta kulku suoraan tavarahisseillä (5000kg) kerroksiin. Kiinteistössä sprinklerijärjestelmä ja aidattu tontti.
Viereisessä kiinteistössä toimistopalveluja ja mm. lounasravintola.
Kysy lisää numerosta 044 723 4700 tai info@bref.fi. Palvelumme on tilanhakijoille ilmainen.
Vastaavan infrastruktuurin ansiosta Vantaa on epäilemättä paikka, josta voi löytää tehokkaita varastointiratkaisuja. Mahdollisena vuokralaisena voit saada kaikki tarvittavat tiedot tästä varastosta osoitteessa Vanha Porvoontie 231, Vantaa, 01380 täyttämällä lomakkeen. Voit tiedustella tätä varastotilaa sähköisen lomakkeen välityksellä. Saat yhteyden suoraan vuokranantajaan.
Etkö ole vielä löytänyt sopivaa tilaa?
Luo hakuvahti ja saat tietoja uusista vapaista vuokrakohteista.
Näyttää siltä, että suosikit-listasi Kohteeton täynnä. Poista vanhoja kohteita lisätäksesi uusia.
Näyttää siltä, että suosikit-listasi Kohteeton täynnä. Poista vanhoja kohteita lisätäksesi uusia.
Näyttää siltä, että suosikit-listasi Kohteeton täynnä. Poista vanhoja kohteita lisätäksesi uusia.
Näyttää siltä, että suosikit-listasi Kohteeton täynnä. Poista vanhoja kohteita lisätäksesi uusia.
Näyttää siltä, että suosikit-listasi Kohteeton täynnä. Poista vanhoja kohteita lisätäksesi uusia.
Näyttää siltä, että suosikit-listasi Kohteeton täynnä. Poista vanhoja kohteita lisätäksesi uusia.
Näyttää siltä, että suosikit-listasi Kohteeton täynnä. Poista vanhoja kohteita lisätäksesi uusia.
Näyttää siltä, että suosikit-listasi Kohteeton täynnä. Poista vanhoja kohteita lisätäksesi uusia.
Näyttää siltä, että suosikit-listasi Kohteeton täynnä. Poista vanhoja kohteita lisätäksesi uusia.
Näyttää siltä, että suosikit-listasi Kohteeton täynnä. Poista vanhoja kohteita lisätäksesi uusia.
Näyttää siltä, että suosikit-listasi Kohteeton täynnä. Poista vanhoja kohteita lisätäksesi uusia.
Näyttää siltä, että suosikit-listasi Kohteeton täynnä. Poista vanhoja kohteita lisätäksesi uusia.
Näyttää siltä, että suosikit-listasi Kohteeton täynnä. Poista vanhoja kohteita lisätäksesi uusia.
Näyttää siltä, että suosikit-listasi Kohteeton täynnä. Poista vanhoja kohteita lisätäksesi uusia.
Näyttää siltä, että suosikit-listasi Kohteeton täynnä. Poista vanhoja kohteita lisätäksesi uusia.
Näyttää siltä, että suosikit-listasi Kohteeton täynnä. Poista vanhoja kohteita lisätäksesi uusia.