
100% ilmainen ja ilman sitoumuksia
100% ilmainen ja ilman sitoumuksia
Pakkalantie 21, Vantaa
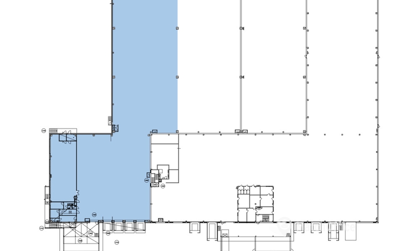
Varastotilaa Vantaan Virkamiehessä.
Tämä 2243 m² varastotila sijaitsee kiinteistön 1. kerroksessa. Tilassa on lastauslaituri ja 4 lastaustaskua. Tilan vapaa korkeus on 6-10 metriä. Omat wc- ja sosiaalitilat. Kokonaisuuteen sisältyy myös muutamia toimistohuoneita. Laaja piha-alue.
Pakkalantie 21 sijaitsee Kehä III:n varrella, lähellä Helsinki-Vantaan lentokenttää. Lyhyen ajomatkan päästä löytyy mm. kauppakeskus Jumbon ja Viihdekeskus Flamingon monipuoliset palvelut.
Kysy lisää numerosta 044 723 4700 tai info@bref.fi. Palvelumme on tilanhakijoille ilmainen.
Helposti saavutettavissa mistä tahansa suunnasta, Vantaa voidaan helposti kutsua yhdeksi parhaista varastointipaikoista. Mahdollisena vuokralaisena voit saada kaikki tarvittavat tiedot tästä varastosta osoitteessa Pakkalantie 21, Vantaa, 01510 täyttämällä lomakkeen. Voit täyttää verkkolomakkeen sinulle sopivana ajankohtana. Se auttaa sinua pysymään suorassa yhteydessä vuokranantajaan.
Joki, joka virtaa 275 m päässä varastosta, ottaa teollisuusimagon taakan pois kaupunginosan harteilta. Järvi sijaitsee 330 m päässä varastosta, ja auttaa paikallisia rauhoittamaan kaupunginosan hektisyydestä. Vaikka varasto puiston vieressä voi vaikuttaa jonkinlaiselta teolliselta sadulta, tässä se toteutuu sillä puisto on lähellä.

Etkö ole vielä löytänyt sopivaa tilaa?
Luo hakuvahti ja saat tietoja uusista vapaista vuokrakohteista.
Näyttää siltä, että suosikit-listasi Kohteeton täynnä. Poista vanhoja kohteita lisätäksesi uusia.
Näyttää siltä, että suosikit-listasi Kohteeton täynnä. Poista vanhoja kohteita lisätäksesi uusia.
Näyttää siltä, että suosikit-listasi Kohteeton täynnä. Poista vanhoja kohteita lisätäksesi uusia.
Näyttää siltä, että suosikit-listasi Kohteeton täynnä. Poista vanhoja kohteita lisätäksesi uusia.
Näyttää siltä, että suosikit-listasi Kohteeton täynnä. Poista vanhoja kohteita lisätäksesi uusia.
Näyttää siltä, että suosikit-listasi Kohteeton täynnä. Poista vanhoja kohteita lisätäksesi uusia.
Näyttää siltä, että suosikit-listasi Kohteeton täynnä. Poista vanhoja kohteita lisätäksesi uusia.