




100% ilmainen ja ilman sitoumuksia
100% ilmainen ja ilman sitoumuksia
Jasperintie 270, Pirkkala
Monitoimitilaa voimakkaasti kehittyvällä Pirkkalan alueella aivan lentokentän läheisyydessä.
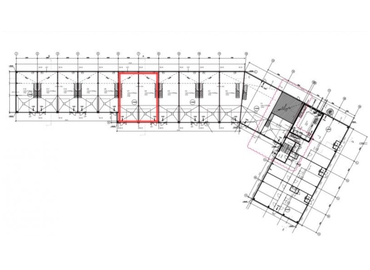
Vuokrattavana 223 m² katutason tuotantoon tai varastointiin soveltuvaa toimitilaa. Tilassa on lattiakaivo hiekan- ja öljynerottimilla, sähkökäyttöiset nosto-ovet, käyntiovi sekä koneellinen ilmanvaihto. Tilan korkeus on yli 5 metriä. Kuvat ovat yleiskuvia kiinteistön tiloista.
Kiinteistö on valmistunut maaliskuussa 2018 ja sen tilat on rakennettu joustaviksi niin, että yksiköitä on helppo muunnella, jakaa ja yhdistellä. Tilat mukautuvat helposti käyttäjän eri tarpeisiin, ne voivat esimerkiksi toimia tuotanto-, varasto-, näyttely- tai myymälätiloina. Kaikissa tiloissa on koneellinen ilmanvaihto lämmöntalteenotolla sekä maalämpö. Kiinteistön pihalla on pysäköintitilaa.
Alueella toimivat mm. Ramirent, Hämeen Laaturemontti, Rotator, Valtra, DHL, TNT, Kattokeskus ja Ponsse.
Kysy lisää numerosta 044 723 4700 tai info@bref.fi. Palvelumme on tilanhakijoille ilmainen.
Teollisesta menneisyydestään tunnettu Pirkkala on säilyttänyt suuren osan infrastruktuuriperinnöstään, ja nykyään se toimii nykyaikaisina varasto- ja varastointitiloina. Mahdollisena vuokralaisena voit saada kaikki tarvittavat tiedot tästä varastosta osoitteessa Jasperintie 270, Pirkkala, 33960 täyttämällä lomakkeen. Täytä ruudulla oleva lomake, niin saat kaiken haluamasi tiedon tästä varastosta. Vuokranantaja vastaa kysymyksiin.
Tämä varasto tarjoaa hyödykkeillesi lisää liikkuvuutta, koska se sijaitsee lähellä moottoritietä. Varaston sijaintipaikalla käydessäsi näet sen välittömässä läheisyydessä sijaitsevan puiston. Joen sijaitseminen 367 m päässä varastosta on vankka infrastruktuuriin liittyvä etu.

Etkö ole vielä löytänyt sopivaa tilaa?
Luo hakuvahti ja saat tietoja uusista vapaista vuokrakohteista.
Näyttää siltä, että suosikit-listasi Kohteeton täynnä. Poista vanhoja kohteita lisätäksesi uusia.
Näyttää siltä, että suosikit-listasi Kohteeton täynnä. Poista vanhoja kohteita lisätäksesi uusia.
Näyttää siltä, että suosikit-listasi Kohteeton täynnä. Poista vanhoja kohteita lisätäksesi uusia.
Näyttää siltä, että suosikit-listasi Kohteeton täynnä. Poista vanhoja kohteita lisätäksesi uusia.
Näyttää siltä, että suosikit-listasi Kohteeton täynnä. Poista vanhoja kohteita lisätäksesi uusia.
Näyttää siltä, että suosikit-listasi Kohteeton täynnä. Poista vanhoja kohteita lisätäksesi uusia.
Näyttää siltä, että suosikit-listasi Kohteeton täynnä. Poista vanhoja kohteita lisätäksesi uusia.
Näyttää siltä, että suosikit-listasi Kohteeton täynnä. Poista vanhoja kohteita lisätäksesi uusia.