



Valokaari 8, Helsinki
Varasto-/tuotantotilaa Helsingin Suutarilassa.
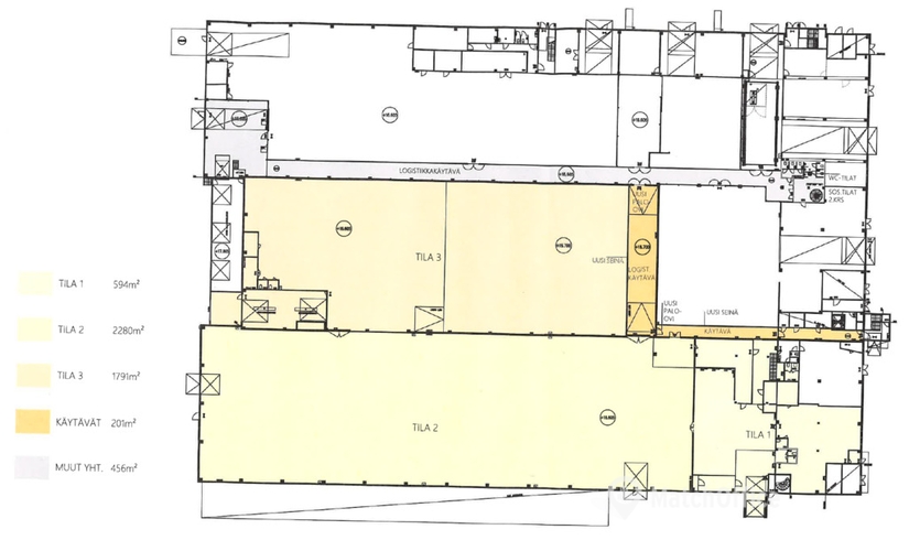
Tämä 5243m2 tilakokonaisuus sijaitsee kiinteistön katutasossa. Tila on jaettavissa kolmeen osaan 594m2, 1791m2 ja 2280m2 kokoisiksi tiloiksi. Tila vapautuu huhtikuussa 2023.
Valokaari 8 on varasto- ja tuotantokiinteistö, joka sijaitsee lähellä Kehä III:sta Suutarilan teollisuusalueella. Kiinteistö on peruskorjattu ja kiinteistössä on lastauslaituri sekä jäteasema. Alueella on monipuolisesti erilaisia palveluja ja hyvät kulkuyhteydet. Kiinteistön pihalla on hyvin pysäköintitilaa.
Kysy lisää numerosta 044 723 4700 tai info@bref.fi. Palvelumme on tilanhakijoille ilmainen.
Tähän varastoon pääsee erittäin kätevästi, bussit kulkevat vain 97 m päästä. Tämän varaston vuokralaiset hyötyvät latausaseman käyttömahdollisuudesta, se sijaitsee vain 471 m päässä.
Varaston sijaintipaikalla käydessäsi näet sen välittömässä läheisyydessä sijaitsevan puiston. Joen sijaitseminen 277 m päässä varastosta on vankka infrastruktuuriin liittyvä etu.

Etkö ole vielä löytänyt sopivaa tilaa?
Luo hakuvahti ja saat tietoja uusista vapaista vuokrakohteista.
Näyttää siltä, että suosikit-listasi Kohteeton täynnä. Poista vanhoja kohteita lisätäksesi uusia.
Näyttää siltä, että suosikit-listasi Kohteeton täynnä. Poista vanhoja kohteita lisätäksesi uusia.
Näyttää siltä, että suosikit-listasi Kohteeton täynnä. Poista vanhoja kohteita lisätäksesi uusia.
Näyttää siltä, että suosikit-listasi Kohteeton täynnä. Poista vanhoja kohteita lisätäksesi uusia.
Näyttää siltä, että suosikit-listasi Kohteeton täynnä. Poista vanhoja kohteita lisätäksesi uusia.
Näyttää siltä, että suosikit-listasi Kohteeton täynnä. Poista vanhoja kohteita lisätäksesi uusia.
Näyttää siltä, että suosikit-listasi Kohteeton täynnä. Poista vanhoja kohteita lisätäksesi uusia.
Näyttää siltä, että suosikit-listasi Kohteeton täynnä. Poista vanhoja kohteita lisätäksesi uusia.
Näyttää siltä, että suosikit-listasi Kohteeton täynnä. Poista vanhoja kohteita lisätäksesi uusia.
Näyttää siltä, että suosikit-listasi Kohteeton täynnä. Poista vanhoja kohteita lisätäksesi uusia.