

Höyläämötie 14, Helsinki
Nykyaikaista toimistotilaa Helsingin Pitäjänmäellä.
Höyläämötie 14 on toiminut aikaisemmin lääkealan yrityksen pääkonttorina. Kohde saneerataan nykypäivän vaatimusten mukaiseksi vuoden 2018 aikana. Kiinteistössä on vuokrattavana toimistotilaa 1.-4. kerroksissa. Toimitiloista tehdään pienten ja keskisuurten yritysten tarpeisiin muovautuvia monitoimitiloja. Lopulliset tilaratkaisut suunnitellaan yhdessä tulevan vuokralaisen kanssa. Tilat ovat muuttovalmiita 3 kuukauden kuluttua sopimuksen allekirjoituksesta.
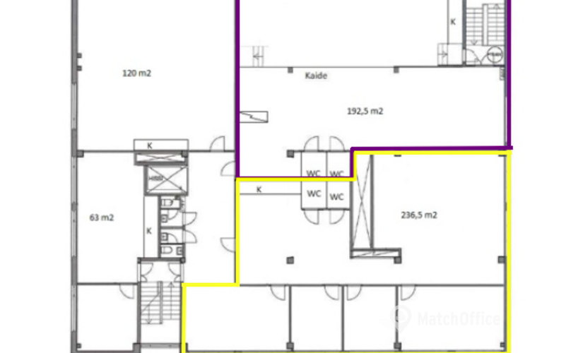
Kiinteistön kolmas kerros on pilkottavissa 63m2, 120m2, 192,5m2 sekä 236,5m2 kokonaisuuksiksi. Tämä 192,5m2 toimitila on rajattu pohjaan violetilla.
Kysy lisää sami.rasanen@bref.fi tai soita 040 500 0099. Palvelumme on tilanhakijoille ilmainen.
Etkö ole vielä löytänyt sopivaa tilaa?
Luo hakuvahti ja saat tietoja uusista vapaista vuokrakohteista.
Näyttää siltä, että suosikit-listasi Kohteeton täynnä. Poista vanhoja kohteita lisätäksesi uusia.
Näyttää siltä, että suosikit-listasi Kohteeton täynnä. Poista vanhoja kohteita lisätäksesi uusia.
Näyttää siltä, että suosikit-listasi Kohteeton täynnä. Poista vanhoja kohteita lisätäksesi uusia.
Näyttää siltä, että suosikit-listasi Kohteeton täynnä. Poista vanhoja kohteita lisätäksesi uusia.
Näyttää siltä, että suosikit-listasi Kohteeton täynnä. Poista vanhoja kohteita lisätäksesi uusia.
Näyttää siltä, että suosikit-listasi Kohteeton täynnä. Poista vanhoja kohteita lisätäksesi uusia.