




100% ilmainen ja ilman sitoumuksia
100% ilmainen ja ilman sitoumuksia
Liesikuja 5, Vantaa
Toimistotilaa Vantaan Myyrmäellä.
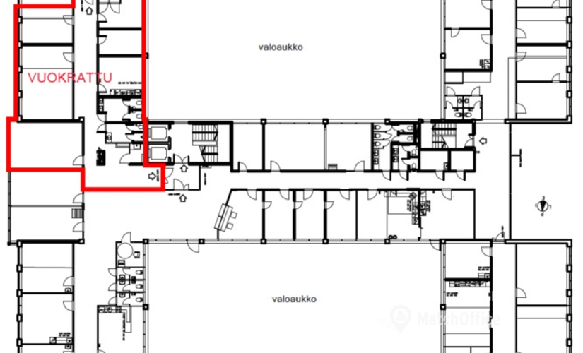
Tämä 2080 m² toimistotila sijaitsee kiinteistön 2. kerroksessa. Toimisto on pääosin huoneellinen, ja siinä on useampi keittiö- ja wc-tila. Tila on esteetön. Kuvat ovat yleiskuvia kiinteistön toimistotiloista.
Liesikuja 5 sijaitsee hyvällä paikalla lähellä Myyrmäessä, Myyrmannin kauppakeskuksen ja Isomyyrin läheisyydessä. Kiinteistössä toimii mm. lääkärikeskus, kuntosali ja lounasravintola.
Kysy lisää numerosta 044 723 4700 tai info@bref.fi. Palvelumme on tilanhakijoille ilmainen.
Tämä toimisto sijaitsee vain 2 minuutin kävelymatkan päässä linja-autoasemalta. Jos haluat saada autosi säihkyvän puhtaaksi, lähin autopesula on vain 6 minuutin matkan päässä. Viereinen ruokakauppa on varsin hyödyllinen etu kotimatkallasi. Lähin kuntosali löytyy 37 m päästä toimistosta.
Tämän toimiston käyttöalue on 2080.0 - 2080.0 neliömetriä, joten se on tilavampi kuin suurin osa vaihtoehdoista Vantaa:ssä. Tämä toimitila on pinta-alaltaan 2080.0 neliömetriä, joten se kuuluu Vantaa suurimpien vuokratilojen joukkoon. Tämä toimisto on pinta-alaltaan 2080.0 m², mikä on suurempi kuin suurin osa kaupungin vastaavista tiloista. Vantaa on alue, jonne yritykset tulevat kokeakseen sen kehittyneen infrastruktuurin edut. Täytä lomake saadaksesi lisätietoja toimistosta. Kaikki tarvitsemasi tiedot saat suoraan vuokranantajalta.
Torin läheisyydessä sijaitseva toimistorakennus täydentää yhden kaupungin kauneimman kaupunginosan arkkitehtuurin kokonaisuutta. Järvi sijaitsee 657 m päässä toimistosta, ja se on loputon energian ja motivaation lähde. Joki virtaa 499 m etäisyydellä rakennuksesta, mikä lisää paikkakunnan yleistä vetovoimaa. Toimisto sijaitsee lähellä puistoa todella rauhallisessa ja inspiroivassa sijainnissa. Taiteellisena bonuksena löydät teatterin, joka seisoo mahtavasti lähellä toimistoa.

Etkö ole vielä löytänyt sopivaa tilaa?
Luo hakuvahti ja saat tietoja uusista vapaista vuokrakohteista.
Näyttää siltä, että suosikit-listasi Kohteeton täynnä. Poista vanhoja kohteita lisätäksesi uusia.
Näyttää siltä, että suosikit-listasi Kohteeton täynnä. Poista vanhoja kohteita lisätäksesi uusia.
Näyttää siltä, että suosikit-listasi Kohteeton täynnä. Poista vanhoja kohteita lisätäksesi uusia.
Näyttää siltä, että suosikit-listasi Kohteeton täynnä. Poista vanhoja kohteita lisätäksesi uusia.
Näyttää siltä, että suosikit-listasi Kohteeton täynnä. Poista vanhoja kohteita lisätäksesi uusia.
Näyttää siltä, että suosikit-listasi Kohteeton täynnä. Poista vanhoja kohteita lisätäksesi uusia.
Näyttää siltä, että suosikit-listasi Kohteeton täynnä. Poista vanhoja kohteita lisätäksesi uusia.