




100% ilmainen ja ilman sitoumuksia
100% ilmainen ja ilman sitoumuksia
Rykmentintie 8, Tuusula
Päiväkoti-/toimistotilaa Tuusulan Hyrylässä.
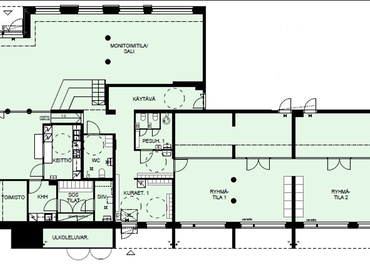
Tämä 442 m² tila sijaitsee asuinkiinteistön katutasossa. Kahden talon väliin jäävä suojaisa sisäpiha toimii päiväkodin omana piha-alueena. Tila sisältää monitoimitilan/salin, kaksi ryhmätilaa, sosiaali- ja peseytymistilat, keittiön ja toimistohuoneen. Tila on mahdollista ottaa myös toimistokäyttöön. Kokonaisuus voidaan jakaa useammalle käyttäjälle, alkaen 150 m².
Rykmentintie 8 sijaitsee Tuusulan Hyrylässä, lähes 400 asunnon korttelikokonaisuudessa, mikä tarjoaa erinomaisen sijainnin lapsiperheiden keskellä. Autopaikkoja on mahdollista vuokrata viereisestä pysäköintihallista.
Kysy lisää numerosta 050 589 7224 / rony.korsstrom@bref.fi tai 044 723 4700 / info@bref.fi. Palvelumme on tilanhakijoille ilmainen.
Tämä toimisto sijaitsee vain 2 minuutin kävelymatkan päässä linja-autoasemalta. Keskimäärin yhtä suuri kuin normaali kahvilaa sijaitsee 500 metrin säteellä toimistosta. Ammattitaitoisen apteekkihenkilökunnan vastaanotto on vain 391 m päässä toimistosta. Lähin kuntosali löytyy 602 m päästä toimistosta. Pankkiautomaattien lukumäärä toimiston ympärillä on noin yhtä suuri kuin normaali.
Toimisto sijaitsee alueella Tuusula, joka on tunnettu yritysmyönteisestä infrastruktuuristaan. Tämän toimiston pinta-ala on 150.0m². Se luokitellaan keskikokoiseksi liiketilaksi tässä kaupungissa. Saat lisätietoja tästä toimistosta joka sijaitsee osoitteessa Rykmentintie 8, 04300 Tuusula suoraan vuokranantajalta täyttämällä lomakkeen verkkosivuillamme. Vuokranantaja vastaa mielellään kaikkiin kysymyksiisi. Täytä vain lomake verkkosivuillamme ja saat pyydetyt tiedot.
Järvi sijaitsee 577 m päässä toimistosta, ja se auttaa varmasti työntekijöitäsi lataamaan akkujaan. Toimisto sijaitsee lähellä puistoa todella rauhallisessa ja inspiroivassa sijainnissa. Joki virtaa 827 m etäisyydellä rakennuksesta, mikä lisää paikkakunnan yleistä vetovoimaa.

Etkö ole vielä löytänyt sopivaa tilaa?
Luo hakuvahti ja saat tietoja uusista vapaista vuokrakohteista.
Näyttää siltä, että suosikit-listasi Kohteeton täynnä. Poista vanhoja kohteita lisätäksesi uusia.
Näyttää siltä, että suosikit-listasi Kohteeton täynnä. Poista vanhoja kohteita lisätäksesi uusia.
Näyttää siltä, että suosikit-listasi Kohteeton täynnä. Poista vanhoja kohteita lisätäksesi uusia.
Näyttää siltä, että suosikit-listasi Kohteeton täynnä. Poista vanhoja kohteita lisätäksesi uusia.
Näyttää siltä, että suosikit-listasi Kohteeton täynnä. Poista vanhoja kohteita lisätäksesi uusia.
Näyttää siltä, että suosikit-listasi Kohteeton täynnä. Poista vanhoja kohteita lisätäksesi uusia.
Näyttää siltä, että suosikit-listasi Kohteeton täynnä. Poista vanhoja kohteita lisätäksesi uusia.
Näyttää siltä, että suosikit-listasi Kohteeton täynnä. Poista vanhoja kohteita lisätäksesi uusia.
Näyttää siltä, että suosikit-listasi Kohteeton täynnä. Poista vanhoja kohteita lisätäksesi uusia.
Näyttää siltä, että suosikit-listasi Kohteeton täynnä. Poista vanhoja kohteita lisätäksesi uusia.
Näyttää siltä, että suosikit-listasi Kohteeton täynnä. Poista vanhoja kohteita lisätäksesi uusia.
Näyttää siltä, että suosikit-listasi Kohteeton täynnä. Poista vanhoja kohteita lisätäksesi uusia.
Näyttää siltä, että suosikit-listasi Kohteeton täynnä. Poista vanhoja kohteita lisätäksesi uusia.