




100% ilmainen ja ilman sitoumuksia
100% ilmainen ja ilman sitoumuksia
Rykmentintie 8, Tuusula
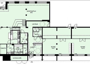
Päiväkoti-/toimistotilaa Tuusulan Hyrylässä.
Tämä 442 m² tila sijaitsee asuinkiinteistön katutasossa. Kahden talon väliin jäävä suojaisa sisäpiha toimii päiväkodin omana piha-alueena. Tila sisältää monitoimitilan/salin, kaksi ryhmätilaa, sosiaali- ja peseytymistilat, keittiön ja toimistohuoneen. Tila on mahdollista ottaa myös toimistokäyttöön. Kokonaisuus voidaan jakaa useammalle käyttäjälle, alkaen 150 m².
Rykmentintie 8 sijaitsee Tuusulan Hyrylässä, lähes 400 asunnon korttelikokonaisuudessa, mikä tarjoaa erinomaisen sijainnin lapsiperheiden keskellä. Autopaikkoja on mahdollista vuokrata viereisestä pysäköintihallista.
Kysy lisää numerosta 050 589 7224 / rony.korsstrom@bref.fi tai 044 723 4700 / info@bref.fi. Palvelumme on tilanhakijoille ilmainen.
Tämä toimisto sijaitsee vain 2 minuutin kävelymatkan päässä linja-autoasemalta. 13 kävelymatkan päässä toimistosta on kahvila, jossa on monipuolinen ruokalista. Kuntosali joka sijaitsee vain 10 minuutin päässä toimistosta, on asianmukaisesti varustettu urheilukeskus. Lähin kuntosali löytyy 602 m päästä toimistosta. Polkupyöräparkki on osa lähialueen infrastruktuuria.
Tämä toimitila on pinta-alaltaan 442.0 neliömetriä, joten se kuuluu Tuusula suurimpien vuokratilojen joukkoon. Tämän vuokrakohteen kokonaispinta-ala on 442.0 m², mikä on suurempi kuin kaupungin keskiarvo. Kun perustat yrityksen alueelle Tuusula, tulet ymmärtämään mitä yritysystävällinen infrastruktuuri tarkoittaa. Saat lisätietoja tästä toimistosta joka sijaitsee osoitteessa Rykmentintie 8, 04300 Tuusula suoraan vuokranantajalta täyttämällä lomakkeen verkkosivuillamme. Onko sinulla vielä kysyttävää tästä toimistotilan vuokratarjouksesta? Täytä lomake ja kysy suoraan vuokranantajalta.
Järvi sijaitsee 577 m päässä toimistosta, ja se auttaa varmasti työntekijöitäsi lataamaan akkujaan. Toimisto sijaitsee lähellä puistoa todella rauhallisessa ja inspiroivassa sijainnissa. Joki virtaa 827 m etäisyydellä rakennuksesta, mikä lisää paikkakunnan yleistä vetovoimaa.

Etkö ole vielä löytänyt sopivaa tilaa?
Luo hakuvahti ja saat tietoja uusista vapaista vuokrakohteista.
Näyttää siltä, että suosikit-listasi Kohteeton täynnä. Poista vanhoja kohteita lisätäksesi uusia.
Näyttää siltä, että suosikit-listasi Kohteeton täynnä. Poista vanhoja kohteita lisätäksesi uusia.
Näyttää siltä, että suosikit-listasi Kohteeton täynnä. Poista vanhoja kohteita lisätäksesi uusia.
Näyttää siltä, että suosikit-listasi Kohteeton täynnä. Poista vanhoja kohteita lisätäksesi uusia.
Näyttää siltä, että suosikit-listasi Kohteeton täynnä. Poista vanhoja kohteita lisätäksesi uusia.
Näyttää siltä, että suosikit-listasi Kohteeton täynnä. Poista vanhoja kohteita lisätäksesi uusia.
Näyttää siltä, että suosikit-listasi Kohteeton täynnä. Poista vanhoja kohteita lisätäksesi uusia.
Näyttää siltä, että suosikit-listasi Kohteeton täynnä. Poista vanhoja kohteita lisätäksesi uusia.
Näyttää siltä, että suosikit-listasi Kohteeton täynnä. Poista vanhoja kohteita lisätäksesi uusia.
Näyttää siltä, että suosikit-listasi Kohteeton täynnä. Poista vanhoja kohteita lisätäksesi uusia.