



100% ilmainen ja ilman sitoumuksia
100% ilmainen ja ilman sitoumuksia
Vesijärvenkatu 11, Lahti
Siistiä toimistotilaa Lahden keskustassa.
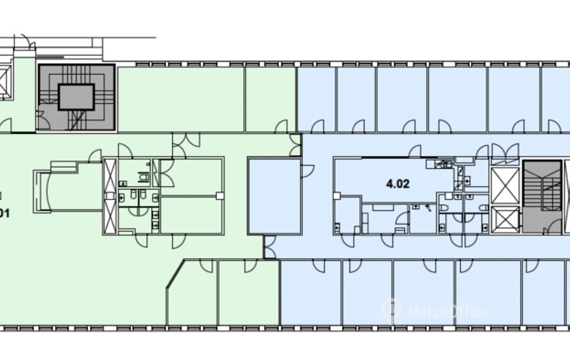
Tämä 840m2 toimistotila kattaa kiinteistön 4. kerroksen. Toimistossa on huoneita, avotilaa sekä omat keittiö- ja wc-tilat. Tilaa on mahdollista remontoida vuokralaisen tarpeiden mukaan. Kerros on mahdollista jakaa kahdelle käyttäjälle 397,5m2 ja 442,5m2 kokoisiin osiin.
Vesijärvenkatu 11 sijaitsee erinomaisella paikalla Lahden ydinkeskustassa. Lukuisat ravintolat ja monipuoliset palvelut sijaitsevat kivenheiton päässä. Pysäköintitilaa löytyy viereisestä kauppakeskus Trion parkkihallista.
Kysy lisää numerosta 044 723 4700 tai info@bref.fi. Palvelumme on tilanhakijoille ilmainen.
Toimistolle on 1 minuutin kävelymatka lähimmältä bussiasemalta. Viereinen ruokakauppa on varsin hyödyllinen etu kotimatkallasi. 282 m päässä toimistosta on laaja pysäköintialue.
Yrityksesi tuleva koti hyötyy sijainnistaan alueella Lahti, joka on tunnetusti suotuisa kaupallinen alue. Tämän toimiston pinta-ala on 397.5m². Se luokitellaan keskikokoiseksi liiketilaksi tässä kaupungissa. Tämä on sopiva vaihtoehto sekä pienten että keskisuurten, enintään 16 hengen tiimien sijoittamiseen. Saat lisätietoja tästä toimistosta joka sijaitsee osoitteessa Vesijärvenkatu 11, 15140 Lahti suoraan vuokranantajalta täyttämällä lomakkeen verkkosivuillamme. Haluatko tiedustella lisää toimistosta? Täytä lomake kysyäksesi kysymykset suoraan vuokranantajalta.
Huolehdi tiimisi mielenterveydestä vähentämällä heidän työmatkoihinsa kuluvaa aikaa, sillä toimisto sijaitsee lähellä maantietä. Toimiston lähellä sijaitseva puisto tuo mukanaan luonnollista rauhallisuutta kaupungin betoniviidakon keskelle. Tori sijaitsee lähellä toimistoa ja tuo elinvoimaa yrityksesi elämään. Koska teatteri on lähellä toimistoa, yrityksesi imago paranee huomattavasti, erityisesti vielä tuntemattomien asiakkaiden silmissä. Tee toimiston ja klubin 50 m läheisyydestä kilpailuetu, kun haluat palkata nuoria ja älykkäitä ammattilaisia.

Vesijärvenkatu
Lahti
Vesijärvenkatu, Lahti
Koko:
840 m²
Kysy hintaa:
N/A
Vesijärvenkatu
Lahti
Vesijärvenkatu, Lahti
Koko:
443 m²
Kysy hintaa:
N/A
Etkö ole vielä löytänyt sopivaa tilaa?
Luo hakuvahti ja saat tietoja uusista vapaista vuokrakohteista.
Näyttää siltä, että suosikit-listasi Kohteeton täynnä. Poista vanhoja kohteita lisätäksesi uusia.
Näyttää siltä, että suosikit-listasi Kohteeton täynnä. Poista vanhoja kohteita lisätäksesi uusia.
Näyttää siltä, että suosikit-listasi Kohteeton täynnä. Poista vanhoja kohteita lisätäksesi uusia.
Näyttää siltä, että suosikit-listasi Kohteeton täynnä. Poista vanhoja kohteita lisätäksesi uusia.
Näyttää siltä, että suosikit-listasi Kohteeton täynnä. Poista vanhoja kohteita lisätäksesi uusia.
Näyttää siltä, että suosikit-listasi Kohteeton täynnä. Poista vanhoja kohteita lisätäksesi uusia.
Näyttää siltä, että suosikit-listasi Kohteeton täynnä. Poista vanhoja kohteita lisätäksesi uusia.
Näyttää siltä, että suosikit-listasi Kohteeton täynnä. Poista vanhoja kohteita lisätäksesi uusia.
Näyttää siltä, että suosikit-listasi Kohteeton täynnä. Poista vanhoja kohteita lisätäksesi uusia.
Näyttää siltä, että suosikit-listasi Kohteeton täynnä. Poista vanhoja kohteita lisätäksesi uusia.
Näyttää siltä, että suosikit-listasi Kohteeton täynnä. Poista vanhoja kohteita lisätäksesi uusia.