




100% ilmainen ja ilman sitoumuksia
100% ilmainen ja ilman sitoumuksia
Askonkatu 9, Lahti
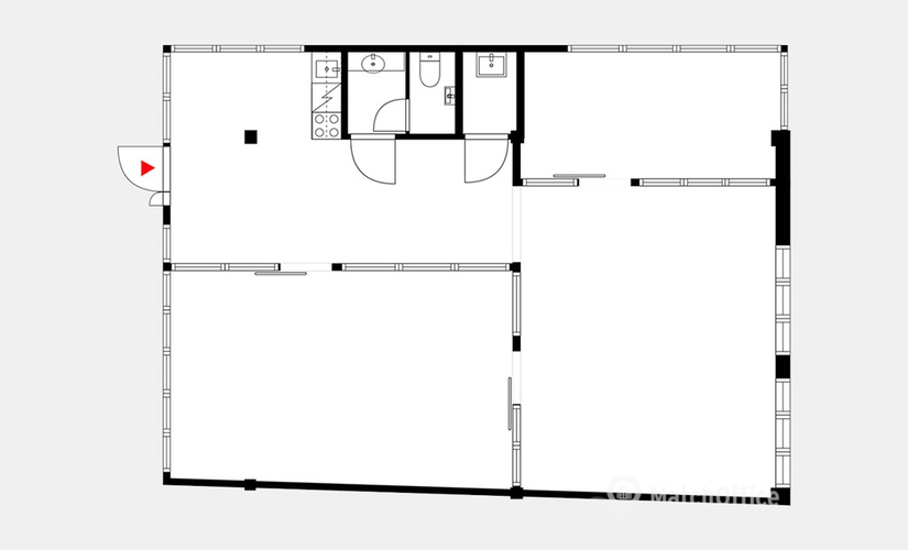
Toimistotilaa Askotalossa Lahdessa.
Kyseinen 112 m² toimistotila sijaitsee kiinteistön 4. kerroksessa. Toimistossa on toimistohuone, avotoimistotilaa sekä neuvottelutila, keittiö ja omat wc-tilat.
Askontalo sijaitsee Lahdessa, Askonalueella. Aikaisemmin teollisuustoiminnassa ollut rakennus on saneerattu toimistokiinteistöksi, jossa toimiii paljon mm. muotoilu- ja palveluyrityksiä sekä asiantuntijaorganisaatioita. Kiinteistö sijaitsee hyvällä paikalla, vain kävelymatkan päässä Matkakeskuksesta ja Lahden keskustasta. Kiinteistössä on lounasravintola ja vuokrattavia neuvottelutiloja.
Kysy lisää numerosta 044 723 4700 tai info@bref.fi. Palvelumme on tilanhakijoille ilmainen.
Työmatkat toimistolle junalla eivät ole ongelma, sillä lähin pysäkki on 9 minuutin päässä. Lähistöllä sijaitseva ravintola on yksi paikallisen vieraanvaraisuuden keskeisistä vetonauloista.. Viereinen ruokakauppa on varsin hyödyllinen etu kotimatkallasi. Kuntosali joka sijaitsee vain 9 minuutin päässä toimistosta, on asianmukaisesti varustettu urheilukeskus.
Tämä toimisto kattaa 112.0 neliömetriä, joten se on pienempi kuin keskimääräiset työtilat Lahti:ssä. Tämä on hyvä vaihtoehto start-upeille. Toimisto sijaitsee alueella Lahti, joka on tunnettu yritysmyönteisestä infrastruktuuristaan. Toimiston pinta-ala on 112.0 m². Saat lisätietoja tästä toimistosta joka sijaitsee osoitteessa Askonkatu 9, 15100 Lahti suoraan vuokranantajalta täyttämällä lomakkeen verkkosivuillamme. Onko sinulla vielä kysyttävää tästä toimistotilan vuokratarjouksesta? Täytä lomake ja kysy suoraan vuokranantajalta.
Toimisto sijaitsee lähellä puistoa todella rauhallisessa ja inspiroivassa sijainnissa. Huolehdi tiimisi mielenterveydestä vähentämällä heidän työmatkoihinsa kuluvaa aikaa, sillä toimisto sijaitsee lähellä maantietä. Toria lähellä sijaitseva toimisto on osa kaupungin tärkeintä kaupallista aluetta. Elokuvateatteri on 658 m päässä toimistosta. Koska teatteri on lähellä toimistoa, yrityksesi imago paranee huomattavasti, erityisesti vielä tuntemattomien asiakkaiden silmissä.

Etkö ole vielä löytänyt sopivaa tilaa?
Luo hakuvahti ja saat tietoja uusista vapaista vuokrakohteista.
Näyttää siltä, että suosikit-listasi Kohteeton täynnä. Poista vanhoja kohteita lisätäksesi uusia.
Näyttää siltä, että suosikit-listasi Kohteeton täynnä. Poista vanhoja kohteita lisätäksesi uusia.
Näyttää siltä, että suosikit-listasi Kohteeton täynnä. Poista vanhoja kohteita lisätäksesi uusia.
Näyttää siltä, että suosikit-listasi Kohteeton täynnä. Poista vanhoja kohteita lisätäksesi uusia.
Näyttää siltä, että suosikit-listasi Kohteeton täynnä. Poista vanhoja kohteita lisätäksesi uusia.
Näyttää siltä, että suosikit-listasi Kohteeton täynnä. Poista vanhoja kohteita lisätäksesi uusia.
Näyttää siltä, että suosikit-listasi Kohteeton täynnä. Poista vanhoja kohteita lisätäksesi uusia.
Näyttää siltä, että suosikit-listasi Kohteeton täynnä. Poista vanhoja kohteita lisätäksesi uusia.
Näyttää siltä, että suosikit-listasi Kohteeton täynnä. Poista vanhoja kohteita lisätäksesi uusia.
Näyttää siltä, että suosikit-listasi Kohteeton täynnä. Poista vanhoja kohteita lisätäksesi uusia.
Näyttää siltä, että suosikit-listasi Kohteeton täynnä. Poista vanhoja kohteita lisätäksesi uusia.
Näyttää siltä, että suosikit-listasi Kohteeton täynnä. Poista vanhoja kohteita lisätäksesi uusia.
Näyttää siltä, että suosikit-listasi Kohteeton täynnä. Poista vanhoja kohteita lisätäksesi uusia.
Näyttää siltä, että suosikit-listasi Kohteeton täynnä. Poista vanhoja kohteita lisätäksesi uusia.
Näyttää siltä, että suosikit-listasi Kohteeton täynnä. Poista vanhoja kohteita lisätäksesi uusia.