




100% ilmainen ja ilman sitoumuksia
100% ilmainen ja ilman sitoumuksia
Valimotie 21, Helsinki
Hyväkuntoista toimistotilaa Pitäjänmäellä, näkyvällä paikalla Vihdintien varrella.
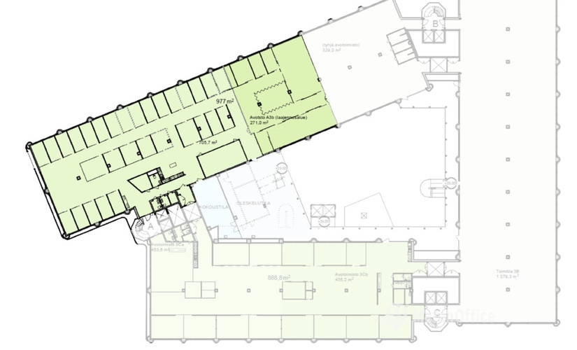
Tämä tehokas ja tilava 271 m² toimisto sijaitsee kiinteistön 3. kerroksessa, ja on osa 977m² tilakokonaisuutta.
Valimotie 21 on toimistokiinteistö Pitäjänmäellä, jonka tilat uusittu täysin ja ne valmistuivat loppuvuodesta 2018. Kohteessa on mm. kahvila- ja baristapalveluja sekä laadukasta lounasruokaa. Kiinteistössä on myös vuokrattavia neuvottelutiloja, aulapalvelu ja auditorio. Tämä kiinteistö on ehdottomasti yksi Pitäjänmäen alueen tyylikkäimmistä toimistokohteista.
Kiinteistön jokaisessa rappukäytävässä on tavarahissi, joten tavaran lastaus tiloihin on helppoa. Tiloja on mahdollista muunnella yrityksen tarpeiden mukaan. Parkkipaikkoja on sekä pihalla ja kellarissa.
Kysy lisää numerosta 044 723 4700 tai info@bref.fi. Palvelumme on tilanhakijoille ilmainen.
Toimistolle on 2 minuutin kävelymatka lähimmältä bussiasemalta. Lähistöllä sijaitseva ravintola on yksi paikallisen vieraanvaraisuuden keskeisistä vetonauloista.. Viereinen ruokakauppa on varsin hyödyllinen etu kotimatkallasi. Kuntosali joka sijaitsee vain 11 minuutin päässä toimistosta, on asianmukaisesti varustettu urheilukeskus. 24/7 pankkiautomaatti sijaitsee vain 593 m päässä toimistosta.
Basic
Tämän toimiston pinta-ala on 271.5m². Se luokitellaan keskikokoiseksi liiketilaksi tässä kaupungissa. Toimisto sijaitsee alueella Helsinki, joka on tunnettu yritysmyönteisestä infrastruktuuristaan. Saat lisätietoja tästä toimistosta joka sijaitsee osoitteessa Valimotie 21, 00380 Helsinki suoraan vuokranantajalta täyttämällä lomakkeen verkkosivuillamme. Onko sinulla vielä kysyttävää tästä toimistotilan vuokratarjouksesta? Täytä lomake ja kysy suoraan vuokranantajalta.
Tori on osa kaupungin keskeistä liiketoimintakeskusta, ja sijaitsee lähellä toimistoa. Toimiston lähellä sijaitseva puisto tuo mukanaan luonnollista rauhallisuutta kaupungin betoniviidakon keskelle. Toimisto sijaitsee viehättävällä paikalla, 377 m päässä joesta. Toimiston välittömässä läheisyydessä oleva liikenneväylä tuo lisäetuja kaupunkiliikenteeseen.

Etkö ole vielä löytänyt sopivaa tilaa?
Luo hakuvahti ja saat tietoja uusista vapaista vuokrakohteista.
Näyttää siltä, että suosikit-listasi Kohteeton täynnä. Poista vanhoja kohteita lisätäksesi uusia.
Näyttää siltä, että suosikit-listasi Kohteeton täynnä. Poista vanhoja kohteita lisätäksesi uusia.
Näyttää siltä, että suosikit-listasi Kohteeton täynnä. Poista vanhoja kohteita lisätäksesi uusia.
Näyttää siltä, että suosikit-listasi Kohteeton täynnä. Poista vanhoja kohteita lisätäksesi uusia.
Näyttää siltä, että suosikit-listasi Kohteeton täynnä. Poista vanhoja kohteita lisätäksesi uusia.
Näyttää siltä, että suosikit-listasi Kohteeton täynnä. Poista vanhoja kohteita lisätäksesi uusia.
Näyttää siltä, että suosikit-listasi Kohteeton täynnä. Poista vanhoja kohteita lisätäksesi uusia.
Näyttää siltä, että suosikit-listasi Kohteeton täynnä. Poista vanhoja kohteita lisätäksesi uusia.
Näyttää siltä, että suosikit-listasi Kohteeton täynnä. Poista vanhoja kohteita lisätäksesi uusia.
Näyttää siltä, että suosikit-listasi Kohteeton täynnä. Poista vanhoja kohteita lisätäksesi uusia.
Näyttää siltä, että suosikit-listasi Kohteeton täynnä. Poista vanhoja kohteita lisätäksesi uusia.