




100% ilmainen ja ilman sitoumuksia
100% ilmainen ja ilman sitoumuksia
Porkkalankatu 7, Helsinki
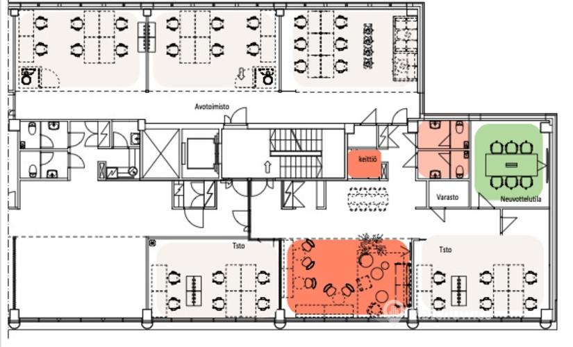
Vuokrattavana toimistotilaa Ruoholahdessa.
Tämä 310m² toimisto sijaitsee kiinteistön 2. kerroksessa. Tilassa on avotilaa, muutama huone sekä omat keittiö- ja wc-tilat.
Porkkalankatu 7 on toimisto- ja liikekiinteistö, joka sijaitsee hyvällä paikalla Ruoholahdessa.
Sen tilat on joustavasti muokattavissa uuden vuokralaisen tarpeita vastaavaksi.
Se on helposti saavutettavissa omalla autolla ja julkisella liikenteellä. Sen läheisyydessä on myös Ruoholahden kauppakeskuksen monipuoliset palvelut.
Kysy lisää numerosta 044 723 4700 tai info@bref.fi. Palvelumme on tilanhakijoille ilmainen.
Ekologista vastuullisuutta tavoitteleva sähköautojen latausasema on vain 526 m päässä toimistosta. Lähistöllä sijaitseva ravintola on yksi paikallisen vieraanvaraisuuden keskeisistä vetonauloista.. Polkupyöräparkki on osa lähialueen infrastruktuuria. Lähin kuntosali löytyy 127 m päästä toimistosta.
Basic
Toimisto sijaitsee alueella Helsinki, joka on tunnettu yritysmyönteisestä infrastruktuuristaan. Tämän toimiston pinta-ala on 310.0m². Se luokitellaan keskikokoiseksi liiketilaksi tässä kaupungissa. Saat lisätietoja tästä toimistosta joka sijaitsee osoitteessa Porkkalankatu 7, 00180 Helsinki suoraan vuokranantajalta täyttämällä lomakkeen verkkosivuillamme. Täytä lomake saadaksesi lisätietoja toimistosta. Kaikki tarvitsemasi tiedot saat suoraan vuokranantajalta.
Toimisto sijaitsee lähellä puistoa todella rauhallisessa ja inspiroivassa sijainnissa. Toimisto sijaitsee viehättävällä paikalla, 176 m päässä joesta. Torin läheisyydessä sijaitseva toimisto on kaupungin tärkeimpien reittien risteyksessä. Koska teatteri on lähellä toimistoa, yrityksesi imago paranee huomattavasti, erityisesti vielä tuntemattomien asiakkaiden silmissä.

Etkö ole vielä löytänyt sopivaa tilaa?
Luo hakuvahti ja saat tietoja uusista vapaista vuokrakohteista.
Näyttää siltä, että suosikit-listasi Kohteeton täynnä. Poista vanhoja kohteita lisätäksesi uusia.
Näyttää siltä, että suosikit-listasi Kohteeton täynnä. Poista vanhoja kohteita lisätäksesi uusia.
Näyttää siltä, että suosikit-listasi Kohteeton täynnä. Poista vanhoja kohteita lisätäksesi uusia.
Näyttää siltä, että suosikit-listasi Kohteeton täynnä. Poista vanhoja kohteita lisätäksesi uusia.
Näyttää siltä, että suosikit-listasi Kohteeton täynnä. Poista vanhoja kohteita lisätäksesi uusia.
Näyttää siltä, että suosikit-listasi Kohteeton täynnä. Poista vanhoja kohteita lisätäksesi uusia.
Näyttää siltä, että suosikit-listasi Kohteeton täynnä. Poista vanhoja kohteita lisätäksesi uusia.
Näyttää siltä, että suosikit-listasi Kohteeton täynnä. Poista vanhoja kohteita lisätäksesi uusia.
Näyttää siltä, että suosikit-listasi Kohteeton täynnä. Poista vanhoja kohteita lisätäksesi uusia.
Näyttää siltä, että suosikit-listasi Kohteeton täynnä. Poista vanhoja kohteita lisätäksesi uusia.
Näyttää siltä, että suosikit-listasi Kohteeton täynnä. Poista vanhoja kohteita lisätäksesi uusia.
Näyttää siltä, että suosikit-listasi Kohteeton täynnä. Poista vanhoja kohteita lisätäksesi uusia.