




100% ilmainen ja ilman sitoumuksia
100% ilmainen ja ilman sitoumuksia
Porkkalankatu 7, Helsinki
Vuokrattavana toimistotilaa Ruoholahdessa.
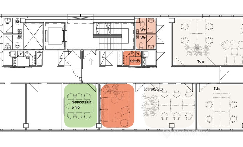
Tämä 167,5 m² toimisto sijaitsee kiinteistön 7. kerroksessa. Toimistossa on huoneita, avotilaa sekä omat keittiö- ja wc-tilat. Kohteessa on myös yhteiskäyttöinen terassi vuokralaisille.
Porkkalankatu 7 on toimisto- ja liikekiinteistö, joka sijaitsee hyvällä paikalla Ruoholahdessa.
Sen tilat on joustavasti muokattavissa uuden vuokralaisen tarpeita vastaavaksi. Kiinteistö on helposti saavutettavissa omalla autolla ja julkisella liikenteellä. Sen läheisyydessä on myös Ruoholahden kauppakeskuksen monipuoliset palvelut.
Kysy lisää numerosta 044 723 4700 tai info@bref.fi. Palvelumme on tilanhakijoille ilmainen.
Sinun on kuljettava 407 m metriä päästäksesi lähimmälle metroasemalle. Ekologista vastuullisuutta tavoitteleva sähköautojen latausasema on vain 514 m päässä toimistosta. Herkullisia välipaloja ja juomia tarjoillaan pubissa, joka sijaitsee 6 minuutin päässä toimistosta. Viereinen ruokakauppa on varsin hyödyllinen etu kotimatkallasi. Lähin kuntosali löytyy 120 m päästä toimistosta.
Basic
Tämän toimiston pinta-ala on 167.5m². Se luokitellaan keskikokoiseksi liiketilaksi tässä kaupungissa. Yrityksesi tuleva koti hyötyy sijainnistaan alueella Helsinki, joka on tunnetusti suotuisa kaupallinen alue. Saat lisätietoja tästä toimistosta joka sijaitsee osoitteessa Porkkalankatu 7, 00180 Helsinki suoraan vuokranantajalta täyttämällä lomakkeen verkkosivuillamme. Haluatko tiedustella lisää toimistosta? Täytä lomake kysyäksesi kysymykset suoraan vuokranantajalta.
Toimiston lähellä sijaitseva puisto tuo mukanaan luonnollista rauhallisuutta kaupungin betoniviidakon keskelle. Joki virtaa 184 m etäisyydellä rakennuksesta, mikä lisää paikkakunnan yleistä vetovoimaa. Tori on osa kaupungin keskeistä liiketoimintakeskusta, ja sijaitsee lähellä toimistoa. Koska teatteri on lähellä toimistoa, yrityksesi imago paranee huomattavasti, erityisesti vielä tuntemattomien asiakkaiden silmissä.

Etkö ole vielä löytänyt sopivaa tilaa?
Luo hakuvahti ja saat tietoja uusista vapaista vuokrakohteista.
Näyttää siltä, että suosikit-listasi Kohteeton täynnä. Poista vanhoja kohteita lisätäksesi uusia.
Näyttää siltä, että suosikit-listasi Kohteeton täynnä. Poista vanhoja kohteita lisätäksesi uusia.
Näyttää siltä, että suosikit-listasi Kohteeton täynnä. Poista vanhoja kohteita lisätäksesi uusia.
Näyttää siltä, että suosikit-listasi Kohteeton täynnä. Poista vanhoja kohteita lisätäksesi uusia.
Näyttää siltä, että suosikit-listasi Kohteeton täynnä. Poista vanhoja kohteita lisätäksesi uusia.
Näyttää siltä, että suosikit-listasi Kohteeton täynnä. Poista vanhoja kohteita lisätäksesi uusia.
Näyttää siltä, että suosikit-listasi Kohteeton täynnä. Poista vanhoja kohteita lisätäksesi uusia.
Näyttää siltä, että suosikit-listasi Kohteeton täynnä. Poista vanhoja kohteita lisätäksesi uusia.
Näyttää siltä, että suosikit-listasi Kohteeton täynnä. Poista vanhoja kohteita lisätäksesi uusia.
Näyttää siltä, että suosikit-listasi Kohteeton täynnä. Poista vanhoja kohteita lisätäksesi uusia.
Näyttää siltä, että suosikit-listasi Kohteeton täynnä. Poista vanhoja kohteita lisätäksesi uusia.
Näyttää siltä, että suosikit-listasi Kohteeton täynnä. Poista vanhoja kohteita lisätäksesi uusia.
Näyttää siltä, että suosikit-listasi Kohteeton täynnä. Poista vanhoja kohteita lisätäksesi uusia.
Näyttää siltä, että suosikit-listasi Kohteeton täynnä. Poista vanhoja kohteita lisätäksesi uusia.