




100% ilmainen ja ilman sitoumuksia
100% ilmainen ja ilman sitoumuksia
Malminkaari 5, Helsinki
Vuokrattavana toimisto-/liiketilaa Helsingin Malmilta.
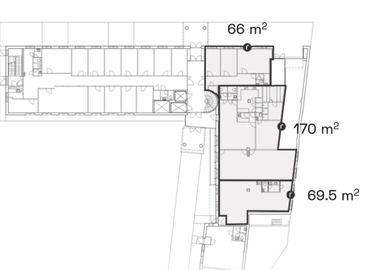
Tämä toimistotila on kooltaan 305,5 m², ja se sijaitsee kiinteistön katutasossa. Toimistossa on huoneita, avotilaa sekä omat keittiö- ja wc-tilat. Tila soveltuu myös liiketilakäyttöön. Kokonaisuus on mahdollista jakaa 66 m², 69,5 m² ja 170 m² kokoisiin osiin.
Malminkaari 5 on viisikerroksinen toimitilakiinteistö, jonka tilat soveltuvat monenlaisiin eri toimintatarkoituksiin. Se sijaitsee kävelyetäisyydellä Malmin juna-asemalta ja bussipysäkit löytyvät heti kiinteistön vierestä.
Kysy lisää numerosta 044 723 4700 tai info@bref.fi. Palvelumme on tilanhakijoille ilmainen.
Toimistolle on 1 minuutin kävelymatka lähimmältä bussiasemalta. Viereinen ruokakauppa on varsin hyödyllinen etu kotimatkallasi. Ammattitaitoisen apteekkihenkilökunnan vastaanotto on vain 331 m päässä toimistosta. Polkupyöräparkki on osa lähialueen infrastruktuuria.
Vuokrattavat tilat vaihtelevat 69.5 ja 69.5 neliömetrin välillä. Voit vuokrata pienemmän työtilan ja laajentaa sitä yrityksesi kasvaessa. Kun perustat yrityksen alueelle Helsinki, tulet ymmärtämään mitä yritysystävällinen infrastruktuuri tarkoittaa. Siitä huolimatta, että tämä 69.5m² vuokratila on pienempi kuin useimmat kaupungin toimistot, se on erinomainen vaihtoehto nuorille yrityksille. Saat lisätietoja tästä toimistosta joka sijaitsee osoitteessa Malminkaari 5, 00700 Helsinki suoraan vuokranantajalta täyttämällä lomakkeen verkkosivuillamme. Onko sinulla vielä kysyttävää tästä toimistotilan vuokratarjouksesta? Täytä lomake ja kysy suoraan vuokranantajalta.
Puisto sijaitsee lähellä toimistoa. Se on täydellinen paikka keskustella ideoista ja projekteista. Tori on osa kaupungin keskeistä liiketoimintakeskusta, ja sijaitsee lähellä toimistoa. Toimisto sijaitsee viehättävällä paikalla, 378 m päässä joesta. Toinen mielenkiintoinen seikka tässä paikassa on se, että toimisto sijaitsee 321 m päässä yökerhosta.

Etkö ole vielä löytänyt sopivaa tilaa?
Luo hakuvahti ja saat tietoja uusista vapaista vuokrakohteista.
Näyttää siltä, että suosikit-listasi Kohteeton täynnä. Poista vanhoja kohteita lisätäksesi uusia.
Näyttää siltä, että suosikit-listasi Kohteeton täynnä. Poista vanhoja kohteita lisätäksesi uusia.
Näyttää siltä, että suosikit-listasi Kohteeton täynnä. Poista vanhoja kohteita lisätäksesi uusia.
Näyttää siltä, että suosikit-listasi Kohteeton täynnä. Poista vanhoja kohteita lisätäksesi uusia.
Näyttää siltä, että suosikit-listasi Kohteeton täynnä. Poista vanhoja kohteita lisätäksesi uusia.
Näyttää siltä, että suosikit-listasi Kohteeton täynnä. Poista vanhoja kohteita lisätäksesi uusia.
Näyttää siltä, että suosikit-listasi Kohteeton täynnä. Poista vanhoja kohteita lisätäksesi uusia.
Näyttää siltä, että suosikit-listasi Kohteeton täynnä. Poista vanhoja kohteita lisätäksesi uusia.
Näyttää siltä, että suosikit-listasi Kohteeton täynnä. Poista vanhoja kohteita lisätäksesi uusia.
Näyttää siltä, että suosikit-listasi Kohteeton täynnä. Poista vanhoja kohteita lisätäksesi uusia.
Näyttää siltä, että suosikit-listasi Kohteeton täynnä. Poista vanhoja kohteita lisätäksesi uusia.
Näyttää siltä, että suosikit-listasi Kohteeton täynnä. Poista vanhoja kohteita lisätäksesi uusia.
Näyttää siltä, että suosikit-listasi Kohteeton täynnä. Poista vanhoja kohteita lisätäksesi uusia.
Näyttää siltä, että suosikit-listasi Kohteeton täynnä. Poista vanhoja kohteita lisätäksesi uusia.