




100% ilmainen ja ilman sitoumuksia
100% ilmainen ja ilman sitoumuksia
Itälahdenkatu 23, Helsinki
Toimistotilaa Helsingin Lauttasaaressa.
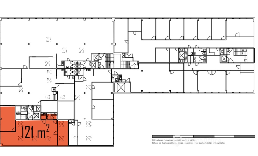
Tämä avara 121 m² toimisto-/showroomtila sijaitsee kiinteistön 5. kerroksessa. Tilassa on avotilan lisäksi kaksi huonetta, joita voi käyttää toimiston tai varastona. Lisäksi tilaan kuuluvat omat keittiö- ja wc-tilat. Kattoikkunat tuovat tilaan valoa.
Itälahdenkatu 23 on 1970- luvulla valmistunut toimistorakennus, jossa on kokonaispinta-alaa 7000 m2. Kiinteistö sijaitsee hyvin kulkuyhteyksien varrella, noin kilometrin päässä Lauttasaaren metroasemasta. Rakennuksella on omia parkkipaikkoja sekä lastauslaituri. Alueella toimii useita lounasravintoloita. Kiinteistössä on viisi kerrosta, joihin kaikkiin kulkee henkilöhissit ja tavarahissi kellarista neljänteen kerrokseen asti.
Kysy lisää numerosta 044 723 4700 tai info@bref.fi. Palvelumme on tilanhakijoille ilmainen.
Toimistolle on 2 minuutin kävelymatka lähimmältä bussiasemalta. Herkullisia välipaloja ja juomia tarjoillaan pubissa, joka sijaitsee 4 minuutin päässä toimistosta. Viereinen ruokakauppa on varsin hyödyllinen etu kotimatkallasi. Lähin kuntosali löytyy 211 m päästä toimistosta. Ammattitaitoisen apteekkihenkilökunnan vastaanotto on vain 203 m päässä toimistosta.
Basic
Tämän toimiston pinta-ala on 121.0m². Se luokitellaan keskikokoiseksi liiketilaksi tässä kaupungissa. Yrityksesi tuleva koti hyötyy sijainnistaan alueella Helsinki, joka on tunnetusti suotuisa kaupallinen alue. Saat lisätietoja tästä toimistosta joka sijaitsee osoitteessa Itälahdenkatu 23, 00210 Helsinki suoraan vuokranantajalta täyttämällä lomakkeen verkkosivuillamme. Haluatko tiedustella lisää toimistosta? Täytä lomake kysyäksesi kysymykset suoraan vuokranantajalta.
Puisto sijaitsee lähellä toimistoa. Se on täydellinen paikka keskustella ideoista ja projekteista. Joki virtaa vain 277 m päässä toimistosta ja se tekee kohteesta epäilemättä poikkeuksellisen liikekiinteistön.

Etkö ole vielä löytänyt sopivaa tilaa?
Luo hakuvahti ja saat tietoja uusista vapaista vuokrakohteista.
Näyttää siltä, että suosikit-listasi Kohteeton täynnä. Poista vanhoja kohteita lisätäksesi uusia.
Näyttää siltä, että suosikit-listasi Kohteeton täynnä. Poista vanhoja kohteita lisätäksesi uusia.
Näyttää siltä, että suosikit-listasi Kohteeton täynnä. Poista vanhoja kohteita lisätäksesi uusia.
Näyttää siltä, että suosikit-listasi Kohteeton täynnä. Poista vanhoja kohteita lisätäksesi uusia.
Näyttää siltä, että suosikit-listasi Kohteeton täynnä. Poista vanhoja kohteita lisätäksesi uusia.
Näyttää siltä, että suosikit-listasi Kohteeton täynnä. Poista vanhoja kohteita lisätäksesi uusia.
Näyttää siltä, että suosikit-listasi Kohteeton täynnä. Poista vanhoja kohteita lisätäksesi uusia.
Näyttää siltä, että suosikit-listasi Kohteeton täynnä. Poista vanhoja kohteita lisätäksesi uusia.
Näyttää siltä, että suosikit-listasi Kohteeton täynnä. Poista vanhoja kohteita lisätäksesi uusia.
Näyttää siltä, että suosikit-listasi Kohteeton täynnä. Poista vanhoja kohteita lisätäksesi uusia.
Näyttää siltä, että suosikit-listasi Kohteeton täynnä. Poista vanhoja kohteita lisätäksesi uusia.
Näyttää siltä, että suosikit-listasi Kohteeton täynnä. Poista vanhoja kohteita lisätäksesi uusia.
Näyttää siltä, että suosikit-listasi Kohteeton täynnä. Poista vanhoja kohteita lisätäksesi uusia.