



100% ilmainen ja ilman sitoumuksia
100% ilmainen ja ilman sitoumuksia
Itälahdenkatu 23, Helsinki
Toimistotilaa Helsingin Lauttasaaressa.
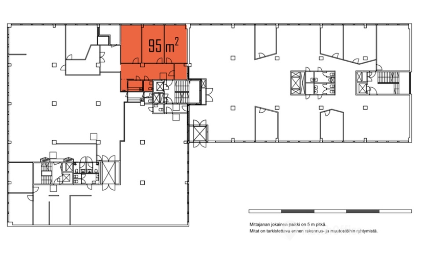
Tämä 95 m² toimistotila sijaitsee kiinteistön 2. kerroksessa. Toimistossa on kolme tilavaa huonetta, pieni varasto, keittokomero ja wc.
Itälahdenkatu 23 on 1970- luvulla valmistunut toimistorakennus, jossa on kokonaispinta-alaa 7000 m2. Kiinteistö sijaitsee hyvin kulkuyhteyksien varrella, noin kilometrin päässä Lauttasaaren metroasemasta. Rakennuksella on omia parkkipaikkoja sekä lastauslaituri. Alueella toimii useita lounasravintoloita. Kiinteistössä on viisi kerrosta, joihin kaikkiin kulkee henkilöhissit ja tavarahissi kellarista neljänteen kerrokseen asti.
Kysy lisää numerosta 044 723 4700 tai info@bref.fi. Palvelumme on tilanhakijoille ilmainen.
Tämä toimisto sijaitsee vain 2 minuutin kävelymatkan päässä linja-autoasemalta. Lähistöllä sijaitseva ravintola on yksi paikallisen vieraanvaraisuuden keskeisistä vetonauloista.. Viereinen ruokakauppa on varsin hyödyllinen etu kotimatkallasi. Polkupyöräparkki on osa lähialueen infrastruktuuria.
Basic
Vuokrattavat tilat vaihtelevat 95.0 ja 95.0 neliömetrin välillä. Voit vuokrata pienemmän työtilan ja laajentaa sitä yrityksesi kasvaessa. Tämä toimisto kattaa 95.0 neliömetriä, joten se on pienempi kuin keskimääräiset työtilat Helsinki:ssä. Tämä on hyvä vaihtoehto start-upeille. Helsinki on alue, jonne yritykset tulevat kokeakseen sen kehittyneen infrastruktuurin edut. Siitä huolimatta, että tämä 95.0m² vuokratila on pienempi kuin useimmat kaupungin toimistot, se on erinomainen vaihtoehto nuorille yrityksille. Vuokranantaja vastaa mielellään kaikkiin kysymyksiisi. Täytä vain lomake verkkosivuillamme ja saat pyydetyt tiedot.
Puisto sijaitsee lähellä toimistoa. Se on täydellinen paikka keskustella ideoista ja projekteista. Joki virtaa vain 277 m päässä toimistosta ja se tekee kohteesta epäilemättä poikkeuksellisen liikekiinteistön.

Etkö ole vielä löytänyt sopivaa tilaa?
Luo hakuvahti ja saat tietoja uusista vapaista vuokrakohteista.
Näyttää siltä, että suosikit-listasi Kohteeton täynnä. Poista vanhoja kohteita lisätäksesi uusia.
Näyttää siltä, että suosikit-listasi Kohteeton täynnä. Poista vanhoja kohteita lisätäksesi uusia.
Näyttää siltä, että suosikit-listasi Kohteeton täynnä. Poista vanhoja kohteita lisätäksesi uusia.
Näyttää siltä, että suosikit-listasi Kohteeton täynnä. Poista vanhoja kohteita lisätäksesi uusia.
Näyttää siltä, että suosikit-listasi Kohteeton täynnä. Poista vanhoja kohteita lisätäksesi uusia.
Näyttää siltä, että suosikit-listasi Kohteeton täynnä. Poista vanhoja kohteita lisätäksesi uusia.
Näyttää siltä, että suosikit-listasi Kohteeton täynnä. Poista vanhoja kohteita lisätäksesi uusia.
Näyttää siltä, että suosikit-listasi Kohteeton täynnä. Poista vanhoja kohteita lisätäksesi uusia.
Näyttää siltä, että suosikit-listasi Kohteeton täynnä. Poista vanhoja kohteita lisätäksesi uusia.
Näyttää siltä, että suosikit-listasi Kohteeton täynnä. Poista vanhoja kohteita lisätäksesi uusia.
Näyttää siltä, että suosikit-listasi Kohteeton täynnä. Poista vanhoja kohteita lisätäksesi uusia.
Näyttää siltä, että suosikit-listasi Kohteeton täynnä. Poista vanhoja kohteita lisätäksesi uusia.
Näyttää siltä, että suosikit-listasi Kohteeton täynnä. Poista vanhoja kohteita lisätäksesi uusia.
Näyttää siltä, että suosikit-listasi Kohteeton täynnä. Poista vanhoja kohteita lisätäksesi uusia.
Näyttää siltä, että suosikit-listasi Kohteeton täynnä. Poista vanhoja kohteita lisätäksesi uusia.
Näyttää siltä, että suosikit-listasi Kohteeton täynnä. Poista vanhoja kohteita lisätäksesi uusia.
Näyttää siltä, että suosikit-listasi Kohteeton täynnä. Poista vanhoja kohteita lisätäksesi uusia.