




Hiomotie 8, Helsinki
Toimistotilaa hyvällä sijainnilla Pitäjänmäellä.
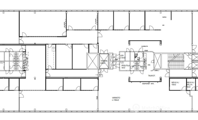
Vuokrattavana 1184m2 toimistotila, joka kattaa kiinteistön 3. kerroksen. Kerros koostuu avotilasta sekä huoneista ja lisäksi kerroksessa on omat sosiaalitilat. Toimistossa on korkea huonekorkeus. Tilaan on lastauslaituriyhteys. Tilaa on mahdollista muokata yrityksen tarpeiden mukaan. Kuvat ovat yleiskuvia kampuksen tiloista.
Hiomotie 8 on osa JUJU-yrityskampusta, joka sijaitsee voimakkaasti kehittyvällä Pitäjänmäen alueella. Kampus tarjoaa yrityksille monipuoliset liiketoimintaa tukevat palvelut sekä tyylikkäät toimitilat. JUJU koostuu viidestä kiinteistöstä, jotka muodostavat yhteisöllisen kampusalueen, jonka palveluita kaikki vuokralaiset pääsevät hyödyntämään tarpeen mukaan. Kiinteistössä on kaksi ravintolaa, kokouskeskus ja auditorio, kuntosali sekä sauna- ja edustustiloja. Vuokralaisille on tarjolla mm. catering-palvelut, hyvinvointipalveluja, aula- ja postituspalvelut, pesulapalvelu, autonpesu- ja renkaanvaihtopalvelu sekä siivouspalvelu. Kiinteistössä on runsaasti pysäköintitilaa sekä sähköautojen ja -pyörien latauspaikkoja.
Kiinteistö noin 500 metrin päässä Pitäjänmäen sekä Valimon rautatieasemilta. Valmistuvan raidejokerin kaksi asemaa tulevat sijaitsemaan n. 100 metrin etäisyydellä kiinteistöstä. Helsingin keskustaan on noin 7 kilometriä ja Espoon Leppävaaran monipuolisten palveluiden äärelle noin 5 kilometriä. Alueella on hyvät peruspalvelut, kuten päivittäistavarakauppa, lounasravintoloita ja Taitotalon kokous- ja kongressikeskus.
Kysy lisää numerosta 044 723 4700 tai info@bref.fi. Palvelumme on tilanhakijoille ilmainen.
Työmatkat toimistolle junalla eivät ole ongelma, sillä lähin pysäkki on 15 minuutin päässä. 71 m päässä toimistosta on laaja pysäköintialue. Lähistöllä sijaitseva ravintola on yksi paikallisen vieraanvaraisuuden keskeisistä vetonauloista.. Lähin kuntosali löytyy 368 m päästä toimistosta.
Puisto sijaitsee lähellä toimistoa. Se on täydellinen paikka keskustella ideoista ja projekteista. Torin läheisyydessä sijaitseva toimistorakennus täydentää yhden kaupungin kauneimman kaupunginosan arkkitehtuurin kokonaisuutta. Joki virtaa vain 635 m päässä toimistosta ja se tekee kohteesta epäilemättä poikkeuksellisen liikekiinteistön.

Etkö ole vielä löytänyt sopivaa tilaa?
Luo hakuvahti ja saat tietoja uusista vapaista vuokrakohteista.
Näyttää siltä, että suosikit-listasi Kohteeton täynnä. Poista vanhoja kohteita lisätäksesi uusia.
Näyttää siltä, että suosikit-listasi Kohteeton täynnä. Poista vanhoja kohteita lisätäksesi uusia.
Näyttää siltä, että suosikit-listasi Kohteeton täynnä. Poista vanhoja kohteita lisätäksesi uusia.
Näyttää siltä, että suosikit-listasi Kohteeton täynnä. Poista vanhoja kohteita lisätäksesi uusia.
Näyttää siltä, että suosikit-listasi Kohteeton täynnä. Poista vanhoja kohteita lisätäksesi uusia.
Näyttää siltä, että suosikit-listasi Kohteeton täynnä. Poista vanhoja kohteita lisätäksesi uusia.
Näyttää siltä, että suosikit-listasi Kohteeton täynnä. Poista vanhoja kohteita lisätäksesi uusia.
Näyttää siltä, että suosikit-listasi Kohteeton täynnä. Poista vanhoja kohteita lisätäksesi uusia.