



Sierakiventie 8-10, Espoo
Toimistotilaa Espoon Kauklahdessa.
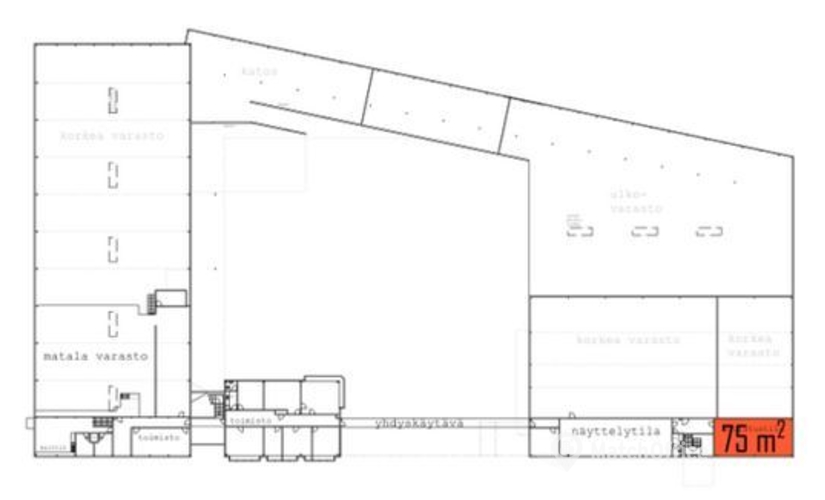
Kyseinen siisti 75m2 avotila soveltuu erinomaisesti koulutuskäyttöön tai toimistoksi. Tila sijaitsee kiinteistön 2. kerroksessa. Se on vuokrattavissa myös kalustettuna. Wc-tilat ovat yhteiskäytössä.
Espoon Kauklahdessa hyvien kulkuyhteyksien varrella sijaitseva varasto- ja toimistokiinteistö on valmistunut 1980 -luvulla ja sen kokonaispinta-ala on 3715m2. Kiinteistössä on varasto- ja toimistotilojen lisäksi vuokrattavana kokous- ja koulutustiloja, tarvittaessa myös kalustettuina. Rakennuksessa on myös sauna- ja virkistystilat sekä majoitustilaa.
Kysy lisää numerosta 044 723 4700 tai info@bref.fi. Palvelumme on tilanhakijoille ilmainen.
Etkö ole vielä löytänyt sopivaa tilaa?
Luo hakuvahti ja saat tietoja uusista vapaista vuokrakohteista.
Näyttää siltä, että suosikit-listasi Kohteeton täynnä. Poista vanhoja kohteita lisätäksesi uusia.
Näyttää siltä, että suosikit-listasi Kohteeton täynnä. Poista vanhoja kohteita lisätäksesi uusia.
Näyttää siltä, että suosikit-listasi Kohteeton täynnä. Poista vanhoja kohteita lisätäksesi uusia.
Näyttää siltä, että suosikit-listasi Kohteeton täynnä. Poista vanhoja kohteita lisätäksesi uusia.
Näyttää siltä, että suosikit-listasi Kohteeton täynnä. Poista vanhoja kohteita lisätäksesi uusia.
Näyttää siltä, että suosikit-listasi Kohteeton täynnä. Poista vanhoja kohteita lisätäksesi uusia.
Näyttää siltä, että suosikit-listasi Kohteeton täynnä. Poista vanhoja kohteita lisätäksesi uusia.