




100% ilmainen ja ilman sitoumuksia
100% ilmainen ja ilman sitoumuksia
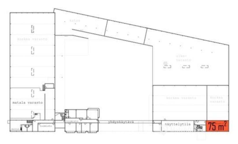
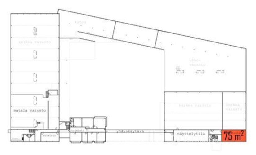
Sierakiventie 8-10, Espoo
Toimistotilaa Espoon Kauklahdessa.
Kyseinen siisti 75 m² avotila soveltuu erinomaisesti koulutuskäyttöön tai toimistoksi. Tila sijaitsee kiinteistön 2. kerroksessa. Wc-tilat ovat käytävällä.
Espoon Kauklahdessa hyvien kulkuyhteyksien varrella sijaitseva varasto- ja toimistokiinteistö on valmistunut 1980 -luvulla ja sen kokonaispinta-ala on 3715m2. Kiinteistössä on varasto- ja toimistotilojen lisäksi vuokrattavana kokous- ja koulutustiloja, tarvittaessa myös kalustettuina. Rakennuksessa on myös sauna- ja virkistystilat sekä majoitustilaa.
Kysy lisää numerosta 044 723 4700 tai info@bref.fi. Palvelumme on tilanhakijoille ilmainen.
Tämän toimiston pinta-ala on 75.0m². Se luokitellaan keskikokoiseksi liiketilaksi tässä kaupungissa. Toimisto sijaitsee alueella Espoo, joka on tunnettu yritysmyönteisestä infrastruktuuristaan. Saat lisätietoja tästä toimistosta joka sijaitsee osoitteessa Sierakiventie 8-10, 02780 Espoo suoraan vuokranantajalta täyttämällä lomakkeen verkkosivuillamme. Täytä lomake ja kysy toimistoa koskevat kysymykset suoraan kiinteistön omistajalta.
Etkö ole vielä löytänyt sopivaa tilaa?
Luo hakuvahti ja saat tietoja uusista vapaista vuokrakohteista.
Näyttää siltä, että suosikit-listasi Kohteeton täynnä. Poista vanhoja kohteita lisätäksesi uusia.
Näyttää siltä, että suosikit-listasi Kohteeton täynnä. Poista vanhoja kohteita lisätäksesi uusia.
Näyttää siltä, että suosikit-listasi Kohteeton täynnä. Poista vanhoja kohteita lisätäksesi uusia.