




100% ilmainen ja ilman sitoumuksia
100% ilmainen ja ilman sitoumuksia
Linnoitustie 6 , Espoo
Hyväkuntoista toimistotilaa Säterinportissa, Espoon Leppävaarassa.
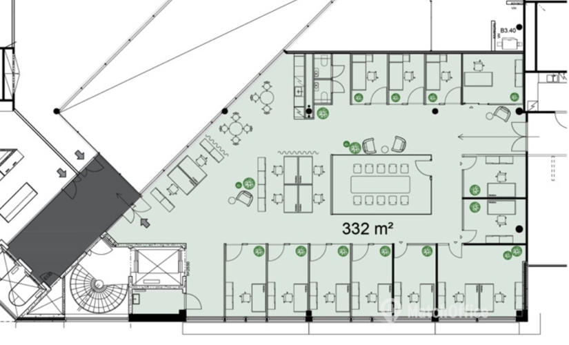
Tämä tehokas ja viihtyisä 332 m² toimistotila sijaitsee kiinteistön 3. kerroksessa. Toimisto remontoidaan vuokralaisen toiveiden mukaan. Kuvat ovat yleiskuvia kiinteistön tiloista.
Kiinteistön tilat ovat erittäin muuntojoustavia ja ne tarjoavat erinomaisen mahdollisuuden toteuttaa monitilatoimistoja ja tilatehokkaita kokonaisuuksia. Tilat remontoidaan uusille vuokralaisille. Rakennuksista löytyy valmiiksi tiloja esimerkiksi tutkimus- ja testaustarkoituksiin.
Säterinportti koostuu neljästä rakennuksesta, joissa on vuokrattavaa tilaa yli 34 000 m2. Kiinteistöllä on erinomainen sijainti Turunväylän ja Kehä I:n läheisyydessä, loistavien julkisten liikenneyhteyksien varrella. Tarjolla on erittäin kattava palveluvalikoima, jossa työntekijöiden viihtyvyys ja hyvinvointi on huomioitu. Säterinportin Mukavuusalue tarjoaa työntekijöille sekä monipuoliset liikuntatilat että rennon kohtaamispaikan, jossa voi verkostoitua esimerkiksi pelikonsolien äärellä. Tarjolla on myös mm. hieroja, parturi-kampaamo ja leikkipaikka lapsille.
Kysy lisää numerosta 044 723 4700 tai info@bref.fi. Palvelumme on tilanhakijoille ilmainen.
Työmatkat toimistolle junalla eivät ole ongelma, sillä lähin pysäkki on 15 minuutin päässä. Ekologista vastuullisuutta tavoitteleva sähköautojen latausasema on vain 837 m päässä toimistosta. Toimiston lähettyvillä sijaitsee korkeampi kuin normaali kahvilaa. Viereinen ruokakauppa on varsin hyödyllinen etu kotimatkallasi. Ammattitaitoisen apteekkihenkilökunnan vastaanotto on vain 796 m päässä toimistosta.
Toimisto sijaitsee alueella Espoo, joka on tunnettu yritysmyönteisestä infrastruktuuristaan. Tämän toimiston pinta-ala on 332.0m². Se luokitellaan keskikokoiseksi liiketilaksi tässä kaupungissa. Saat lisätietoja tästä toimistosta joka sijaitsee osoitteessa Linnoitustie 6, 02600 Espoo suoraan vuokranantajalta täyttämällä lomakkeen verkkosivuillamme. Täytä lomake ja kysy toimistoa koskevat kysymykset suoraan kiinteistön omistajalta.
Toimisto sijaitsee lähellä puistoa todella rauhallisessa ja inspiroivassa sijainnissa. Torin läheisyydessä sijaitseva toimistorakennus täydentää yhden kaupungin kauneimman kaupunginosan arkkitehtuurin kokonaisuutta. Toimisto sijaitsee viehättävällä paikalla, 468 m päässä joesta. Järvi sijaitsee 898 m päässä toimistosta, ja se on loputon energian ja motivaation lähde. Koska moottoritie sijaitsee toimiston välittömässä läheisyydessä, työntekijäsi eivät koskaan kohtaa esteitä työmatkallaan.

Etkö ole vielä löytänyt sopivaa tilaa?
Luo hakuvahti ja saat tietoja uusista vapaista vuokrakohteista.
Näyttää siltä, että suosikit-listasi Kohteeton täynnä. Poista vanhoja kohteita lisätäksesi uusia.
Näyttää siltä, että suosikit-listasi Kohteeton täynnä. Poista vanhoja kohteita lisätäksesi uusia.
Näyttää siltä, että suosikit-listasi Kohteeton täynnä. Poista vanhoja kohteita lisätäksesi uusia.
Näyttää siltä, että suosikit-listasi Kohteeton täynnä. Poista vanhoja kohteita lisätäksesi uusia.
Näyttää siltä, että suosikit-listasi Kohteeton täynnä. Poista vanhoja kohteita lisätäksesi uusia.
Näyttää siltä, että suosikit-listasi Kohteeton täynnä. Poista vanhoja kohteita lisätäksesi uusia.
Näyttää siltä, että suosikit-listasi Kohteeton täynnä. Poista vanhoja kohteita lisätäksesi uusia.
Näyttää siltä, että suosikit-listasi Kohteeton täynnä. Poista vanhoja kohteita lisätäksesi uusia.