




100% ilmainen ja ilman sitoumuksia
100% ilmainen ja ilman sitoumuksia
Äyritie 24, Vantaa
Nykyaikaista toimitilaa Aviapoliksessa Kehä III:n varrella, Plaza Business Parkissa.
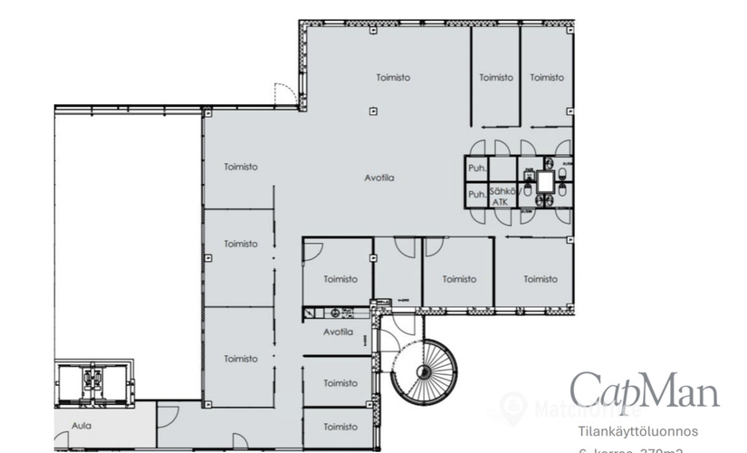
Tämä 6. kerroksen 375m2 toimisto sijaitsee Plaza Business Parkin Halo-talossa. Valoisa ja avara tila, jossa kolme neuvotteluhuonetta, kaksi työhuonetta, ja oma siivouskomero. Tila voidaan remontoida asiakkaan tarpeen mukaisesti. Tilassa ei ole tällä hetkellä keittiötä, mutta se voidaan tarvittaessa tehdä. Vuokralainen tekee tilaan oman sähkösopimuksen.
Plaza Business Park eli Äyritie 16-24 sijaitsee Kehä III:n varrella, lähellä lentokenttää ja kauppakeskus Jumboa. Sen toimitilat ovat nykyaikaisia ja ne ovat joustavasti muokattavissa vuokralaisen tarpeiden ja toiveiden mukaan.
Tämä Business Park- kokonaisuus koostuu viidestä pääkonttoritason toimistotalosta ja tarjoaa vuokralaisille monipuoliset sekä kattavat yritystoimintaa tukevat palvelut. Pysäköintipaikkoja on erillisessä pysäköintitalossa ja lisäksi pihalla on vieraspaikkoja. Työmatkapyöräilijoille on suihkutilat.
Kysy lisää numerosta 044 723 4700 tai info@bref.fi. Palvelumme on tilanhakijoille ilmainen.
Basic
Kun perustat yrityksen alueelle Vantaa, tulet ymmärtämään mitä yritysystävällinen infrastruktuuri tarkoittaa. Tämän toimiston pinta-ala on 375.0m². Se luokitellaan keskikokoiseksi liiketilaksi tässä kaupungissa. Saat lisätietoja tästä toimistosta joka sijaitsee osoitteessa Äyritie 24, 01510 Vantaa suoraan vuokranantajalta täyttämällä lomakkeen verkkosivuillamme. Onko sinulla vielä kysyttävää tästä toimistotilan vuokratarjouksesta? Täytä lomake ja kysy suoraan vuokranantajalta.
Etkö ole vielä löytänyt sopivaa tilaa?
Luo hakuvahti ja saat tietoja uusista vapaista vuokrakohteista.
Näyttää siltä, että suosikit-listasi Kohteeton täynnä. Poista vanhoja kohteita lisätäksesi uusia.
Näyttää siltä, että suosikit-listasi Kohteeton täynnä. Poista vanhoja kohteita lisätäksesi uusia.
Näyttää siltä, että suosikit-listasi Kohteeton täynnä. Poista vanhoja kohteita lisätäksesi uusia.
Näyttää siltä, että suosikit-listasi Kohteeton täynnä. Poista vanhoja kohteita lisätäksesi uusia.
Näyttää siltä, että suosikit-listasi Kohteeton täynnä. Poista vanhoja kohteita lisätäksesi uusia.
Näyttää siltä, että suosikit-listasi Kohteeton täynnä. Poista vanhoja kohteita lisätäksesi uusia.
Näyttää siltä, että suosikit-listasi Kohteeton täynnä. Poista vanhoja kohteita lisätäksesi uusia.
Näyttää siltä, että suosikit-listasi Kohteeton täynnä. Poista vanhoja kohteita lisätäksesi uusia.