



100% ilmainen ja ilman sitoumuksia
100% ilmainen ja ilman sitoumuksia
Yliopistonkatu 15, Turku
Vuokrataan toimistotilaa Turun keskustasta.
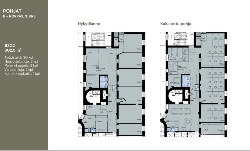
Tämä 302 m² toimistotila sijaitsee B-portaan 3. kerroksessa. Toimisto on huoneellinen, ja siihen kuuluvat omat keittiö-, tauko- ja wc-tilat.
Maanmiesten Kauppatalolla on erinomainen sijainti aivan Turun kauppatorin kupeessa, Kauppiaskadun ja Yliopistonkadun kulmassa. Keskustan monipuoliset palvelut ovat aivan kivenheiton päässä. Lähellä on useita pysäköintihalleja, joista voi vuokrata parkkipaikkoja.
Kysy lisää numerosta 044 723 4700 tai inf0@bref.fi. Palvelumme on tilanhakijoille ilmainen.
Tämä toimisto sijaitsee vain 1 minuutin kävelymatkan päässä linja-autoasemalta. Jos haluat saada autosi säihkyvän puhtaaksi, lähin autopesula on vain 14 minuutin matkan päässä. Lähistöllä sijaitseva ravintola on yksi paikallisen vieraanvaraisuuden keskeisistä vetonauloista.. Viereinen ruokakauppa on varsin hyödyllinen etu kotimatkallasi. Ammattitaitoisen apteekkihenkilökunnan vastaanotto on vain 213 m päässä toimistosta.
Toimisto sijaitsee alueella Turku, joka on tunnettu yritysmyönteisestä infrastruktuuristaan. Tämän toimiston pinta-ala on 302.0m². Se luokitellaan keskikokoiseksi liiketilaksi tässä kaupungissa. Saat lisätietoja tästä toimistosta joka sijaitsee osoitteessa Yliopistonkatu 15, 20100 Turku suoraan vuokranantajalta täyttämällä lomakkeen verkkosivuillamme. Onko sinulla vielä kysyttävää tästä toimistotilan vuokratarjouksesta? Täytä lomake ja kysy suoraan vuokranantajalta.
Joki virtaa vain 167 m päässä toimistosta ja se tekee kohteesta epäilemättä poikkeuksellisen liikekiinteistön. Torin läheisyydessä sijaitseva toimisto on kaupungin tärkeimpien reittien risteyksessä. Järvi sijaitsee 488 m päässä toimistosta, ja se on loputon energian ja motivaation lähde. Toimisto sijaitsee lähellä puistoa todella rauhallisessa ja inspiroivassa sijainnissa. Pidä hauskaa viereisellä klubilla, joka sijaitsee 205 m päässä toimistosta. Se on loistava henkilöstön virkistäytymispaikka.

Etkö ole vielä löytänyt sopivaa tilaa?
Luo hakuvahti ja saat tietoja uusista vapaista vuokrakohteista.
Näyttää siltä, että suosikit-listasi Kohteeton täynnä. Poista vanhoja kohteita lisätäksesi uusia.
Näyttää siltä, että suosikit-listasi Kohteeton täynnä. Poista vanhoja kohteita lisätäksesi uusia.
Näyttää siltä, että suosikit-listasi Kohteeton täynnä. Poista vanhoja kohteita lisätäksesi uusia.
Näyttää siltä, että suosikit-listasi Kohteeton täynnä. Poista vanhoja kohteita lisätäksesi uusia.
Näyttää siltä, että suosikit-listasi Kohteeton täynnä. Poista vanhoja kohteita lisätäksesi uusia.
Näyttää siltä, että suosikit-listasi Kohteeton täynnä. Poista vanhoja kohteita lisätäksesi uusia.
Näyttää siltä, että suosikit-listasi Kohteeton täynnä. Poista vanhoja kohteita lisätäksesi uusia.
Näyttää siltä, että suosikit-listasi Kohteeton täynnä. Poista vanhoja kohteita lisätäksesi uusia.