

Aurakatu 12, Turku
Toimistotilaa erinomaisella sijainnilla Turun ydinkeskustassa.
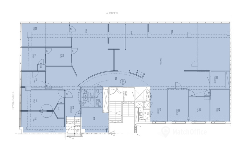
Tämä 402,5m2 tila sijaitsee kiinteistön 5. kerroksessa. Kokonaisuus sisältää useampia työhuoneita, neuvottelutilaa, keittiö- ja taukotilaa, wc-tiloja sekä avointa toimistotilaa. Tilasta avautuu upeat näkymät kauppatorin suuntaan. Tilamuutokset ja remontointi ovat mahdollisia vuokralaisen toiveen mukaan.
Aurakatu 12 sijaitsee vilkkaalla paikalla Turun ydinkeskustassa. Kaikki kaupalliset palvelut, erikoislikkeet sekä monipuolinen ravintolatarjonta ovat aivan kivenheiton päässä.
Kysy lisää numerosta 044 723 4700 tai info@bref.fi. Palvelumme on tilanhakijoille ilmainen.
Basic
Etkö ole vielä löytänyt sopivaa tilaa?
Luo hakuvahti ja saat tietoja uusista vapaista vuokrakohteista.
Näyttää siltä, että suosikit-listasi Kohteeton täynnä. Poista vanhoja kohteita lisätäksesi uusia.
Näyttää siltä, että suosikit-listasi Kohteeton täynnä. Poista vanhoja kohteita lisätäksesi uusia.
Näyttää siltä, että suosikit-listasi Kohteeton täynnä. Poista vanhoja kohteita lisätäksesi uusia.
Näyttää siltä, että suosikit-listasi Kohteeton täynnä. Poista vanhoja kohteita lisätäksesi uusia.
Näyttää siltä, että suosikit-listasi Kohteeton täynnä. Poista vanhoja kohteita lisätäksesi uusia.
Näyttää siltä, että suosikit-listasi Kohteeton täynnä. Poista vanhoja kohteita lisätäksesi uusia.
Näyttää siltä, että suosikit-listasi Kohteeton täynnä. Poista vanhoja kohteita lisätäksesi uusia.
Näyttää siltä, että suosikit-listasi Kohteeton täynnä. Poista vanhoja kohteita lisätäksesi uusia.
Näyttää siltä, että suosikit-listasi Kohteeton täynnä. Poista vanhoja kohteita lisätäksesi uusia.
Näyttää siltä, että suosikit-listasi Kohteeton täynnä. Poista vanhoja kohteita lisätäksesi uusia.