




Urho Kekkosen katu 4-6, Helsinki
Vuokrattavissa toimistotilaa Kampista, Hämäläisten talosta.
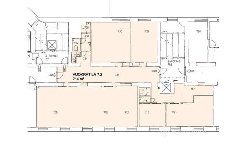
Kyseinen 214m² toimisto sijaitsee kiinteistön 7. kerroksessa. Käynti kadulta sekä A- että B-portaan kautta, kaksi eri sisäänkäyntiä. Tilassa on avotilaa ja huoneita, ja siihen kuuluvat omat wc-tilat. Kiinteistön tiloissa on koneellinen ilmanvaihto ja kaukokylmä. Tila remontoidaan vuokralaiselle perussiistiin kuntoon. Kuvat ovat esimerkkejä siitä, millaiseksi tilat on mahdollista remontoida.
Hämäläisten talo sijaitsee aivan Helsingin ydinkeskustassa, Kampin kauppakeskusta vastapäätä. Kiinteistö on tunnettu Helsingin Yliopiston Hämäläis-Osakunnan toiminnasta. Kiinteistön lähellä useat keskustan kauppakeskukset ja muut palvelut.
Kysy lisää numerosta 044 723 4700 tai info@bref.fi. Palvelumme on tilanhakijoille ilmainen.
Etkö ole vielä löytänyt sopivaa tilaa?
Luo hakuvahti ja saat tietoja uusista vapaista vuokrakohteista.
Näyttää siltä, että suosikit-listasi Kohteeton täynnä. Poista vanhoja kohteita lisätäksesi uusia.
Näyttää siltä, että suosikit-listasi Kohteeton täynnä. Poista vanhoja kohteita lisätäksesi uusia.
Näyttää siltä, että suosikit-listasi Kohteeton täynnä. Poista vanhoja kohteita lisätäksesi uusia.
Näyttää siltä, että suosikit-listasi Kohteeton täynnä. Poista vanhoja kohteita lisätäksesi uusia.
Näyttää siltä, että suosikit-listasi Kohteeton täynnä. Poista vanhoja kohteita lisätäksesi uusia.
Näyttää siltä, että suosikit-listasi Kohteeton täynnä. Poista vanhoja kohteita lisätäksesi uusia.
Näyttää siltä, että suosikit-listasi Kohteeton täynnä. Poista vanhoja kohteita lisätäksesi uusia.
Näyttää siltä, että suosikit-listasi Kohteeton täynnä. Poista vanhoja kohteita lisätäksesi uusia.
Näyttää siltä, että suosikit-listasi Kohteeton täynnä. Poista vanhoja kohteita lisätäksesi uusia.
Näyttää siltä, että suosikit-listasi Kohteeton täynnä. Poista vanhoja kohteita lisätäksesi uusia.
Näyttää siltä, että suosikit-listasi Kohteeton täynnä. Poista vanhoja kohteita lisätäksesi uusia.
Näyttää siltä, että suosikit-listasi Kohteeton täynnä. Poista vanhoja kohteita lisätäksesi uusia.
Näyttää siltä, että suosikit-listasi Kohteeton täynnä. Poista vanhoja kohteita lisätäksesi uusia.