




100% ilmainen ja ilman sitoumuksia
100% ilmainen ja ilman sitoumuksia
Pursimiehenkatu 26, Helsinki
Toimistotilaa Helsingin Punavuoressa, Mestaritalossa.
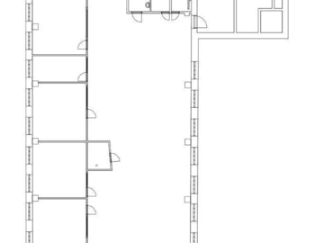
Kiinteistön 5. kerroksessa on yhteensä 850 m² edustavaa toimistotilaa vuokrattavana. Kokonaisuus on mahdollista jakaa useammalle käyttäjälle. Tilasta on mahdollista vuokrata esimerkiksi 250 m², 300 m² tai 550 m² kokoinen osa. Toimistossa on tavallista korkeampi huonekorkeus, ja se on valoisa ja avara. Tilassa on valmiita työhuoneita, neuvottelutiloja ja sosiaalitilat. Käytävältä löytyy myös suihkutilat työmatkapyöräilijöitä varten. Kerrokseen on henkilö- ja tavarahissiyhteys. Tiloja on mahdollista muokata vuokralaisen tarpeiden mukaan.
Pursimiehenkatu 26 C eli Mestaritalo sijaitsee Helsingin Punavuoressa, Hietalahdenrannan läheisyydessä. Alueella on runsaasti lounasravintoloita, päivittäistavarapalvelut ja erikoisliikkeitä. Helsingin keskustan palvelut sijaitsevat lyhyen matkan päässä. Kiinteistössä toimii lukuisia mainos- ja media-alan yrityksiä sekä mm. arkkitehtitoimistoja.
Kysy lisää numerosta 044 723 4700 tai info@bref.fi. Palvelumme on tilanhakijoille ilmainen.
Toimistolle on 6 minuutin kävelymatka lähimmältä bussiasemalta. Ekologista vastuullisuutta tavoitteleva sähköautojen latausasema on vain 181 m päässä toimistosta. Viereinen ruokakauppa on varsin hyödyllinen etu kotimatkallasi.
Tämän toimiston käyttöalue on 550.0 - 550.0 neliömetriä, joten se on tilavampi kuin suurin osa vaihtoehdoista Helsinki:ssä. Tämä toimitila on pinta-alaltaan 550.0 neliömetriä, joten se kuuluu Helsinki suurimpien vuokratilojen joukkoon. Kun perustat yrityksen alueelle Helsinki, tulet ymmärtämään mitä yritysystävällinen infrastruktuuri tarkoittaa. Tämän vuokrakohteen kokonaispinta-ala on 550.0 m², mikä on suurempi kuin kaupungin keskiarvo. Täytä lomake saadaksesi lisätietoja toimistosta. Kaikki tarvitsemasi tiedot saat suoraan vuokranantajalta.
Järvi sijaitsee 414 m päässä toimistosta, ja se on loputon energian ja motivaation lähde. Torin läheisyydessä sijaitseva toimisto on kaupungin tärkeimpien reittien risteyksessä. Joki virtaa 739 m etäisyydellä rakennuksesta, mikä lisää paikkakunnan yleistä vetovoimaa. Elokuvateatteri on 76 m päässä toimistosta ja se täydentää kaupunginosan viihdetarjontaa. Toimisto sijaitsee lähellä puistoa todella rauhallisessa ja inspiroivassa sijainnissa.

Etkö ole vielä löytänyt sopivaa tilaa?
Luo hakuvahti ja saat tietoja uusista vapaista vuokrakohteista.
Näyttää siltä, että suosikit-listasi Kohteeton täynnä. Poista vanhoja kohteita lisätäksesi uusia.
Näyttää siltä, että suosikit-listasi Kohteeton täynnä. Poista vanhoja kohteita lisätäksesi uusia.
Näyttää siltä, että suosikit-listasi Kohteeton täynnä. Poista vanhoja kohteita lisätäksesi uusia.
Näyttää siltä, että suosikit-listasi Kohteeton täynnä. Poista vanhoja kohteita lisätäksesi uusia.
Näyttää siltä, että suosikit-listasi Kohteeton täynnä. Poista vanhoja kohteita lisätäksesi uusia.
Näyttää siltä, että suosikit-listasi Kohteeton täynnä. Poista vanhoja kohteita lisätäksesi uusia.
Näyttää siltä, että suosikit-listasi Kohteeton täynnä. Poista vanhoja kohteita lisätäksesi uusia.
Näyttää siltä, että suosikit-listasi Kohteeton täynnä. Poista vanhoja kohteita lisätäksesi uusia.
Näyttää siltä, että suosikit-listasi Kohteeton täynnä. Poista vanhoja kohteita lisätäksesi uusia.