

100% ilmainen ja ilman sitoumuksia
100% ilmainen ja ilman sitoumuksia
Meritullinkatu 1, Helsinki
Modernia toimitilaa Helsingin Kruununhaassa.
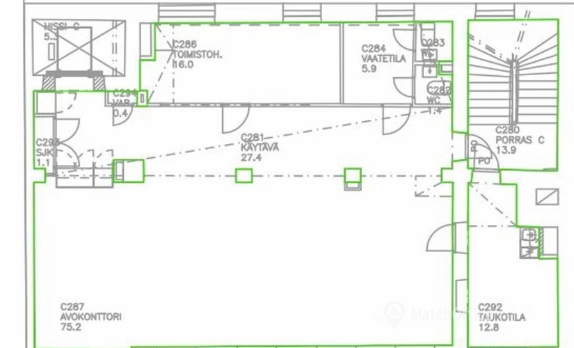
Tämä 138 m² toimistotila sijaitsee C-portaan 2. kerroksessa. Toimistossa on avotilaa, yksi toimistohuone, keittiö-/taukotila sekä omat wc-tilat.
Meritulli 1 sijaitsee Helsingin Kruununhaassa, aivan meren tuntumassa, bussi- ja raitiovaunuyhteyksien välittömässä läheisyydessä. Kiinteistö tarjoaa erinomaisen mahdollisuuden päästä suunnittelemaan yrityksesi toimitilat. Toteutuksessa käytetään laadukkaita materiaaleja ja tilat toteutetaan rakennuksen vanhaa henkeä kunnioittaen. Kiinteistön tilat ovat muunneltavia ja joustavat tilaratkaisut ovat mahdollisia. Talotekniikka on uusittu vastaamaan nykyaikaisia tarpeita. Sisäilmaan, valaistukseen ja akustiikkaan on kiinnitetty erityistä huomiota.
Keskustan kattava lounasravintolavalikoima, ruokakauppa ja monipuoliset palvelut ovat kävelyetäisyydellä. Kiinteistössä on viihtyisä Meri Lounge /kahvila, pyörien säilytystila pukuhuone- ja suihkutiloineen. Lisäksi kiinteistössä on vuokrattavia kokoustiloja ja sauna. Pohjakerroksessa on vuokralaisten käytössä oleva kuntosali.
Kysy lisää numerosta 044 723 4700 tai info@bref.fi. Palvelumme on tilanhakijoille ilmainen.
Polkupyöräparkki on osa lähialueen infrastruktuuria. Ammattitaitoisen apteekkihenkilökunnan vastaanotto on vain 368 m päässä toimistosta. 516 m päässä toimistosta on laaja pysäköintialue. Lähellä toimistoa sijaitsevas posti voi tulla hyödylliseksi.
Kun perustat yrityksen alueelle Helsinki, tulet ymmärtämään mitä yritysystävällinen infrastruktuuri tarkoittaa. Tämän toimiston pinta-ala on 138.0m². Se luokitellaan keskikokoiseksi liiketilaksi tässä kaupungissa. Saat lisätietoja tästä toimistosta joka sijaitsee osoitteessa Meritullinkatu 1, 00170 Helsinki suoraan vuokranantajalta täyttämällä lomakkeen verkkosivuillamme. Täytä lomake saadaksesi lisätietoja toimistosta. Kaikki tarvitsemasi tiedot saat suoraan vuokranantajalta.
Joki virtaa vain 832 m päässä toimistosta ja se tekee kohteesta epäilemättä poikkeuksellisen liikekiinteistön. Toimiston lähellä sijaitseva puisto tuo mukanaan luonnollista rauhallisuutta kaupungin betoniviidakon keskelle. Järvi sijaitsee 499 m päässä toimistosta, ja se on loputon energian ja motivaation lähde. Toimiston välittömässä läheisyydessä oleva liikenneväylä tuo lisäetuja kaupunkiliikenteeseen. Rakennuksen vieressä kulkee tie, joten toimistosi on kaikkien vierailijoiden tavoitettavissa.

Etkö ole vielä löytänyt sopivaa tilaa?
Luo hakuvahti ja saat tietoja uusista vapaista vuokrakohteista.
Näyttää siltä, että suosikit-listasi Kohteeton täynnä. Poista vanhoja kohteita lisätäksesi uusia.
Näyttää siltä, että suosikit-listasi Kohteeton täynnä. Poista vanhoja kohteita lisätäksesi uusia.
Näyttää siltä, että suosikit-listasi Kohteeton täynnä. Poista vanhoja kohteita lisätäksesi uusia.
Näyttää siltä, että suosikit-listasi Kohteeton täynnä. Poista vanhoja kohteita lisätäksesi uusia.
Näyttää siltä, että suosikit-listasi Kohteeton täynnä. Poista vanhoja kohteita lisätäksesi uusia.
Näyttää siltä, että suosikit-listasi Kohteeton täynnä. Poista vanhoja kohteita lisätäksesi uusia.
Näyttää siltä, että suosikit-listasi Kohteeton täynnä. Poista vanhoja kohteita lisätäksesi uusia.
Näyttää siltä, että suosikit-listasi Kohteeton täynnä. Poista vanhoja kohteita lisätäksesi uusia.