

Kutomotie 6, Helsinki
Hyväkuntoista toimistotilaa Pitäjänmäessä.
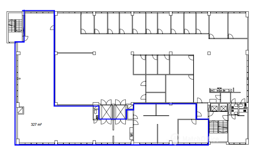
Tämä 327m2 toimisto sijaitsee kiinteistön 4. kerroksessa ja se koostuu avotilasta, parista huoneesta sekä omista keittiö ja wc-tiloista.
Kutomotie 6 sijaitsee Helsingin Pitäjänmäessä ja se koostuu kahdesta rakennuksesta. Kadunpuoleisessa A-talossa sijaitsevat toimistotilat ja sisäpihan puoleisessa B-talossa tuotannoliset tilat. Kiinteistön tilat sopivat moniin eri käyttötarkoituksiin.
Kysy lisää numerosta 044 7234 700 tai info@bref.fi. Palvelumme on tilanhakijoille ilmainen.
Etkö ole vielä löytänyt sopivaa tilaa?
Luo hakuvahti ja saat tietoja uusista vapaista vuokrakohteista.
Näyttää siltä, että suosikit-listasi Kohteeton täynnä. Poista vanhoja kohteita lisätäksesi uusia.
Näyttää siltä, että suosikit-listasi Kohteeton täynnä. Poista vanhoja kohteita lisätäksesi uusia.
Näyttää siltä, että suosikit-listasi Kohteeton täynnä. Poista vanhoja kohteita lisätäksesi uusia.
Näyttää siltä, että suosikit-listasi Kohteeton täynnä. Poista vanhoja kohteita lisätäksesi uusia.
Näyttää siltä, että suosikit-listasi Kohteeton täynnä. Poista vanhoja kohteita lisätäksesi uusia.
Näyttää siltä, että suosikit-listasi Kohteeton täynnä. Poista vanhoja kohteita lisätäksesi uusia.
Näyttää siltä, että suosikit-listasi Kohteeton täynnä. Poista vanhoja kohteita lisätäksesi uusia.
Näyttää siltä, että suosikit-listasi Kohteeton täynnä. Poista vanhoja kohteita lisätäksesi uusia.
Näyttää siltä, että suosikit-listasi Kohteeton täynnä. Poista vanhoja kohteita lisätäksesi uusia.