




100% ilmainen ja ilman sitoumuksia
100% ilmainen ja ilman sitoumuksia
Kuortaneenkatu 1, Helsinki
Toimistotilaa erinomaisella sijainnilla Vallilassa.
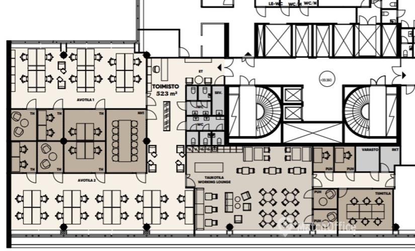
Tämä 523 m² toimistotila sijaitsee kiinteistön 7. kerroksessa. Tilassa on avotilaa, neuvottelutilaa, työhuoneita, oma keittiö/taukotila ja wc:t. Tila remontoidaan uudelle vuokralaiselle.
Kuortaneenkatu 1 sijaitsee Helsingin Vallilassa, muutaman kilometrin päässä Helsingin keskustasta. Kiinteistö sijaitsee hyvien julkisten liikenneyhteyksien varrella, noin kilometrin päässä Triplasta ja Pasilan juna-asemasta. Kiinteistössä on kattavat vuokralaispalvelut kuten lounasravintola, vuokrattavia neuvottelutiloja ja pysäköintihalli.
Kysy lisää numerosta 044 723 4700 tai info@bref.fi. Palvelumme on tilanhakijoille ilmainen.
Tämän toimiston käyttöalue on 523.0 - 523.0 neliömetriä, joten se on tilavampi kuin suurin osa vaihtoehdoista Helsinki:ssä. Tämä toimitila on pinta-alaltaan 523.0 neliömetriä, joten se kuuluu Helsinki suurimpien vuokratilojen joukkoon. Helsinki on alue, jonne yritykset tulevat kokeakseen sen kehittyneen infrastruktuurin edut. Tämän vuokrakohteen kokonaispinta-ala on 523.0 m², mikä on suurempi kuin kaupungin keskiarvo. Onko sinulla vielä kysyttävää tästä toimistotilan vuokratarjouksesta? Täytä lomake ja kysy suoraan vuokranantajalta.
Toimisto sijaitsee lähellä puistoa todella rauhallisessa ja inspiroivassa sijainnissa. Tori sijaitsee lähellä toimistoa ja tuo elinvoimaa yrityksesi elämään. Toimisto sijaitsee viehättävällä paikalla, 458 m päässä joesta. Järvi sijaitsee 492 m päässä toimistosta, ja se on loputon energian ja motivaation lähde. Taiteellisena bonuksena löydät teatterin, joka seisoo mahtavasti lähellä toimistoa.

Etkö ole vielä löytänyt sopivaa tilaa?
Luo hakuvahti ja saat tietoja uusista vapaista vuokrakohteista.
Näyttää siltä, että suosikit-listasi Kohteeton täynnä. Poista vanhoja kohteita lisätäksesi uusia.
Näyttää siltä, että suosikit-listasi Kohteeton täynnä. Poista vanhoja kohteita lisätäksesi uusia.
Näyttää siltä, että suosikit-listasi Kohteeton täynnä. Poista vanhoja kohteita lisätäksesi uusia.
Näyttää siltä, että suosikit-listasi Kohteeton täynnä. Poista vanhoja kohteita lisätäksesi uusia.
Näyttää siltä, että suosikit-listasi Kohteeton täynnä. Poista vanhoja kohteita lisätäksesi uusia.
Näyttää siltä, että suosikit-listasi Kohteeton täynnä. Poista vanhoja kohteita lisätäksesi uusia.
Näyttää siltä, että suosikit-listasi Kohteeton täynnä. Poista vanhoja kohteita lisätäksesi uusia.
Näyttää siltä, että suosikit-listasi Kohteeton täynnä. Poista vanhoja kohteita lisätäksesi uusia.
Näyttää siltä, että suosikit-listasi Kohteeton täynnä. Poista vanhoja kohteita lisätäksesi uusia.
Näyttää siltä, että suosikit-listasi Kohteeton täynnä. Poista vanhoja kohteita lisätäksesi uusia.