




100% ilmainen ja ilman sitoumuksia
100% ilmainen ja ilman sitoumuksia
Hämeentie 15, Helsinki
Vuokrataan toimistotilaa Sörnäisissä.
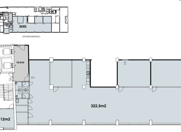
Tämä 222m2 kokoinen toimisto sijaitsee kiinteistön 3. kerroksessa. Toimistotila, jossa on huoneita sekä tiimeille että rauhalliseen työskentelyyn. Avaruutta tilaan tuo kaareva erkkeri. Kiinteistö sijaitsee erinomaisella paikalla Helsingin Sörnäisissä.
Hämeentie 15 on liike- ja toimistokiinteistö, joka on saneerattu nykyaikaisten vaatimusten mukaiseksi. Samassa kiinteistössä toimii mm. kuntosali ja toimistohotelli ja lounasravintola. Kohteeseen on hyvät julkiset liikenneyhteydet raitiovaunuilla ja busseilla.
Kysy lisää numerosta 044 723 4700 tai info@bref.fi. Palvelumme on tilanhakijoille ilmainen.
Toimistolle on 4 minuutin kävelymatka lähimmältä bussiasemalta. Ekologista vastuullisuutta tavoitteleva sähköautojen latausasema on vain 197 m päässä toimistosta. Polkupyöräparkki on osa lähialueen infrastruktuuria. Viereinen ruokakauppa on varsin hyödyllinen etu kotimatkallasi.
Tämän toimiston pinta-ala on 222.0m². Se luokitellaan keskikokoiseksi liiketilaksi tässä kaupungissa. Yrityksesi tuleva koti hyötyy sijainnistaan alueella Helsinki, joka on tunnetusti suotuisa kaupallinen alue. Tämä on sopiva vaihtoehto sekä pienten että keskisuurten, enintään 9 hengen tiimien sijoittamiseen. Saat lisätietoja tästä toimistosta joka sijaitsee osoitteessa Hämeentie 15, 00500 Helsinki suoraan vuokranantajalta täyttämällä lomakkeen verkkosivuillamme. Vuokranantaja vastaa mielellään kaikkiin kysymyksiisi. Täytä vain lomake verkkosivuillamme ja saat pyydetyt tiedot.
Pidä hauskaa viereisellä klubilla, joka sijaitsee 53 m päässä toimistosta. Se on loistava henkilöstön virkistäytymispaikka. Kun elokuvateatteri on vain 402 m päässä, toimistosi päätyy keskelle kaupungin elämää. Puisto sijaitsee lähellä toimistoa. Se on täydellinen paikka keskustella ideoista ja projekteista. Torin läheisyydessä sijaitseva toimisto on kaupungin tärkeimpien reittien risteyksessä. Koska teatteri on lähellä toimistoa, yrityksesi imago paranee huomattavasti, erityisesti vielä tuntemattomien asiakkaiden silmissä.

Etkö ole vielä löytänyt sopivaa tilaa?
Luo hakuvahti ja saat tietoja uusista vapaista vuokrakohteista.
Näyttää siltä, että suosikit-listasi Kohteeton täynnä. Poista vanhoja kohteita lisätäksesi uusia.
Näyttää siltä, että suosikit-listasi Kohteeton täynnä. Poista vanhoja kohteita lisätäksesi uusia.
Näyttää siltä, että suosikit-listasi Kohteeton täynnä. Poista vanhoja kohteita lisätäksesi uusia.
Näyttää siltä, että suosikit-listasi Kohteeton täynnä. Poista vanhoja kohteita lisätäksesi uusia.
Näyttää siltä, että suosikit-listasi Kohteeton täynnä. Poista vanhoja kohteita lisätäksesi uusia.
Näyttää siltä, että suosikit-listasi Kohteeton täynnä. Poista vanhoja kohteita lisätäksesi uusia.
Näyttää siltä, että suosikit-listasi Kohteeton täynnä. Poista vanhoja kohteita lisätäksesi uusia.
Näyttää siltä, että suosikit-listasi Kohteeton täynnä. Poista vanhoja kohteita lisätäksesi uusia.
Näyttää siltä, että suosikit-listasi Kohteeton täynnä. Poista vanhoja kohteita lisätäksesi uusia.
Näyttää siltä, että suosikit-listasi Kohteeton täynnä. Poista vanhoja kohteita lisätäksesi uusia.
Näyttää siltä, että suosikit-listasi Kohteeton täynnä. Poista vanhoja kohteita lisätäksesi uusia.
Näyttää siltä, että suosikit-listasi Kohteeton täynnä. Poista vanhoja kohteita lisätäksesi uusia.
Näyttää siltä, että suosikit-listasi Kohteeton täynnä. Poista vanhoja kohteita lisätäksesi uusia.