




100% ilmainen ja ilman sitoumuksia
100% ilmainen ja ilman sitoumuksia
Esterinportti 2, Helsinki
Toimistotilaa hyvällä paikalla Helsingin Pasilassa.
Kiinteistön kolmanteen kerrokseen valmistuu marraskuussa 2025 täysin uudistetut ja sisustussuunnittelijan konseptoimat pientoimistotilat. Tarjolla on eri kokoisia toimitiloja 82 m² aina 287 m² asti, jotka kaikki on suunniteltu huolella pohjakuvien mukaisesti. Kaikissa tiloissa on omat wc-tilat ja keittiö. Tilojen yhteyteen tulee kolme yhteiskäyttöneuvotteluhuonetta. Kuvat ovat yleiskuvia kiinteistön tiloista.
Esterinportti 2 on toimistokiinteistö, joka sijaitsee Länsi-Pasilassa vain kivenheiton päässä kauppakeskus Triplasta. Kiinteistössä on tasokas lounasravintola Factory. Julkiset liikenneyhteydet ovat erinomaiset.
Kysy lisää numerosta 044 723 4700 tai info@bref.fi. Palvelumme on tilanhakijoille ilmainen.
Toimistolle on 1 minuutin kävelymatka lähimmältä bussiasemalta. Ekologista vastuullisuutta tavoitteleva sähköautojen latausasema on vain 41 m päässä toimistosta. Lähistöllä sijaitseva ravintola on yksi paikallisen vieraanvaraisuuden keskeisistä vetonauloista.. Viereinen ruokakauppa on varsin hyödyllinen etu kotimatkallasi. Kuntosali joka sijaitsee vain 5 minuutin päässä toimistosta, on asianmukaisesti varustettu urheilukeskus.
Basic
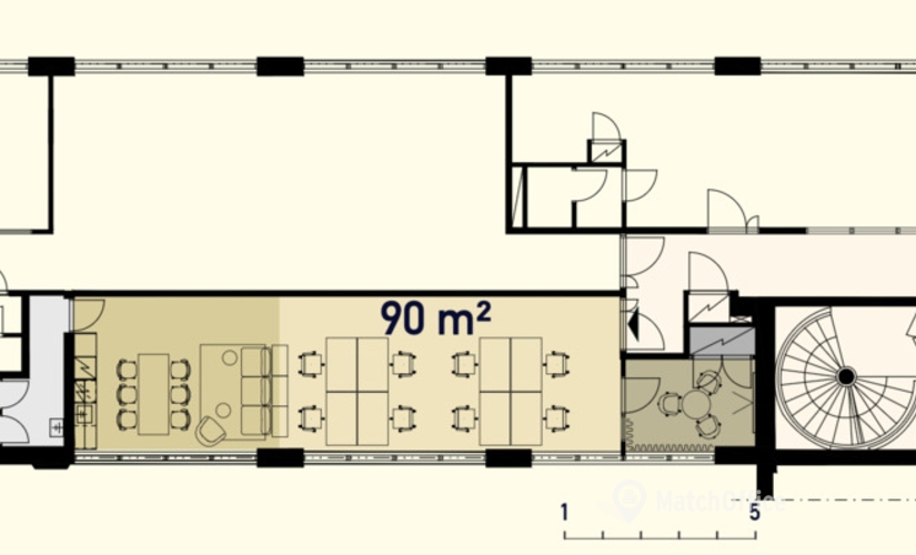
Tämä toimisto kattaa 90.0 neliömetriä, joten se on pienempi kuin keskimääräiset työtilat Helsinki:ssä. Tämä on hyvä vaihtoehto start-upeille. Kun perustat yrityksen alueelle Helsinki, tulet ymmärtämään mitä yritysystävällinen infrastruktuuri tarkoittaa. Toimiston pinta-ala on 90.0 m². Saat lisätietoja tästä toimistosta joka sijaitsee osoitteessa Esterinportti 2, 00240 Helsinki suoraan vuokranantajalta täyttämällä lomakkeen verkkosivuillamme. Täytä lomake ja kysy toimistoa koskevat kysymykset suoraan kiinteistön omistajalta.
Järvi sijaitsee 333 m päässä toimistosta, ja se on loputon energian ja motivaation lähde. Torin läheisyydessä sijaitseva toimisto on kaupungin tärkeimpien reittien risteyksessä. Joki virtaa vain 910 m päässä toimistosta ja se tekee kohteesta epäilemättä poikkeuksellisen liikekiinteistön. Toimiston lähellä sijaitseva puisto tuo mukanaan luonnollista rauhallisuutta kaupungin betoniviidakon keskelle. Elokuvateatteri kruunaa kauounginosan monipuolisen infrastruktuurin, ja se sijaitsee 274 m päässä toimistosta.

Etkö ole vielä löytänyt sopivaa tilaa?
Luo hakuvahti ja saat tietoja uusista vapaista vuokrakohteista.
Näyttää siltä, että suosikit-listasi Kohteeton täynnä. Poista vanhoja kohteita lisätäksesi uusia.
Näyttää siltä, että suosikit-listasi Kohteeton täynnä. Poista vanhoja kohteita lisätäksesi uusia.
Näyttää siltä, että suosikit-listasi Kohteeton täynnä. Poista vanhoja kohteita lisätäksesi uusia.
Näyttää siltä, että suosikit-listasi Kohteeton täynnä. Poista vanhoja kohteita lisätäksesi uusia.
Näyttää siltä, että suosikit-listasi Kohteeton täynnä. Poista vanhoja kohteita lisätäksesi uusia.
Näyttää siltä, että suosikit-listasi Kohteeton täynnä. Poista vanhoja kohteita lisätäksesi uusia.
Näyttää siltä, että suosikit-listasi Kohteeton täynnä. Poista vanhoja kohteita lisätäksesi uusia.
Näyttää siltä, että suosikit-listasi Kohteeton täynnä. Poista vanhoja kohteita lisätäksesi uusia.
Näyttää siltä, että suosikit-listasi Kohteeton täynnä. Poista vanhoja kohteita lisätäksesi uusia.
Näyttää siltä, että suosikit-listasi Kohteeton täynnä. Poista vanhoja kohteita lisätäksesi uusia.
Näyttää siltä, että suosikit-listasi Kohteeton täynnä. Poista vanhoja kohteita lisätäksesi uusia.
Näyttää siltä, että suosikit-listasi Kohteeton täynnä. Poista vanhoja kohteita lisätäksesi uusia.
Näyttää siltä, että suosikit-listasi Kohteeton täynnä. Poista vanhoja kohteita lisätäksesi uusia.
Näyttää siltä, että suosikit-listasi Kohteeton täynnä. Poista vanhoja kohteita lisätäksesi uusia.
Näyttää siltä, että suosikit-listasi Kohteeton täynnä. Poista vanhoja kohteita lisätäksesi uusia.
Näyttää siltä, että suosikit-listasi Kohteeton täynnä. Poista vanhoja kohteita lisätäksesi uusia.
Näyttää siltä, että suosikit-listasi Kohteeton täynnä. Poista vanhoja kohteita lisätäksesi uusia.
Näyttää siltä, että suosikit-listasi Kohteeton täynnä. Poista vanhoja kohteita lisätäksesi uusia.
Näyttää siltä, että suosikit-listasi Kohteeton täynnä. Poista vanhoja kohteita lisätäksesi uusia.
Näyttää siltä, että suosikit-listasi Kohteeton täynnä. Poista vanhoja kohteita lisätäksesi uusia.
Näyttää siltä, että suosikit-listasi Kohteeton täynnä. Poista vanhoja kohteita lisätäksesi uusia.