



Säterinkatu 6, Espoo
Modernia ja valoisaa toimistotilaa hyvällä sijainnilla Espoon Leppävaarassa Sellon kauppakeskuksen läheisyydestä.
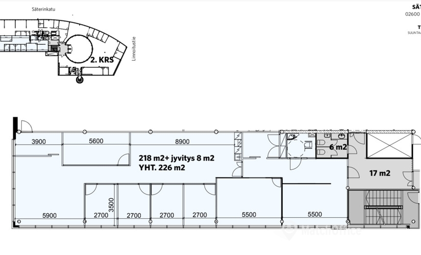
Tämä 226m2 tila sijaitsee kiinteistön 2.kerroksessa. Tila koostuu avotilasta, mutta sitä voidaan muokata vuokralaisen tarpeiden mukaan. Tilassa on oma wc.
Säterinkatu 6 eli Säteri6 on toimistokiinteistö erinomaisten kulkuyhteyksien varrella Espoon Leppävaarassa. Kiinteistö on rakennettu vuonna 2001 ja sen tilat vastaavat nykyajan toimistovuokralaisen tarpeisiin. Sen tilat ovat muokattavissa yrityksen tarpeiden mukaan. Ne saadaan täysin avonaisiksi, huoneiden ja avotilan yhdistelmiksi tai monitilatoimistoiksi. Lisäksi kiinteistössä on monipuoliset Business Park-tason palvelut.
Kysy lisää numerosta 044 723 4700 tai info@bref.fi. Palvelumme on tilanhakijoille ilmainen.
Toimistolle on 1 minuutin kävelymatka lähimmältä bussiasemalta. Jos haluat saada autosi säihkyvän puhtaaksi, lähin autopesula on vain 9 minuutin matkan päässä. Lähistöllä sijaitseva ravintola on yksi paikallisen vieraanvaraisuuden keskeisistä vetonauloista.. Kuntosali joka sijaitsee vain 8 minuutin päässä toimistosta, on asianmukaisesti varustettu urheilukeskus. Lähin kuntosali löytyy 504 m päästä toimistosta.
Basic
Toimisto on suunniteltu menestystä varten, ja se sijaitsee lähellä moottoritietä, jotta tiimisi liikkuminen kaupungissa olisi nopeaa ja mukavaa. Toimiston lähellä sijaitseva puisto tuo mukanaan luonnollista rauhallisuutta kaupungin betoniviidakon keskelle. Toria lähellä sijaitseva toimisto on osa kaupungin tärkeintä kaupallista aluetta. Joki virtaa vain 372 m päässä toimistosta ja se tekee kohteesta epäilemättä poikkeuksellisen liikekiinteistön. Elokuvateatteri on 497 m päässä toimistosta ja se täydentää kaupunginosan viihdetarjontaa.

Etkö ole vielä löytänyt sopivaa tilaa?
Luo hakuvahti ja saat tietoja uusista vapaista vuokrakohteista.
Näyttää siltä, että suosikit-listasi Kohteeton täynnä. Poista vanhoja kohteita lisätäksesi uusia.
Näyttää siltä, että suosikit-listasi Kohteeton täynnä. Poista vanhoja kohteita lisätäksesi uusia.
Näyttää siltä, että suosikit-listasi Kohteeton täynnä. Poista vanhoja kohteita lisätäksesi uusia.
Näyttää siltä, että suosikit-listasi Kohteeton täynnä. Poista vanhoja kohteita lisätäksesi uusia.
Näyttää siltä, että suosikit-listasi Kohteeton täynnä. Poista vanhoja kohteita lisätäksesi uusia.
Näyttää siltä, että suosikit-listasi Kohteeton täynnä. Poista vanhoja kohteita lisätäksesi uusia.
Näyttää siltä, että suosikit-listasi Kohteeton täynnä. Poista vanhoja kohteita lisätäksesi uusia.
Näyttää siltä, että suosikit-listasi Kohteeton täynnä. Poista vanhoja kohteita lisätäksesi uusia.
Näyttää siltä, että suosikit-listasi Kohteeton täynnä. Poista vanhoja kohteita lisätäksesi uusia.