




100% ilmainen ja ilman sitoumuksia
100% ilmainen ja ilman sitoumuksia
Lars Sonckin kaari 16, Espoo
Toimistotilaa Leppävaarassa Stella Business Parkissa.
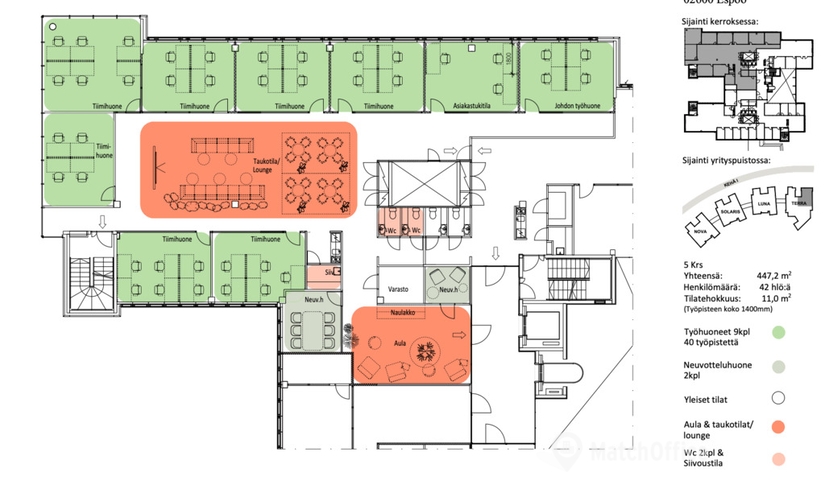
Tämä 447,2m2 toimistotila sijaitsee Terra-talon 5. kerroksessa.
Stella Business Park sijaitsee Espoon Leppävaarassa, ja se koostuu neljästä talosta. Kiinteistö sijaitsee Kehä I:n välittömässä läheisyydessä, ja se on helposti saavutettavissa sekä omalla autolla että julkisella liikenteellä. Stellassa on lounasravintola, aulapalvelu, auditorio, vuokrattavia kokoustiloja ja kuntosali. Pysäköintipaikkoja on mahdollista vuokrata.
Kysy lisää numerosta 044 723 4700 tai info@bref.fi. Palvelumme on tilanhakijoille ilmainen.
Ekologista vastuullisuutta tavoitteleva sähköautojen latausasema on vain 795 m päässä toimistosta. Herkullisia välipaloja ja juomia tarjoillaan pubissa, joka sijaitsee 13 minuutin päässä toimistosta. Viereinen ruokakauppa on varsin hyödyllinen etu kotimatkallasi. Kuntosali joka sijaitsee vain 9 minuutin päässä toimistosta, on asianmukaisesti varustettu urheilukeskus.
Basic
Espoo on alue, jonne yritykset tulevat kokeakseen sen kehittyneen infrastruktuurin edut. Tätä toimistotilaa pidetään suurena, sillä siihen mahtuu jopa 18 työntekijää. Tämän vuokrakohteen kokonaispinta-ala on 447.2 m², mikä on suurempi kuin kaupungin keskiarvo. Saat lisätietoja tästä toimistosta joka sijaitsee osoitteessa Lars Sonckin kaari 16, 02600 Espoo suoraan vuokranantajalta täyttämällä lomakkeen verkkosivuillamme. Täytä lomake ja kysy toimistoa koskevat kysymykset suoraan kiinteistön omistajalta.
Koska moottoritie sijaitsee toimiston välittömässä läheisyydessä, työntekijäsi eivät koskaan kohtaa esteitä työmatkallaan. Toimiston lähellä sijaitseva puisto tuo mukanaan luonnollista rauhallisuutta kaupungin betoniviidakon keskelle. Tori sijaitsee lähellä toimistoa ja tuo elinvoimaa yrityksesi elämään. Joki virtaa vain 505 m päässä toimistosta ja se tekee kohteesta epäilemättä poikkeuksellisen liikekiinteistön. Elokuvateatteri kruunaa kauounginosan monipuolisen infrastruktuurin, ja se sijaitsee 855 m päässä toimistosta.

Etkö ole vielä löytänyt sopivaa tilaa?
Luo hakuvahti ja saat tietoja uusista vapaista vuokrakohteista.
Näyttää siltä, että suosikit-listasi Kohteeton täynnä. Poista vanhoja kohteita lisätäksesi uusia.
Näyttää siltä, että suosikit-listasi Kohteeton täynnä. Poista vanhoja kohteita lisätäksesi uusia.
Näyttää siltä, että suosikit-listasi Kohteeton täynnä. Poista vanhoja kohteita lisätäksesi uusia.
Näyttää siltä, että suosikit-listasi Kohteeton täynnä. Poista vanhoja kohteita lisätäksesi uusia.
Näyttää siltä, että suosikit-listasi Kohteeton täynnä. Poista vanhoja kohteita lisätäksesi uusia.
Näyttää siltä, että suosikit-listasi Kohteeton täynnä. Poista vanhoja kohteita lisätäksesi uusia.
Näyttää siltä, että suosikit-listasi Kohteeton täynnä. Poista vanhoja kohteita lisätäksesi uusia.