
Puutarhatie 9, Vantaa
Katutason liiketilaa vasta valmistuneen asuintalon kivijalassa, Vantaan Koivuhaassa.
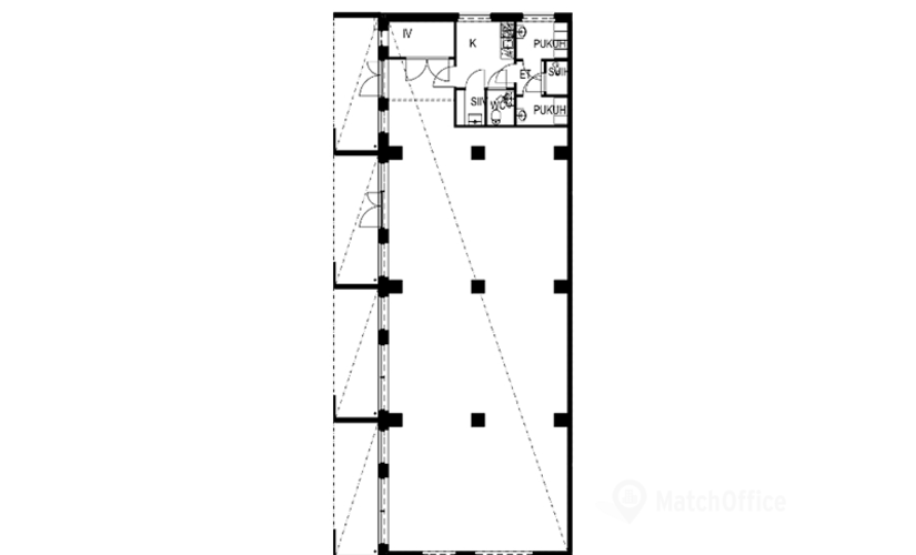
Kyseinen tila on kooltaan 191m2 ja se soveltuu myymäläksi, toimistoksi sekä kahvilatoimintaan. Tilasta löytyy omat keittiö-, pukuhuone- sekä wc-tilat. Liiketilalle on varattu myös 5 pysäköintipaikkaa.
Kiinteistö on uudiskohde, joka valmistui helmikuun lopulla 2017.
Kysy lisää numerosta 044 723 4700 tai info@bref.fi. Palvelumme on tilanhakijoille ilmainen.
Etkö ole vielä löytänyt sopivaa tilaa?
Luo hakuvahti ja saat tietoja uusista vapaista vuokrakohteista.
Näyttää siltä, että suosikit-listasi Kohteeton täynnä. Poista vanhoja kohteita lisätäksesi uusia.
Näyttää siltä, että suosikit-listasi Kohteeton täynnä. Poista vanhoja kohteita lisätäksesi uusia.
Näyttää siltä, että suosikit-listasi Kohteeton täynnä. Poista vanhoja kohteita lisätäksesi uusia.