

100% ilmainen ja ilman sitoumuksia
100% ilmainen ja ilman sitoumuksia
Aleksanterinkatu 25, Lahti
Katutason liiketilaa hyvällä paikalla Lahden keskustassa.
Liike sijaitsee vastapäätä Kauppakeskus Trioa. Tilassa on isot näyteikkunat ja oma wc. Toimitilan alakerrassa on varastointiin soveltuvaa tilaa. Liiketila ei sovellu ravintola-, kahvila- tai parturikampaamotoimintaan. This premise is not suitable for a restaurant, cafeteria or a barber shop.
Aleksanterinkatu 25 eli Aleksintorni sijaitsee vilkkaan kävelykadun varrella Lahden keskustassa. Rautatieasema sijaitsee kävelymatkan päässä ja autopaikkoja voi vuokrata alueen pysäköintilaitoksista.
Kysy lisää numerosta 044 723 4700 tai info@bref.fi. Palvelumme on tilanhakijoille ilmainen.
Myymälän läheisyydessä 660 m päässä on junapysäkki. Vuokralaisten ja vierailijoiden mukavuuden vuoksi polkupyörien pysäköintialue sijaitsee 39 m päässä myymälästä. Ostosmahdollisuuksia on täällä runsaasti, supermarketti on vain 152 m päässä. Apteekkiin pääsee tästä liikkeestä korkeintaan 3 minuutissa.
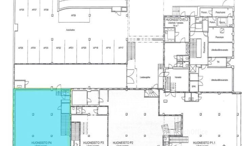
Liiketilojen koko vaihtelee 254.0 - 254.0 neliömetrin välillä, ja ne palvelevat pääasiassa pieniä vähittäiskauppiaita. Lahti - alue, jolla kauppa sijaitsee on kaupungin keskeisten kauppareittien risteyksessä. Tämä keskikokoinen liiketila soveltuu parhaiten kasvaville yrityksille. Sen pinta-ala on 254.0 m². Täytä lomake ja esitä kysymyksiä liiketilan vuokraamisesta osoitteessa Aleksanterinkatu 25, Lahti, 15140 suoraan vuokranantajalle. Saat lisätietoja tästä liiketilasta täyttämällä lomakkeen verkkosivuillamme. Vuokranantaja vastaa kysymyksiisi suoraan.
Vain 396 m päässä keskustasta sijaitseva myymälä osoitteessa Aleksanterinkatu 25 tuo mukanaan vakavan edun edullisesta kaupallisesta sijainnista. Voidaan sanoa, että 120000 asukasluku muodostaa vankan asiakaskunnan myymälällenne. Tien kulkiessa liikkeen ohi, tuhannet potentiaaliset asiakkaat ajavat sen ohi autoillaan. Myymälän sijainnin muuttaminen kilpailueduksi ei ole vaikeaa, kun vilkas puisto on aivan vieressäsi. Myymälä on lähellä toria, joka on yksi kaupungin suurimmista kuluttajakeskittymistä.

Etkö ole vielä löytänyt sopivaa tilaa?
Luo hakuvahti ja saat tietoja uusista vapaista vuokrakohteista.
Näyttää siltä, että suosikit-listasi Kohteeton täynnä. Poista vanhoja kohteita lisätäksesi uusia.
Näyttää siltä, että suosikit-listasi Kohteeton täynnä. Poista vanhoja kohteita lisätäksesi uusia.
Näyttää siltä, että suosikit-listasi Kohteeton täynnä. Poista vanhoja kohteita lisätäksesi uusia.
Näyttää siltä, että suosikit-listasi Kohteeton täynnä. Poista vanhoja kohteita lisätäksesi uusia.
Näyttää siltä, että suosikit-listasi Kohteeton täynnä. Poista vanhoja kohteita lisätäksesi uusia.