




100% ilmainen ja ilman sitoumuksia
100% ilmainen ja ilman sitoumuksia
Biokatu 10, Tampere
Toimistotilaa Tampereen Kaupissa, TAYS:in alueella.
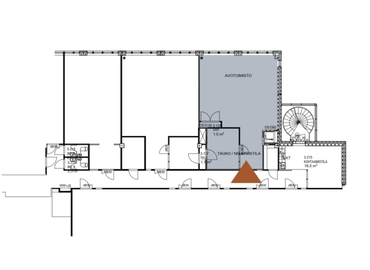
Tämä 51 m² avotoimistotila sijaitsee kiinteistön 3. kerroksessa. Käynti tilaan yhteiskäytävältä, käytävän varrella olevien yritysten käytössä on kaksi yhteiskäyttöistä keittiötilaa, taukotila, wc:t sekä varattava neuvottelutila.
Kiinteistö sijaitsee Kaupin kampusalueella lähellä Tampereen keskustaa hyvien liikkenneyhteyksien päässä. Alueella on yliopistollinen sairaala sekä suuri määrä terveys- ja hyvinvointialan toimijoita.
Kysy lisää numerosta 044 723 4700 tai info@bref.fi. Palvelumme on tilanhakijoille ilmainen.
Ekologista vastuullisuutta tavoitteleva sähköautojen latausasema on vain 624 m päässä toimistosta. 4 kävelymatkan päässä toimistosta on kahvila, jossa on monipuolinen ruokalista. Lähin kuntosali löytyy 352 m päästä toimistosta. 24/7 pankkiautomaatti sijaitsee vain 195 m päässä toimistosta.
Vuokrattavat tilat vaihtelevat 51.0 ja 51.0 neliömetrin välillä. Voit vuokrata pienemmän työtilan ja laajentaa sitä yrityksesi kasvaessa. Toimisto sijaitsee alueella Tampere, joka on tunnettu yritysmyönteisestä infrastruktuuristaan. Toimiston pinta-ala on 51.0 m². Saat lisätietoja tästä toimistosta joka sijaitsee osoitteessa Biokatu 10, 33520 Tampere suoraan vuokranantajalta täyttämällä lomakkeen verkkosivuillamme. Täytä lomake saadaksesi lisätietoja toimistosta. Kaikki tarvitsemasi tiedot saat suoraan vuokranantajalta.
Torin läheisyydessä sijaitseva toimistorakennus täydentää yhden kaupungin kauneimman kaupunginosan arkkitehtuurin kokonaisuutta. Joki virtaa 942 m etäisyydellä rakennuksesta, mikä lisää paikkakunnan yleistä vetovoimaa. Puisto sijaitsee lähellä toimistoa. Se on täydellinen paikka keskustella ideoista ja projekteista.

Etkö ole vielä löytänyt sopivaa tilaa?
Luo hakuvahti ja saat tietoja uusista vapaista vuokrakohteista.
Näyttää siltä, että suosikit-listasi Kohteeton täynnä. Poista vanhoja kohteita lisätäksesi uusia.
Näyttää siltä, että suosikit-listasi Kohteeton täynnä. Poista vanhoja kohteita lisätäksesi uusia.
Näyttää siltä, että suosikit-listasi Kohteeton täynnä. Poista vanhoja kohteita lisätäksesi uusia.
Näyttää siltä, että suosikit-listasi Kohteeton täynnä. Poista vanhoja kohteita lisätäksesi uusia.
Näyttää siltä, että suosikit-listasi Kohteeton täynnä. Poista vanhoja kohteita lisätäksesi uusia.
Näyttää siltä, että suosikit-listasi Kohteeton täynnä. Poista vanhoja kohteita lisätäksesi uusia.
Näyttää siltä, että suosikit-listasi Kohteeton täynnä. Poista vanhoja kohteita lisätäksesi uusia.
Näyttää siltä, että suosikit-listasi Kohteeton täynnä. Poista vanhoja kohteita lisätäksesi uusia.
Näyttää siltä, että suosikit-listasi Kohteeton täynnä. Poista vanhoja kohteita lisätäksesi uusia.
Näyttää siltä, että suosikit-listasi Kohteeton täynnä. Poista vanhoja kohteita lisätäksesi uusia.
Näyttää siltä, että suosikit-listasi Kohteeton täynnä. Poista vanhoja kohteita lisätäksesi uusia.