




Urho Kekkosen katu 4-6, Helsinki
Vuokrattavissa toimistotilaa Kampista, Hämäläisten talosta.
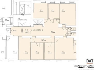
Kyseinen 864m2 toimisto sijaitsee kiinteistön 4. kerroksessa. Tilat modernisoidaan vuokralaisen tarpeiden mukaan ja ne ovat valmiina arviolta lokakuussa 2018. Tämä tila on mahdollista jakaa 378m2, 305,5m2 ja 180,5m2 kokoisiksi erillisiksi toimistotiloiksi. Pohjakuvassa 378m2 tila merkitty punaisella.
Kiinteistön tiloissa on koneellinen ilmanvaihto ja kaukokylmä. Kuvat ovat esimerkkejä siitä, millaiseksi tilat on mahdollista remontoida.
Hämäläisten talo sijaitsee aivan Helsingin ydinkeskustassa, Kampin kauppakeskusta vastapäätä. Kiinteistö on tunnettu Helsingin Yliopiston Hämäläis-Osakunnan toiminnasta. Kiinteistön lähellä useat keskustan kauppakeskukset ja muut palvelut.
Kysy lisää numerosta 044 723 4700 tai info@bref.fi. Palvelumme on tilanhakijoille ilmainen.
Etkö ole vielä löytänyt sopivaa tilaa?
Luo hakuvahti ja saat tietoja uusista vapaista vuokrakohteista.
Näyttää siltä, että suosikit-listasi Kohteeton täynnä. Poista vanhoja kohteita lisätäksesi uusia.
Näyttää siltä, että suosikit-listasi Kohteeton täynnä. Poista vanhoja kohteita lisätäksesi uusia.
Näyttää siltä, että suosikit-listasi Kohteeton täynnä. Poista vanhoja kohteita lisätäksesi uusia.
Näyttää siltä, että suosikit-listasi Kohteeton täynnä. Poista vanhoja kohteita lisätäksesi uusia.
Näyttää siltä, että suosikit-listasi Kohteeton täynnä. Poista vanhoja kohteita lisätäksesi uusia.
Näyttää siltä, että suosikit-listasi Kohteeton täynnä. Poista vanhoja kohteita lisätäksesi uusia.
Näyttää siltä, että suosikit-listasi Kohteeton täynnä. Poista vanhoja kohteita lisätäksesi uusia.
Näyttää siltä, että suosikit-listasi Kohteeton täynnä. Poista vanhoja kohteita lisätäksesi uusia.
Näyttää siltä, että suosikit-listasi Kohteeton täynnä. Poista vanhoja kohteita lisätäksesi uusia.
Näyttää siltä, että suosikit-listasi Kohteeton täynnä. Poista vanhoja kohteita lisätäksesi uusia.