




Työpajankatu 13, Helsinki
Modernia toimistotilaa hyvällä sijainnilla Kalasatamassa.
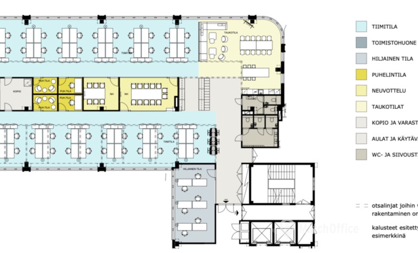
Tämä 640m2 toimistotila sijaitsee kiinteistön 4. kerroksessa. Toimistossa on huoneita, avotilaa sekä omat keittiö- ja wc-tilat. Kuvat ovat yleiskuvia kiinteistön tiloista.
Helsingin Työpajalla on erinomainen sijainti kauppakeskus Redin naapurissa sekä Kalasataman metroaseman miltei välittömässä läheisyydessä. Kohteessa suoritettiin peruskorjaushanke, jonka valmistui kevään 2018 aikana. Hankkeen aikana kohde modernisoitiin ja mm. kohteen talotekniikka sekä hissit uusittiin.
Toimistotilojen suunnittelussa panostettiin nykyvaatimusten mukaiseen muunneltavuuteen, viihtyisyyteen, tehokkuuteen ja laatuun. Kaikki yhteiskäytössä olevat neuvottelutilat, auditorio, kuntosali ja ravintola saivat uuden ilmeen. Myös pyöräilijät huomioitiin uusilla lukituilla parkkitiloilla sekä sosiaalitiloilla.
Kysy lisää numerosta 044 723 4700 tai info@bref.fi. Palvelumme on tilanhakijoille ilmainen.
Toimistolle on 1 minuutin kävelymatka lähimmältä bussiasemalta. Ekologista vastuullisuutta tavoitteleva sähköautojen latausasema on vain 996 m päässä toimistosta. Lähistöllä sijaitseva ravintola on yksi paikallisen vieraanvaraisuuden keskeisistä vetonauloista.. Lähin kuntosali löytyy 94 m päästä toimistosta. Kuntosali joka sijaitsee vain 2 minuutin päässä toimistosta, on asianmukaisesti varustettu urheilukeskus.
Basic
Rakennuksen vieressä kulkee tie, joten toimistosi on kaikkien vierailijoiden tavoitettavissa. Toimiston lähellä sijaitseva puisto tuo mukanaan luonnollista rauhallisuutta kaupungin betoniviidakon keskelle. Tori sijaitsee lähellä toimistoa ja tuo elinvoimaa yrityksesi elämään. Joki virtaa vain 345 m päässä toimistosta ja se tekee kohteesta epäilemättä poikkeuksellisen liikekiinteistön. Koska teatteri on lähellä toimistoa, yrityksesi imago paranee huomattavasti, erityisesti vielä tuntemattomien asiakkaiden silmissä.

Etkö ole vielä löytänyt sopivaa tilaa?
Luo hakuvahti ja saat tietoja uusista vapaista vuokrakohteista.
Näyttää siltä, että suosikit-listasi Kohteeton täynnä. Poista vanhoja kohteita lisätäksesi uusia.
Näyttää siltä, että suosikit-listasi Kohteeton täynnä. Poista vanhoja kohteita lisätäksesi uusia.
Näyttää siltä, että suosikit-listasi Kohteeton täynnä. Poista vanhoja kohteita lisätäksesi uusia.
Näyttää siltä, että suosikit-listasi Kohteeton täynnä. Poista vanhoja kohteita lisätäksesi uusia.
Näyttää siltä, että suosikit-listasi Kohteeton täynnä. Poista vanhoja kohteita lisätäksesi uusia.
Näyttää siltä, että suosikit-listasi Kohteeton täynnä. Poista vanhoja kohteita lisätäksesi uusia.
Näyttää siltä, että suosikit-listasi Kohteeton täynnä. Poista vanhoja kohteita lisätäksesi uusia.
Näyttää siltä, että suosikit-listasi Kohteeton täynnä. Poista vanhoja kohteita lisätäksesi uusia.
Näyttää siltä, että suosikit-listasi Kohteeton täynnä. Poista vanhoja kohteita lisätäksesi uusia.
Näyttää siltä, että suosikit-listasi Kohteeton täynnä. Poista vanhoja kohteita lisätäksesi uusia.
Näyttää siltä, että suosikit-listasi Kohteeton täynnä. Poista vanhoja kohteita lisätäksesi uusia.
Näyttää siltä, että suosikit-listasi Kohteeton täynnä. Poista vanhoja kohteita lisätäksesi uusia.
Näyttää siltä, että suosikit-listasi Kohteeton täynnä. Poista vanhoja kohteita lisätäksesi uusia.
Näyttää siltä, että suosikit-listasi Kohteeton täynnä. Poista vanhoja kohteita lisätäksesi uusia.
Näyttää siltä, että suosikit-listasi Kohteeton täynnä. Poista vanhoja kohteita lisätäksesi uusia.
Näyttää siltä, että suosikit-listasi Kohteeton täynnä. Poista vanhoja kohteita lisätäksesi uusia.
Näyttää siltä, että suosikit-listasi Kohteeton täynnä. Poista vanhoja kohteita lisätäksesi uusia.
Näyttää siltä, että suosikit-listasi Kohteeton täynnä. Poista vanhoja kohteita lisätäksesi uusia.