




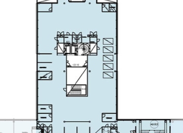
Porkkalankatu 20 , Helsinki
Vuokrattavana tyylikästä pientoimistotilaa Ruoholahdesta.
Kiinteistön 2. kerrokseen on valmistunut marraskuussa 2025 uusi POOL-pientoimistoalue, josta voi vuokrata valmiiksi kalustettuja toimistotiloja. Kokonaisvuokraan sisältyvät WLAN-yhteys, sähkö, kahvi ja tee, yleisten tilojen ja pientoimistojen siivous sekä valittujen neuvottelu-, lounge- ja hot desk -tilojen sekä yhteiskeittiön käyttö. POOL-konsepti tarjoaa yrityksille joustavia tilaratkaisuja niin lyhytkestoisiin kuin pidempiinkin vuokrauksiin.
Porkkalankatu 20 kuuluu Ruohiksen korttelikeskukseen, ja se sijaitsee loistavalla paikalla Länsiväylän välittömässä läheisyydessä. Kiinteistö tarjoaa muunneltavia ja monipuolisia toimitiloja erilaisiin tarpeisiin. Kiinteistössä on aulapalvelu, lounasravintola, pyöräkatos, suihku- ja saunatilat sekä vuokrattavia neuvottelutiloja. Autopaikkoja on mahdollista vuokrata Ruoholahden parkkihallista. Ruoholahden kauppakeskus sijaitsee samassa korttelissa, ja se tarjoaa kattavat päivittäispalvelut, liikuntapalvelut, erikoisliikkeitä sekä lounasravintoloita. Kiinteistö sijaitsee lyhyen kävelymatkan päässä Ruoholahden metroasemasta.
Kysy lisää numerosta 044 723 4700 tai info@bref.fi. Palvelumme on tilanhakijoille ilmainen.
Basic
Toimisto sijaitsee lähellä puistoa todella rauhallisessa ja inspiroivassa sijainnissa. Rakennuksen vieressä kulkee tie, joten toimistosi on kaikkien vierailijoiden tavoitettavissa. Torin läheisyydessä sijaitseva toimistorakennus täydentää yhden kaupungin kauneimman kaupunginosan arkkitehtuurin kokonaisuutta. Joki virtaa 300 m etäisyydellä rakennuksesta, mikä lisää paikkakunnan yleistä vetovoimaa. Koska teatteri on lähellä toimistoa, yrityksesi imago paranee huomattavasti, erityisesti vielä tuntemattomien asiakkaiden silmissä.

Etkö ole vielä löytänyt sopivaa tilaa?
Luo hakuvahti ja saat tietoja uusista vapaista vuokrakohteista.
Näyttää siltä, että suosikit-listasi Kohteeton täynnä. Poista vanhoja kohteita lisätäksesi uusia.
Näyttää siltä, että suosikit-listasi Kohteeton täynnä. Poista vanhoja kohteita lisätäksesi uusia.
Näyttää siltä, että suosikit-listasi Kohteeton täynnä. Poista vanhoja kohteita lisätäksesi uusia.
Näyttää siltä, että suosikit-listasi Kohteeton täynnä. Poista vanhoja kohteita lisätäksesi uusia.
Näyttää siltä, että suosikit-listasi Kohteeton täynnä. Poista vanhoja kohteita lisätäksesi uusia.
Näyttää siltä, että suosikit-listasi Kohteeton täynnä. Poista vanhoja kohteita lisätäksesi uusia.
Näyttää siltä, että suosikit-listasi Kohteeton täynnä. Poista vanhoja kohteita lisätäksesi uusia.
Näyttää siltä, että suosikit-listasi Kohteeton täynnä. Poista vanhoja kohteita lisätäksesi uusia.