

Mikonkatu 17, Helsinki
Toimistotilaa arvorakennuksessa Fenniakorttelissa, Helsingin ydinkeskustassa.
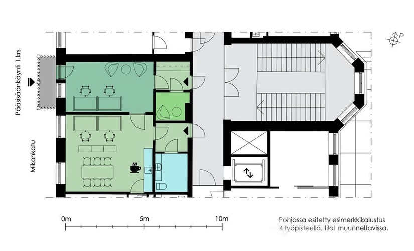
Tämä kompakti 85m2 toimisto sijaitsee kiinteistön 3. kerroksessa. Toimistossa on omat keittiö- ja wc-tilat. Tilasta on näkymät Rautatientorille.
Mikonkatu 17 eli Fennia-talo on osa Fenniakorttelia, joka tarjoaa sekä sijainniltaan että saavutettavuudeltaan loistavat puitteet liiketoiminnalle. Toimitilat ovat nykyaikaisesti varustettuja, ilmastoituja ja jäähdytettyjä. Sijainti aivan rautatieaseman sekä Rautatientorin linja-autoaseman vieressä takaa loistavat julkisen liikenteen yhteydet. Myös Kaisaniemen metroasema on aivan lyhyen kävelymatkan päässä. Henkilöautoilijoille löytyy parkkitilaa Engelin ja Kluuvin pysäköintilaitoksissa. Kiinteistössä on aulapalvelu ja kattava ravintolamaailma.
Tämän kohteen omistaa Sponda.
Kysy lisää numerosta 044 723 4700 tai info@bref.fi. Palvelumme on tilanhakijoille ilmainen.
Herkullisia välipaloja ja juomia tarjoillaan pubissa, joka sijaitsee 1 minuutin päässä toimistosta. Viereinen ruokakauppa on varsin hyödyllinen etu kotimatkallasi. 220 m päässä toimistosta on laaja pysäköintialue. 500 metrin säteellä on korkeampi kuin normaali pankkiautomaatteja.
Basic
Puisto sijaitsee lähellä toimistoa. Se on täydellinen paikka keskustella ideoista ja projekteista. Torin läheisyydessä sijaitseva toimistorakennus täydentää yhden kaupungin kauneimman kaupunginosan arkkitehtuurin kokonaisuutta. Joki virtaa 465 m etäisyydellä rakennuksesta, mikä lisää paikkakunnan yleistä vetovoimaa. 335 m päässä sijaitseva järvi kruunaa kaupunginosan ainutlaatuisen imagon. Koska teatteri on lähellä toimistoa, yrityksesi imago paranee huomattavasti, erityisesti vielä tuntemattomien asiakkaiden silmissä.

Etkö ole vielä löytänyt sopivaa tilaa?
Luo hakuvahti ja saat tietoja uusista vapaista vuokrakohteista.
Näyttää siltä, että suosikit-listasi Kohteeton täynnä. Poista vanhoja kohteita lisätäksesi uusia.
Näyttää siltä, että suosikit-listasi Kohteeton täynnä. Poista vanhoja kohteita lisätäksesi uusia.
Näyttää siltä, että suosikit-listasi Kohteeton täynnä. Poista vanhoja kohteita lisätäksesi uusia.
Näyttää siltä, että suosikit-listasi Kohteeton täynnä. Poista vanhoja kohteita lisätäksesi uusia.
Näyttää siltä, että suosikit-listasi Kohteeton täynnä. Poista vanhoja kohteita lisätäksesi uusia.
Näyttää siltä, että suosikit-listasi Kohteeton täynnä. Poista vanhoja kohteita lisätäksesi uusia.
Näyttää siltä, että suosikit-listasi Kohteeton täynnä. Poista vanhoja kohteita lisätäksesi uusia.
Näyttää siltä, että suosikit-listasi Kohteeton täynnä. Poista vanhoja kohteita lisätäksesi uusia.