



Lirokuja 4, Helsinki
Toimitilaa pienteollisuuskiinteistössä Helsingin Kontulassa.
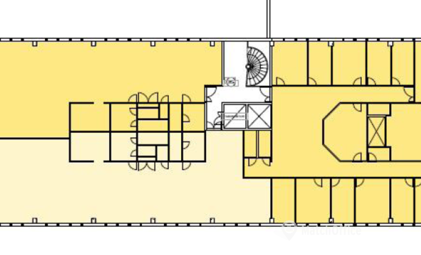
Rakennuksen toisessa kerroksessa on vapaana yhteensä 593m2 toimistotilaa, joka soveltuu myös kevyeen tuotantoon tai varastointiin. Kiinteistön 1. kerroksesta on lastauslaituri- ja tavarahissiyhteys 2. kerrokseen. Kyseinen tila on jaettavissa myös 285m2 ja 308m2 kokoisiksi tiloiksi.
Lirokuja 4 on teollisuus- ja toimistokiinteistö, joka sijaitsee hyvien liikenneyhteyksien varrella, Kehä I:n ja Lahdenväylän lähettyvillä.
Kysy lisää numerosta 044 723 4700 tai info@bref.fi. Palvelumme on tilanhakijoille ilmainen.
Etkö ole vielä löytänyt sopivaa tilaa?
Luo hakuvahti ja saat tietoja uusista vapaista vuokrakohteista.
Näyttää siltä, että suosikit-listasi Kohteeton täynnä. Poista vanhoja kohteita lisätäksesi uusia.
Näyttää siltä, että suosikit-listasi Kohteeton täynnä. Poista vanhoja kohteita lisätäksesi uusia.
Näyttää siltä, että suosikit-listasi Kohteeton täynnä. Poista vanhoja kohteita lisätäksesi uusia.
Näyttää siltä, että suosikit-listasi Kohteeton täynnä. Poista vanhoja kohteita lisätäksesi uusia.
Näyttää siltä, että suosikit-listasi Kohteeton täynnä. Poista vanhoja kohteita lisätäksesi uusia.
Näyttää siltä, että suosikit-listasi Kohteeton täynnä. Poista vanhoja kohteita lisätäksesi uusia.
Näyttää siltä, että suosikit-listasi Kohteeton täynnä. Poista vanhoja kohteita lisätäksesi uusia.