




Lampputie 1, Helsinki
Toimistotilaa Helsingin Suutarilassa.
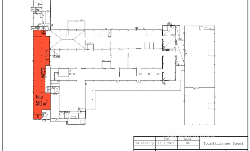
Tämä siisti 510m2 toimistotila sijaitsee kiinteistön 1. kerroksessa katutasossa. Toimistossa on avotilaa, muutama huone sekä oma keittiöpiste ja wc-tilat.
Kiinteistö sijaitsee erinomaisella paikalla Suutarilan teollisuuselueella, lähellä Kehä III:sta. Tontilla on runsaasti aidattua pihatilaa ja pysäköintipaikkoja. Kiinteistö on käynyt läpi mittavan saneerauksen vuosien 2016-2021 välisenä aikana, jossa on uusittu paljon mm. talotekniikkaa.
Kysy lisää numerosta 044 723 4700 tai info@bref.fi. Palvelumme on tilanhakijoille ilmainen.
Toimistolle on 2 minuutin kävelymatka lähimmältä bussiasemalta. Ekologista vastuullisuutta tavoitteleva sähköautojen latausasema on vain 948 m päässä toimistosta. 3 kävelymatkan päässä toimistosta on kahvila, jossa on monipuolinen ruokalista. Lähin kuntosali löytyy 128 m päästä toimistosta. Polkupyöräparkki on osa lähialueen infrastruktuuria.
Puisto sijaitsee lähellä toimistoa. Se on täydellinen paikka keskustella ideoista ja projekteista. Joki virtaa vain 56 m päässä toimistosta ja se tekee kohteesta epäilemättä poikkeuksellisen liikekiinteistön. 795 m päässä sijaitseva järvi kruunaa kaupunginosan ainutlaatuisen imagon.

Etkö ole vielä löytänyt sopivaa tilaa?
Luo hakuvahti ja saat tietoja uusista vapaista vuokrakohteista.
Näyttää siltä, että suosikit-listasi Kohteeton täynnä. Poista vanhoja kohteita lisätäksesi uusia.
Näyttää siltä, että suosikit-listasi Kohteeton täynnä. Poista vanhoja kohteita lisätäksesi uusia.
Näyttää siltä, että suosikit-listasi Kohteeton täynnä. Poista vanhoja kohteita lisätäksesi uusia.
Näyttää siltä, että suosikit-listasi Kohteeton täynnä. Poista vanhoja kohteita lisätäksesi uusia.
Näyttää siltä, että suosikit-listasi Kohteeton täynnä. Poista vanhoja kohteita lisätäksesi uusia.
Näyttää siltä, että suosikit-listasi Kohteeton täynnä. Poista vanhoja kohteita lisätäksesi uusia.
Näyttää siltä, että suosikit-listasi Kohteeton täynnä. Poista vanhoja kohteita lisätäksesi uusia.
Näyttää siltä, että suosikit-listasi Kohteeton täynnä. Poista vanhoja kohteita lisätäksesi uusia.